// Check if the article Layout ?>
Like a book fallen from the sky: Xinglong Lake Bookstore by MUDA-Architects
Foto: MUDA-Architects
A literary- and metaphor-inspired design by MUDA-Architects – an architectural practice founded in Boston – has won the Xinglong Lake Bookstore Architectural Creative Design Competition, coming in first in a field of 486 applicants and 20 finalists. The project is to contribute to an extensive development programme in the Chengdu Tianfu New Area, which is part of the economically significant Yangtzekiang Delta.
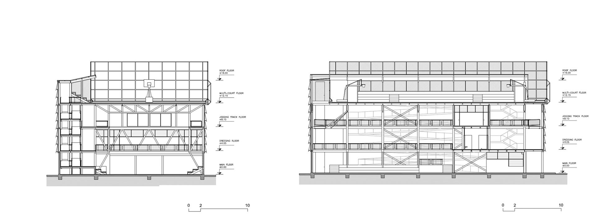
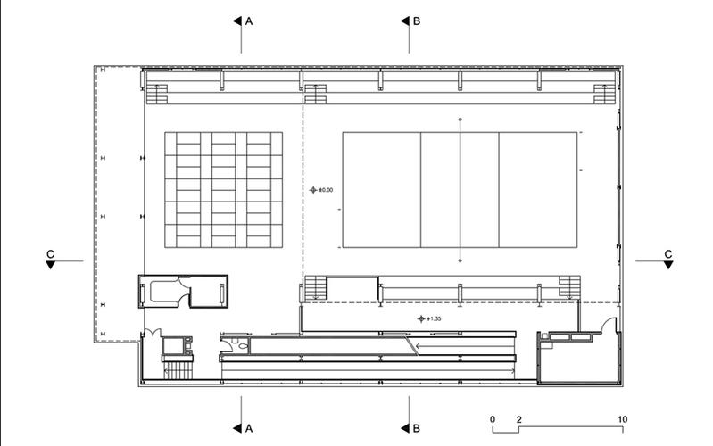
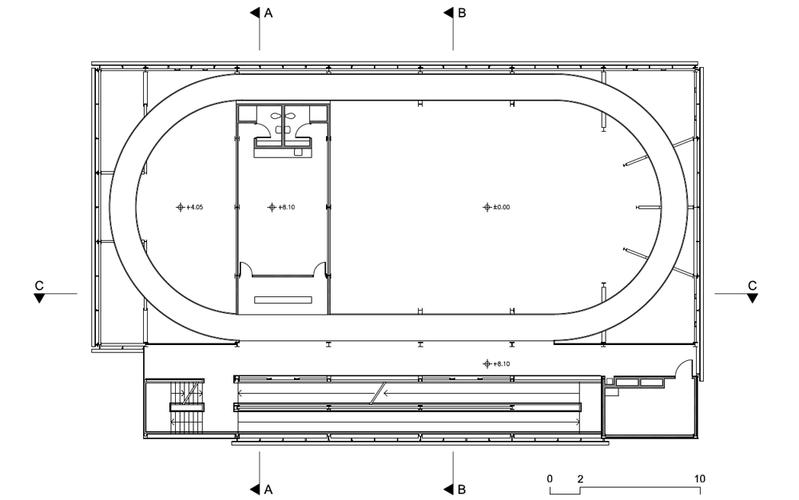
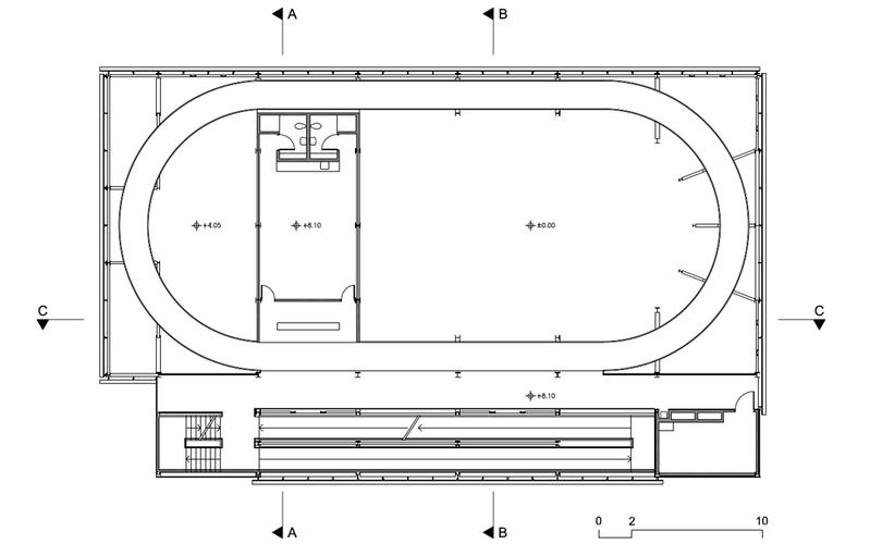
The bookshop designed by MUDA-Architects for the eastern side of the Xinglong Lake Bay Area is to make the impression of a book that has slipped from the hand of a tired deity and fallen to the earth. The kinematic movement of a book falling from the sky finds architectural expression in the roof curving downwards towards the lake; as a result, one of its outer corners is 7.7 metres in height while another rises up to 16 metres. The building will be glazed on three sides and thus permit views onto the adjacent sheet of water. On closer inspection Xinglong Lake will almost seem like part of the building: on passing through the main entrance, visitors will encounter an anterior space followed by a series of steps and two exhibition walls, thus encouraging them to glance outward towards the lake and experience its effect of calm before noticing the sunken reading space behind the exhibition walls.
This intentionally linear sequence of impressions and the translucent effect of the construction style are to permit visitors to the Xinglong Lake Bookstore to establish a relationship to the open lake landscape, thus enabling the hydrophilic building to form an entity with its surroundings, as the architects put it.
The bookshop designed by MUDA-Architects for the eastern side of the Xinglong Lake Bay Area is to make the impression of a book that has slipped from the hand of a tired deity and fallen to the earth. The kinematic movement of a book falling from the sky finds architectural expression in the roof curving downwards towards the lake; as a result, one of its outer corners is 7.7 metres in height while another rises up to 16 metres. The building will be glazed on three sides and thus permit views onto the adjacent sheet of water. On closer inspection Xinglong Lake will almost seem like part of the building: on passing through the main entrance, visitors will encounter an anterior space followed by a series of steps and two exhibition walls, thus encouraging them to glance outward towards the lake and experience its effect of calm before noticing the sunken reading space behind the exhibition walls.
This intentionally linear sequence of impressions and the translucent effect of the construction style are to permit visitors to the Xinglong Lake Bookstore to establish a relationship to the open lake landscape, thus enabling the hydrophilic building to form an entity with its surroundings, as the architects put it.
Further information:
Project manager: Lu Yun
Design Team: Lu Yun, Zhao Guojun, Ni Dandan, Li Yue, Lin Jiayi, Liu Xiaoqiao, Li Rang, Liu Hanning
Design Team: Lu Yun, Zhao Guojun, Ni Dandan, Li Yue, Lin Jiayi, Liu Xiaoqiao, Li Rang, Liu Hanning


























