// Check if the article Layout ?>
Lined with glass: Cafeteria in Bolzano
Photo: Oskar Da Riz
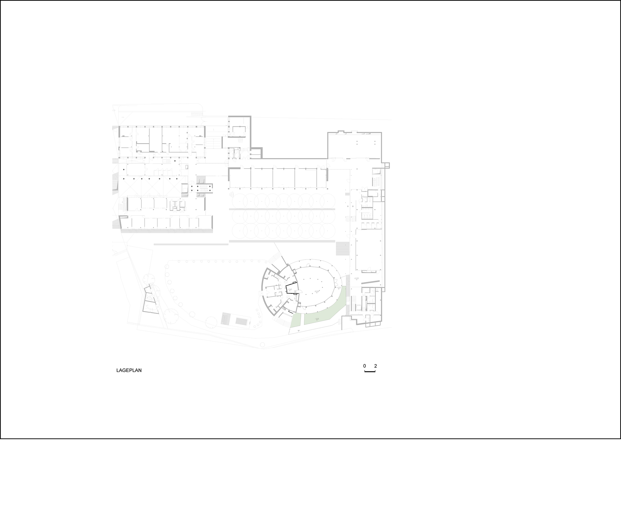
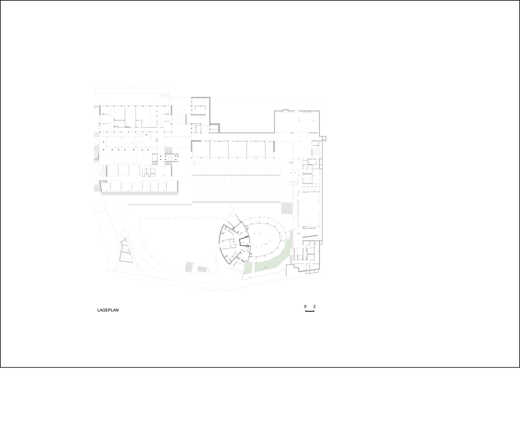
Established in 1992, the Eurac Research centre devotes itself to many topics ranging from minority rights to biomedicine, from public management to mummy research and from applied linguistic research to renewable energy sources. In 1995, the institute moved west of the centre of Bolzano, into a new complex by Klaus Kada whose nucleus is formed by a significantly older building. This was erected in the mid-1930s by architects Mansutti and Miozzo for the female members of the GIL or Gioventú Italiana del Littorio (Italian Youth of the Lictor), which was Italy’s fascist youth organization. The historical parts of the building, including Eurac Research’s central auditorium, can still be recognized by their Pompeian-red paint.
Before the research centre was established, the striking round building had experienced a diverse history, or it had been used as a supermarket and pornographic cinema. Recently it stood empty, fated to become dilapidated. In contrast, Roland Baldi Architects and Elena Casati were most gentle in their recent expansion.
This team of architects had won a competition to build a cafeteria underneath the elevated auditorium building in 2015. Their new construction keeps to the double ring of supports that carries the auditorium. The new façade has been added directly beneath the supports in such a way that, apart from the entrance doors, only undivided, frameless glass surfaces can be seen. On approval from the Office for Historical Preservation, the cafeteria is not directly connected to the Eurac building; this will maintain the historical identity of the auditorium.
Inside as well, the architects undertook few interventions. The floor has been coated with a medium-grain polish and no further covering. The sloping ceiling has been treated with an acoustic plaster in Pompeian red, which at first glance cannot be distinguished from the façade plastering of the old building. The built-in fittings consist of a monolithic stainless-steel counter and a transparent glass element that functions as an air duct for the mechanical ventilation system.
Before the research centre was established, the striking round building had experienced a diverse history, or it had been used as a supermarket and pornographic cinema. Recently it stood empty, fated to become dilapidated. In contrast, Roland Baldi Architects and Elena Casati were most gentle in their recent expansion.
This team of architects had won a competition to build a cafeteria underneath the elevated auditorium building in 2015. Their new construction keeps to the double ring of supports that carries the auditorium. The new façade has been added directly beneath the supports in such a way that, apart from the entrance doors, only undivided, frameless glass surfaces can be seen. On approval from the Office for Historical Preservation, the cafeteria is not directly connected to the Eurac building; this will maintain the historical identity of the auditorium.
Inside as well, the architects undertook few interventions. The floor has been coated with a medium-grain polish and no further covering. The sloping ceiling has been treated with an acoustic plaster in Pompeian red, which at first glance cannot be distinguished from the façade plastering of the old building. The built-in fittings consist of a monolithic stainless-steel counter and a transparent glass element that functions as an air duct for the mechanical ventilation system.
Further information:
Construction site management: Roland Baldi Architects
Acoustics: Arch. Christina Niederstätter
Statics: Ing. Andreas Erlacher
Planning of electric: Ing. Reinhard Thaler
HLS-planning: Ing. Michele Carlini
Security coordination: Ing. Giovanni Carlini
Construction site management: Roland Baldi Architects
Acoustics: Arch. Christina Niederstätter
Statics: Ing. Andreas Erlacher
Planning of electric: Ing. Reinhard Thaler
HLS-planning: Ing. Michele Carlini
Security coordination: Ing. Giovanni Carlini





















