Living with the Seasons: The House by the Lake in Werder (Havel)
Foto: Jurek Brüggen
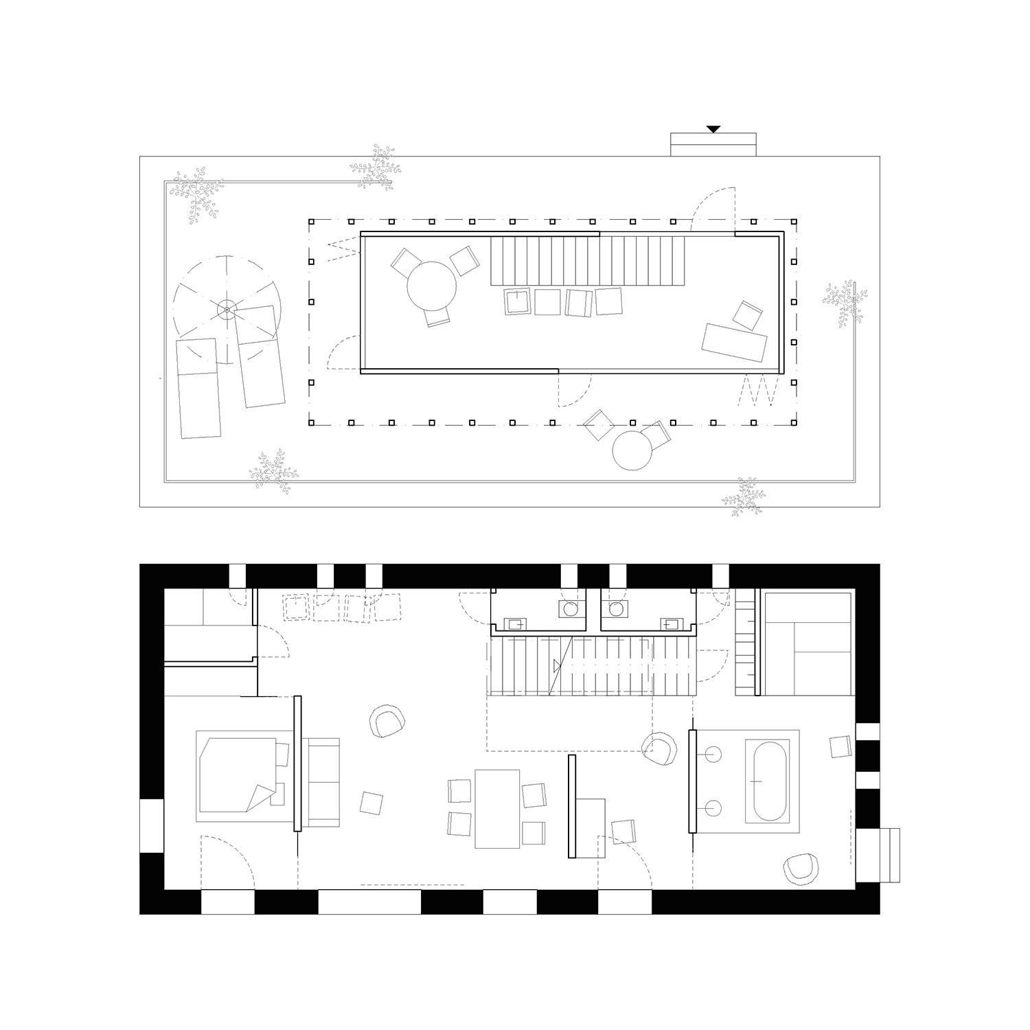
The existing situation for the House by the Lake is extraordinarily diverse: a neo-Gothic Belvedere whose grapevines extend like rays stands next to an art-deco villa, a stable with an added neo-Gothic façade and a GDR-era bungalow. Beside these, the design for the house appears, in the words of the architects, like a “stone free of style or typology that has been made into a house”.
The base level is a monolithic, concrete body whose formwork remains visible both inside and out. On three sides, part of the volume is buried in the earth, which provides additional insulation. This lower portion of the house is the winter retreat: it features all necessary functions such as the bedroom, bathrooms, dining and living areas as well as storage space, all over 85 m2. Free-standing partition walls of wood zone the space. Two large, sliding doors give onto the path to the garden, which slopes downwards to the lake, or lead from the bathroom directly to the stone outdoor pool.
When temperatures rise the second, uninsulated part of the house is activated. A light wooden pavilion set on the base doubles the living area in the summertime. The building materials are visible in this part of the house as well. Folding doors allow the pavilion to be opened completely, connecting it with the terrace. The large roof overhang shelters these doors from the weather. The mobile kitchen can then be set up on the light-flooded upper storey. The two parts of the house are connected via a wooden stairway that simultaneously acts as a bookcase. In the winter, a horizontal sliding door closes the two areas off from each other. The garden level produces sufficient waste heat to use the pavilion as a conservatory for plants. Moreover, this closed space provides a further insulating layer to protect the house from wintry temperatures. Season-dependent living, as enabled at the House by the Lake, conserves resources both in its construction and in the subsequent supply of energy.


















