Abstract waffle pattern
Loacker Galaxy by MoDusArchitects
A wooden coffered ceiling connects the café and shop. © Marco Cappelletti
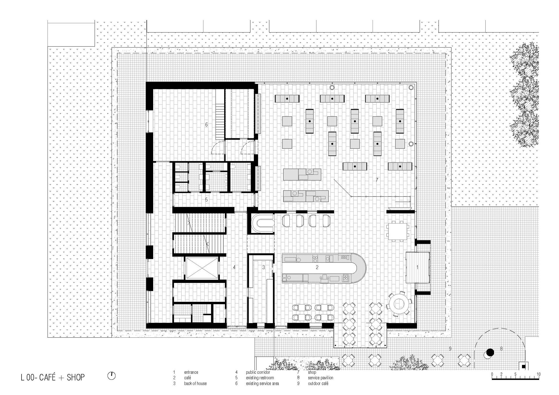
To celebrate the 100th anniversary of the Loacker wafer, MoDusArchitects completely redesigned the flagship store in Heinfels, Austria. This included renovating the café, sales area and pastry shop on the upper floor, as well as adding a new service pavilion with an outdoor area. The aim was to reorganise the location in terms of both function and design, strengthening its role as a meeting place.


Freestanding display shelves serve as presentation areas. © Marco Cappelletti
Contrasting materials
The interior design focuses on the interplay of wood and stainless steel. While wood evokes the family business's artisanal heritage, stainless steel symbolises industrial precision. This contrast is evident throughout. It creates a clear, functional order and strengthens the brand's identity.


The oval-shaped workshop area has a functional atmosphere. © Marco Cappelletti
Flexible room configurations
A wooden coffered ceiling connects the café and shop. The waffle pattern is abstracted, the surface structured and in contrast with the existing grey natural stone floor. The sculpturally folded stainless steel counter marks the entrance, welcoming visitors. Ten free-standing stainless steel display shelves provide presentation areas for the product range. Mounted on swivel castors, they allow for flexible room configurations. A colourful self-service display of brightly coloured sweets on the wall behind them adds a graphic accent.


A colourful self-service display tempts visitors with an array of sweets. © Marco Cappelletti


The coffered ceiling features an abstract wafer pattern. © Marco Cappelletti
Robust surfaces
On the upper floor is an oval-shaped, half-height workshop enclosed by glass. Here, visitors can gain an insight into the manufacturing process and make their own waffles. Robust materials such as black lacquered wood, red floor tiles and shiny stainless steel furniture create a functional atmosphere.


You can make your own wafers in the workshop. © Marco Cappelletti
New glass extension
A new glass extension connects the café to the outdoor area, which will feature a hazelnut garden and a playground in the future. The service pavilion at the entrance marks the transition between the car park and the open spaces, and its form and materiality reference the interior concept. This redesign creates a space that combines production, sales and experience, reinterpreting the Loacker brand identity in spatial terms.
Architecture: MoDus Architects
Project team: Sandy Attia, Matteo Scagnol, Camilla Cormanni, Leonardo Franzini, Martina Salmaso
Client: Loacker Moccaria international
Location: Panzendorf 196, 9919 Heinfels (AT)
Timber construction: Holzbau Lusser
Interior metalwork: Barth Innenausbau
Interior carpentry work: Bau- und Möbeltischlerei Friedrich Wieser
Painting work: Maler und Vergoldermeister Kollreider
Tiling work: Georg Rohrache



























