// Check if the article Layout ?>
Making One from Two: Traffic Police Station in Aschaffenburg
Foto: bild_raum
Bei dem Neubau handelt es sich um einen schlichten Riegel mit Maßen von 64 x 16,5 m, dessen Längsfassade parallel zur Autobahn verläuft. Da die Parzelle nach Norden hin abfällt scheint sich der Körper regelrecht in den Boden einzugraben und weist zwei verschiedene Eingangsniveaus auf. Das Sockelgeschoss ist nur nordseitig zu sehen und öffnet sich hier zu einem von außen nicht einsehbaren Innenhof. Diesen spannt die Verkehrspolizeiinspektion auf mit einem kleinen Nebenvolumen, das Notstromanlage und Carports beinhaltet.
Während der Sockelbereich in Dunkelgrau gehalten in den Hintergrund rückt, sind die oberen zwei Geschosse in vorgefertigte Stahlbetonsandwichelemente gekleidet. Die rechteckigen Paneele zaubern ein spannendes Relief auf die Ansichten. Sie sind jeweils zur Mitte hin inklinierend und verleihen dem sonst so schlichten Neubau eine subtile Lebendigkeit. Die hellen Fassaden werden von Fensterbändern unterbrochen, die leicht nach innen versetzt und in Kombination mit schlammfarbenen Zwischenteilen die geschossweise Organisation betonen.
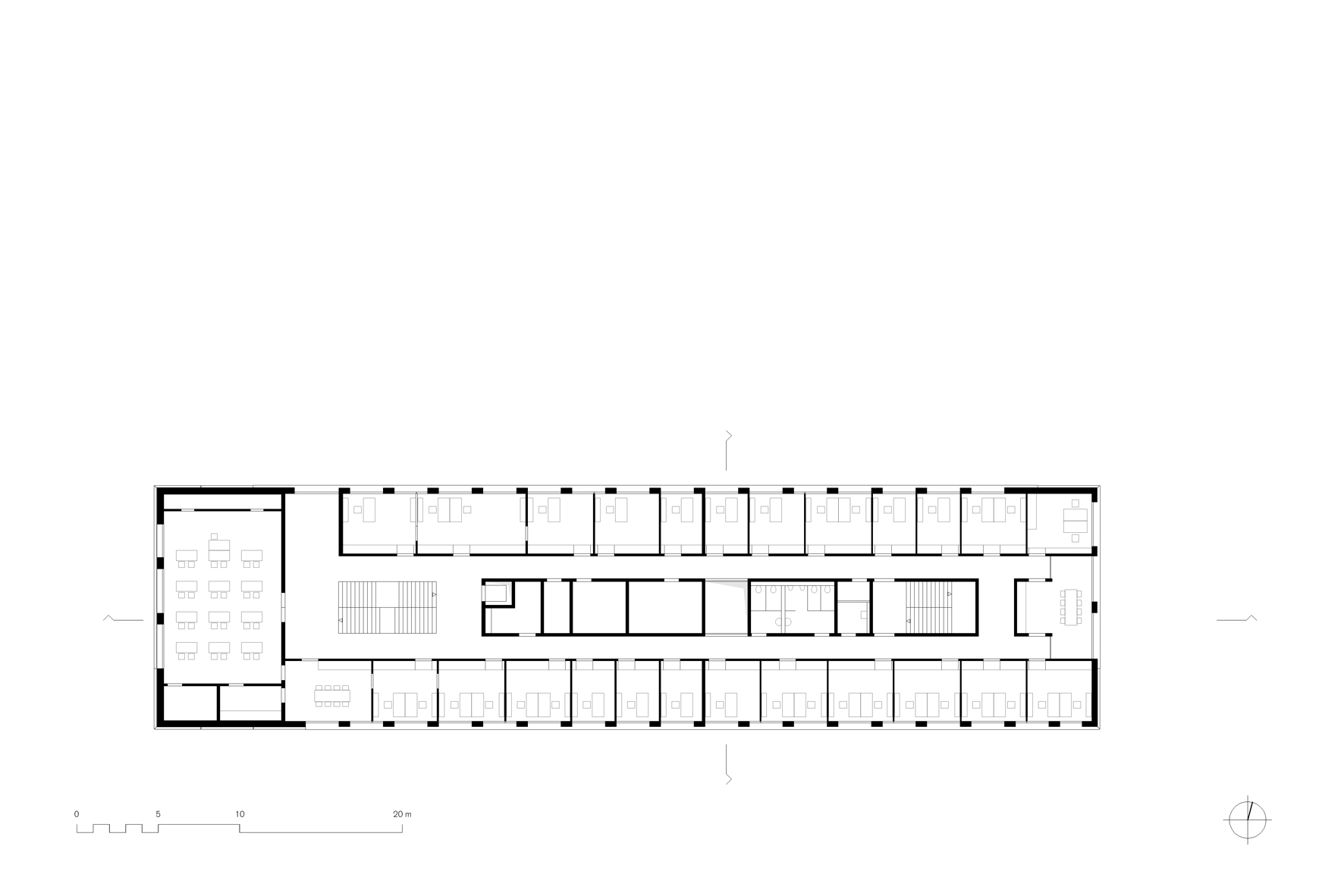
Auch programmatisch hebt sich der Sockel vom restlichen Gebäude ab. Er nimmt Garagen, Werkstätten, Hafträume, Technik und Lager in sich auf. Der Haupteingang erfolgt eine Ebene höher von Westen her. In diesem Bereich kragt das obere Stockwerk über das Erdgeschoss aus und schafft einen geschützten Bereich zum Ankommen. Der Bau ist so konzipiert, dass jeweils an den Längsfassaden die Büros aneinandergereiht sind. Stirnseitig gibt es größere Einheiten für Besprechungen und Schulungen. Den Abschluss bildet der zentrale Erschließungskern, der neben dem großen repräsentativen Treppenhaus die Nassräume in sich aufnimmt. Um bis in die Mitte optimale Belichtung zu gewährleisten, gibt es in diesem Bereich fünf Oberlichter.
Den lichtdurchfluteten Charakter unterstreichend, erstrahlt die gesamte Verkehrspolizeiinspektion in hellem Weiß. Sämtliche Oberflächen der Innenräume – von den gebrochenen Kalksandsteinwänden über Absturzsicherungen bis hin zu den Türblättern – präsentieren sich durchgehend als Traum in Weiß und schaffen ein neutrales Ambiente für die Polizeiarbeit.
Abgerundet wird das Projekt von Bez + Kock Architekten durch ein durchdachtes Energiekonzept. Die hochwertige Dämmung, eine Luft/Wasser-Wärmepumpe und eine Solaranlage machen die Verkehrspolizeiinspektion zum intelligenten Selbstversorger.


















