// Check if the article Layout ?>
Microarchitecture Meets Pure Nature: Sauna in Norway
Photo: NTNU Norwegian University of Science and Technology
Eldmølla is the result of a student project on the theme of typology/topology/tectonics that was created with the professors at Norway’s NTNU. The implementation of microarchitecture ranged from a four-month design and development phase to the two-week execution in place.
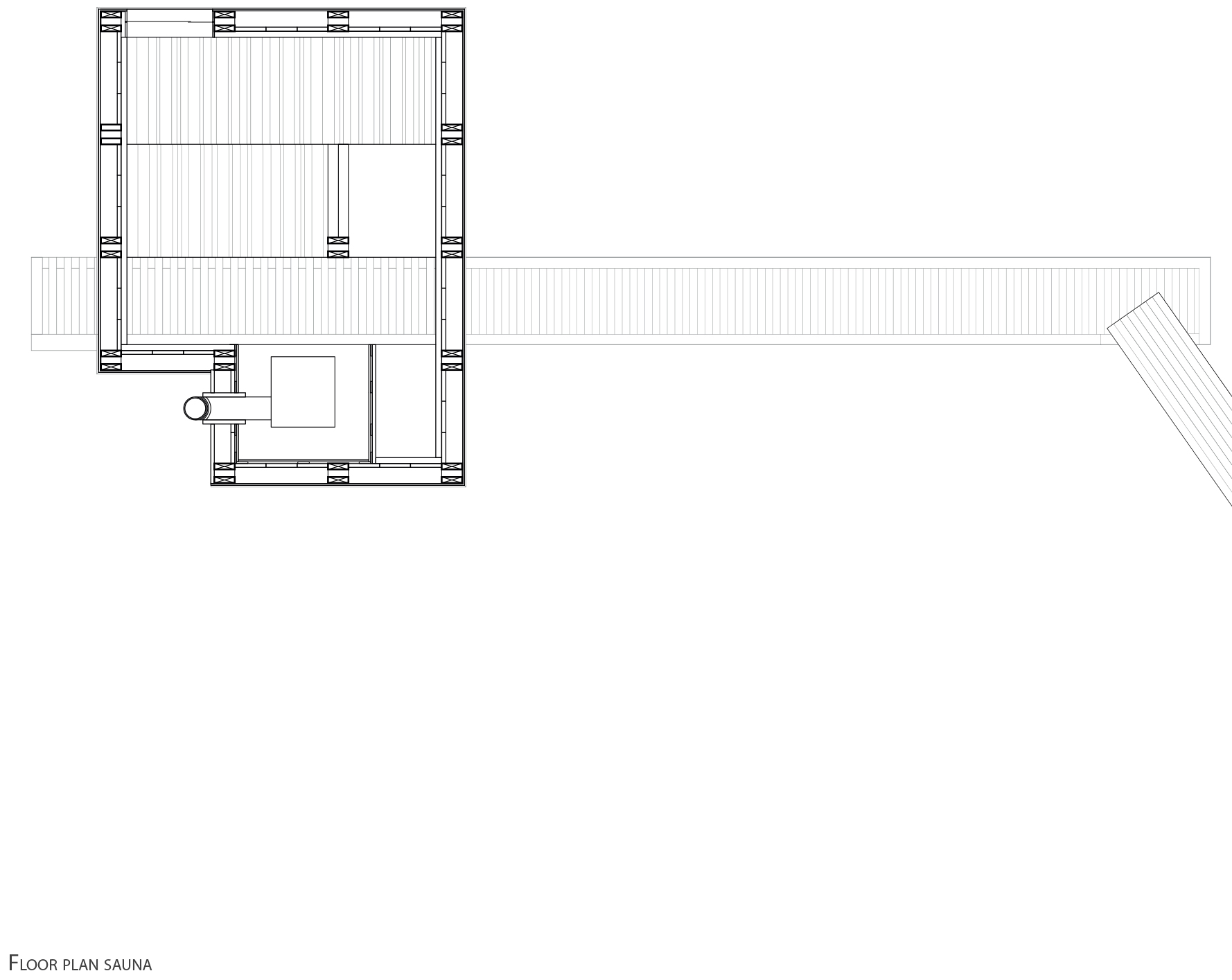
The wooden cube has just five m² of floor space and 4.5 m of height. Inspired by the typology of a mill house, the spatial program of the minimal sauna is arranged around a mountain stream. This has been included in the architecture and is, in fact, a central design element.
Eldmølla is made completely of sprucewood. The construction also acts as a design element. Formally, the sauna comprises two parts: the access and the main volume. Visitors reach the cube via a small bridge. This serves not only to span the waterfall, its two-layer addition also provides the water supply for the sauna. While visitors walk above, the stream flows beneath. This creates a subtle connection between nature and architecture.
The sauna itself is divided into an upper and lower area. Because of their different functions and related needs, these areas are quite different. Their duality is particularly clear in the façade design. The lower level is partly open and clad in vertical wooden slats; the upper level stands apart. It looks significantly more closed-off and compact. Moreover, its horizontal slats correspond with the bridge.
The lower level accommodates the sauna’s changing area. Here the bridge continues as a narrow path on the side of the slope and leads to the opposite outside wall, where it ends with an opening featuring a view of the natural surroundings. The water conveyed across the bridge to the interior collects in a basin; it can be used for cooling off or sauna infusions. The interplay between transparency and closedness seen in the outer shell encourages visitors to look outside again and again. The entire space feels open and accentuates its energetic interaction with its environment.
A ladder leads up into the level above, where the actual sauna is located. This space consists only of the sauna stove and benches. The two-layered façade construction ensures optimal room temperatures in this area. In order to disturb this effect as little as possible, here there are only few, targeted apertures in the outer shell.
The wooden cube has just five m² of floor space and 4.5 m of height. Inspired by the typology of a mill house, the spatial program of the minimal sauna is arranged around a mountain stream. This has been included in the architecture and is, in fact, a central design element.
Eldmølla is made completely of sprucewood. The construction also acts as a design element. Formally, the sauna comprises two parts: the access and the main volume. Visitors reach the cube via a small bridge. This serves not only to span the waterfall, its two-layer addition also provides the water supply for the sauna. While visitors walk above, the stream flows beneath. This creates a subtle connection between nature and architecture.
The sauna itself is divided into an upper and lower area. Because of their different functions and related needs, these areas are quite different. Their duality is particularly clear in the façade design. The lower level is partly open and clad in vertical wooden slats; the upper level stands apart. It looks significantly more closed-off and compact. Moreover, its horizontal slats correspond with the bridge.
The lower level accommodates the sauna’s changing area. Here the bridge continues as a narrow path on the side of the slope and leads to the opposite outside wall, where it ends with an opening featuring a view of the natural surroundings. The water conveyed across the bridge to the interior collects in a basin; it can be used for cooling off or sauna infusions. The interplay between transparency and closedness seen in the outer shell encourages visitors to look outside again and again. The entire space feels open and accentuates its energetic interaction with its environment.
A ladder leads up into the level above, where the actual sauna is located. This space consists only of the sauna stove and benches. The two-layered façade construction ensures optimal room temperatures in this area. In order to disturb this effect as little as possible, here there are only few, targeted apertures in the outer shell.
Further information:
Course instructor: August Schmidt, Arnstein Gilberg, Ina Samdal
Students: Julie Allémann, Ana Baía, Quentin Desveaux, Roger Escorihuela, Rahel Haas, Anastasiia Ignatova, Feliks Ulvåen Isaksen, Agathe Ledoux, Louis Meny, Sebastià Mercadal, Adrienne Michels, Thuy Nguyen, Pierre-Louis Passard, Kristinn Pálsson, Benoît Perrier, Benedikt Profanter, Pedro Simões, Ninni Westerholm
Course instructor: August Schmidt, Arnstein Gilberg, Ina Samdal
Students: Julie Allémann, Ana Baía, Quentin Desveaux, Roger Escorihuela, Rahel Haas, Anastasiia Ignatova, Feliks Ulvåen Isaksen, Agathe Ledoux, Louis Meny, Sebastià Mercadal, Adrienne Michels, Thuy Nguyen, Pierre-Louis Passard, Kristinn Pálsson, Benoît Perrier, Benedikt Profanter, Pedro Simões, Ninni Westerholm
















