// Check if the article Layout ?>
Mountain Cabin in Sunndal: Rever & Drage Build on Troll’s Peak
Photo: Tom Auger
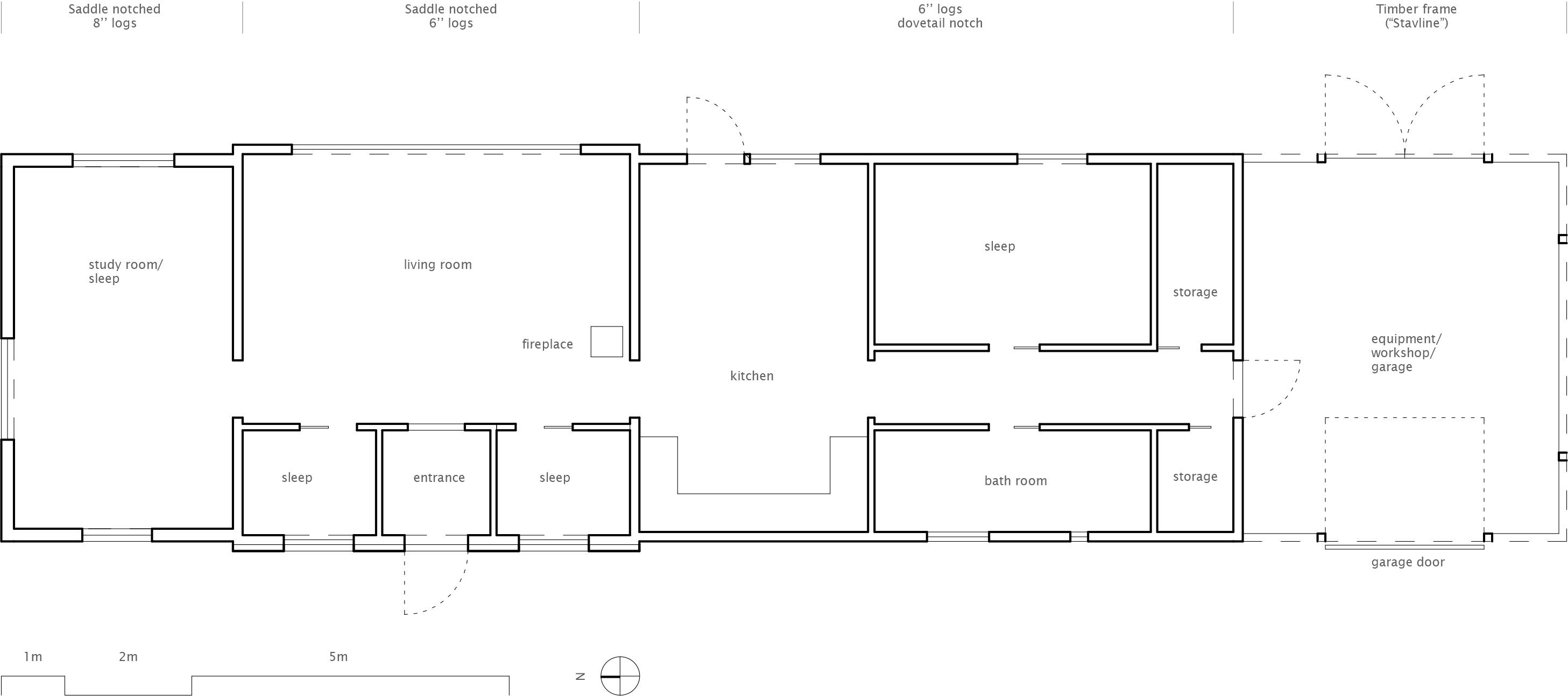
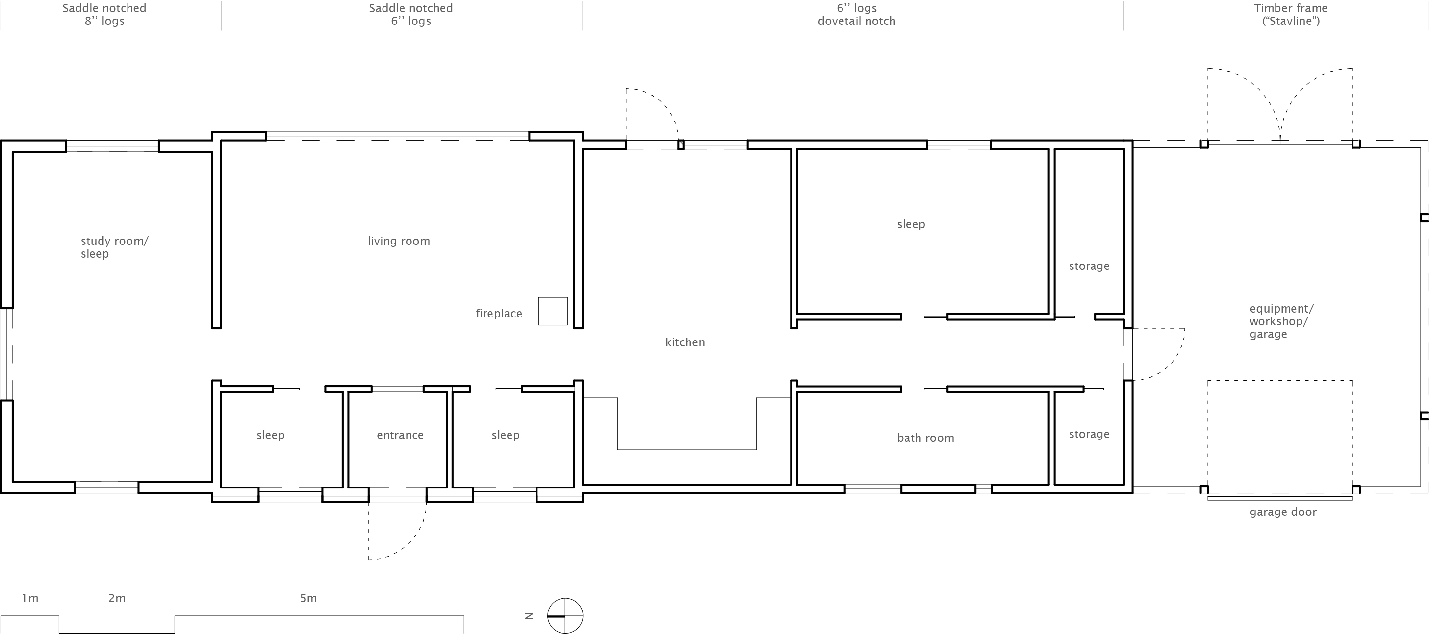
The cabin, which covers 140 m², is built of local wood. Several traditional building styles and construction techniques playfully come together in the house by Rever & Drage Architects. The materials and construction styles were chosen to meet functional requirements on the one hand and the rough weather in the high mountain valley on the other. The cabin will be used as a comfortable place for hikers with a lot of equipment to spend the night. There is a dry room for wet clothing as well as sufficient space for skis and baggage. Visitors enter through a glazed sunroom and pass through a scullery and bathroom to the kitchen area, then continue to the fireplace room, which features a large picture window.
The transparent sunroom in the south part of the house also serves as a workshop and storage room. From here, the view opens onto the nearby Ryssdalsnebba mountain. At the north end of the house, there is a large bedroom with a dormer window. Two smaller rooms suitable for either sleeping or working are adjacent to the living room, which has a barrel-vaulted ceiling. An entrance with a gable front is positioned between the two smaller rooms. The entire composition is based on a klyngetun, a traditional Norwegian farmhouse featuring buildings of different construction styles for their various functions. These are arranged all in a row according to the prevailing direction of the wind.
The transparent sunroom in the south part of the house also serves as a workshop and storage room. From here, the view opens onto the nearby Ryssdalsnebba mountain. At the north end of the house, there is a large bedroom with a dormer window. Two smaller rooms suitable for either sleeping or working are adjacent to the living room, which has a barrel-vaulted ceiling. An entrance with a gable front is positioned between the two smaller rooms. The entire composition is based on a klyngetun, a traditional Norwegian farmhouse featuring buildings of different construction styles for their various functions. These are arranged all in a row according to the prevailing direction of the wind.














