[Translate to en:] A New Start with Local Colour: The Kunskapshuset in Gällivare
Foto: Anders Bobert
Im nordschwedischen Eisenerzrevier kommt es immer wieder vor, dass Häuser oder ganze Gemeinden umgesiedelt werden. Von diesem Schicksal ist auch die Siedlung Malmberget (wörtlich: Erzberg) bei Gällivare im schwedischen Teil von Lappland betroffen. Sie steht auf einem Erzbergwerk, dessen Stollen mittlerweile teils gesprengt wurden. Dadurch klafft nun mitten im Ort ein 250 m tiefes Loch, viele Häuser sind einsturzgefährdet.
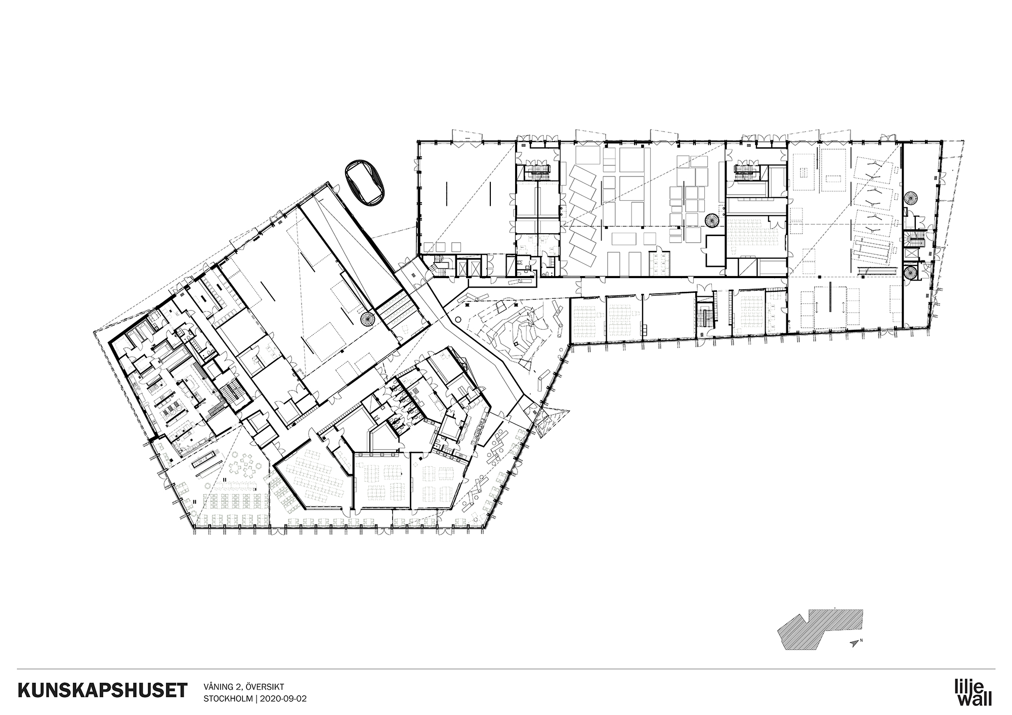
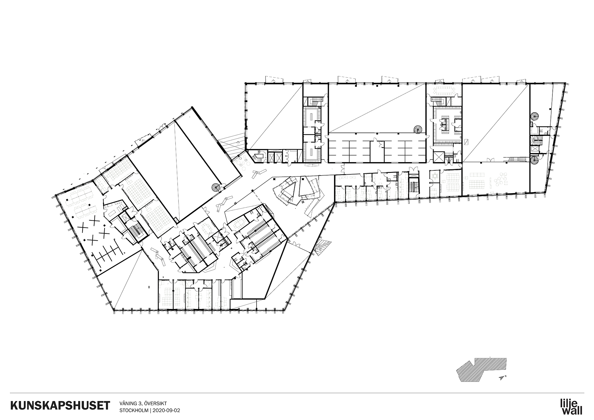
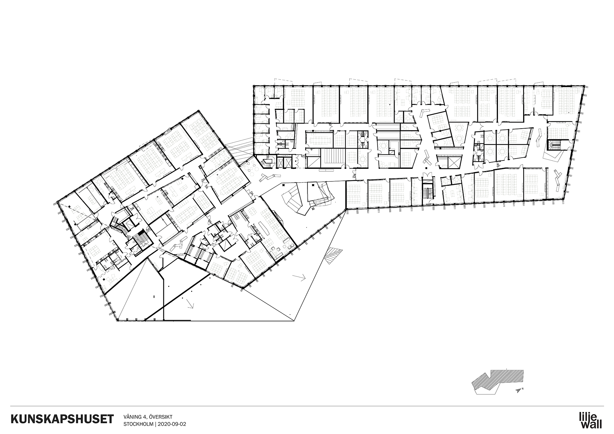
Für die Bewohner entsteht derzeit näher am Stadtzentrum von Gällivare neuer Wohnraum. Dadurch wächst dort auch der Bedarf an öffentlichen Einrichtungen wie dem Kunskapshuset (Haus des Wissens), das Liljewall zusammen mit MAF Arkitektkontor entworfen haben. Der sechsgeschossige, terrassierte Neubau hat Platz für 850 Schüler der gymnasialen Oberstufe und für eine Einrichtung der Erwachsenenbildung. Das rot gestrichene Fassade des Gebäudes ist inspiriert von den Farben der nahen Natur. Das äußerlich markanteste Merkmal sind sicher die übergroßen, außen liegenden Fassadenpfosten aus Leimholz. Paarweise angeordnet und sägezahnartig profiliert, gliedern sie die Ansichten des Gebäudes in der Vertikalen und der Horizontalen. Das Haus selbst basiert auf einem Hybridtragwerk aus Stahlstützen und –unterzügen sowie Stahlbeton-Hohldielen. In den Konferenzräumen im Dachgeschoss, der Kantine im Erdgeschoss und der eindrucksvollen, fünfgeschossigen Eingangshalle kehren Elemente des Außenbaus auch im Inneren wieder. Mächtige Holzstützen tragen hier die im Fischgrätmuster angeordneten Dachträger aus rot gestrichenem Holz. An vielen Stellen haben die Architekten auch die Innenausstattung eigens für den Neubau entworfen. Dabei griffen sie Motive aus der Landschaft rund um Gällivare auf – etwa in der Kantine, wo die Leuchten über der Essensausgabe an Angelruten erinnern und die Sitzbänke wie übereinandergeworfene Holzbalken aussehen.























