Oasis for reminiscence: Siesegem Crematorium by KAAN Architects
Foto: Sebastian van Damme
Serenity, contemplation and reminiscence characterise Siesegem Crematorium, recently completed by KAAN Architects on the outskirts of Aalst, Belgium. The idea behind the project was to create reserved, circumspect architecture to accompany people in the crematorium setting.
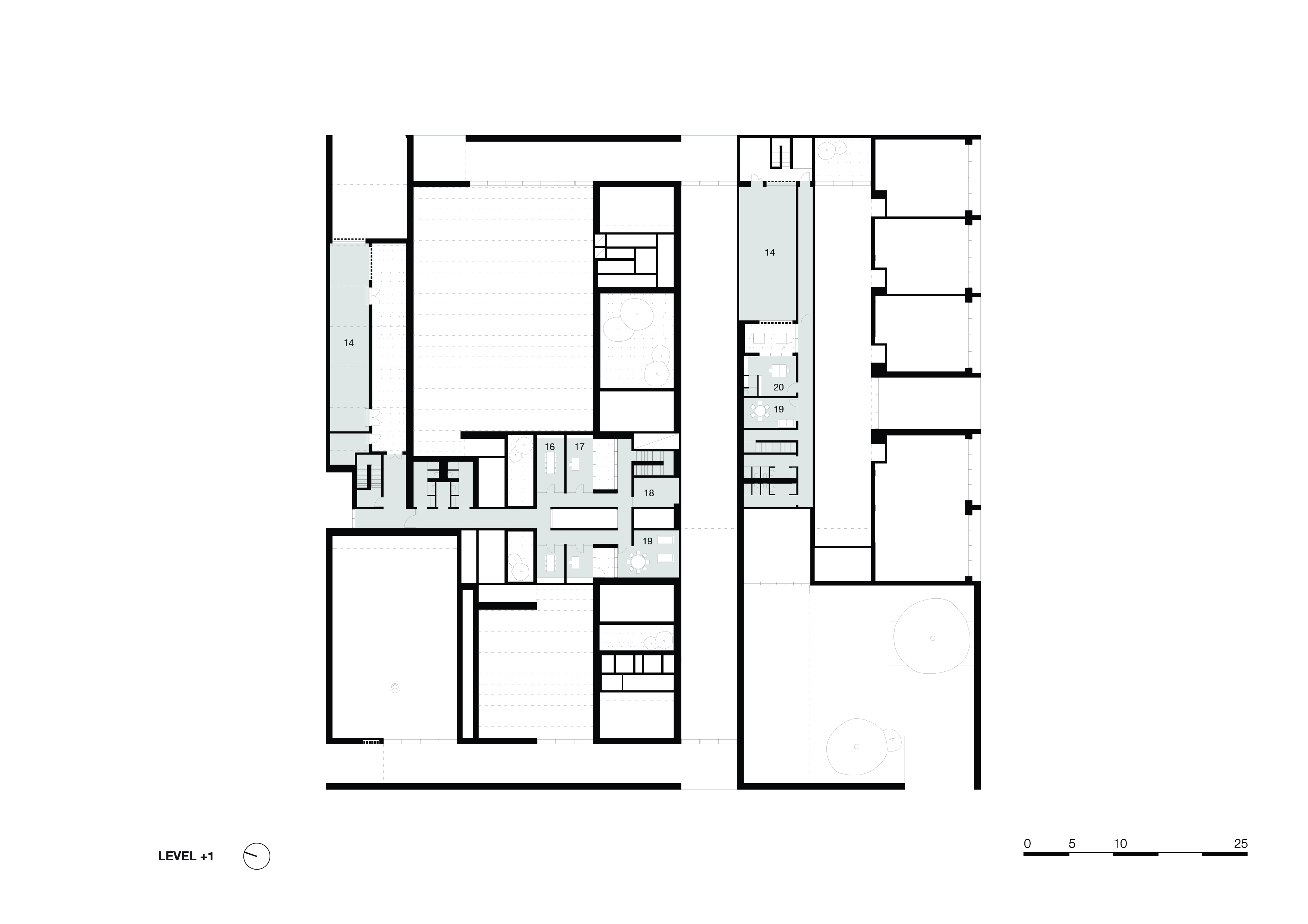
A sequence of clear shapes and rectilinear spaces leads the visitors into the building. A band of large windows fills the entrance hall of Siesegem Crematorium with natural light and opens up broad views onto the adjacent landscaped garden. The principle elements of the building consist of two ceremony halls that both possess a family room and a special place for expressing condolences and commiseration.
One of the most important design aspects was to make the mechanical installations used in the cremation process clearly visible; the cremation furnace and chimney have also been given a finish in warm yellow hues in keeping with the building's calming visual vocabulary. The architects made use of fair-faced concrete for the outer walls of the building, and oak parquet flooring indoors. Walls have been given a matte, relief-like texture while the acoustic plaster used for the ceilings helps absorb sound.



































