An Open Archive: Monument to Slave Labourers in Charlottesville
Foto: Alan Karchmer
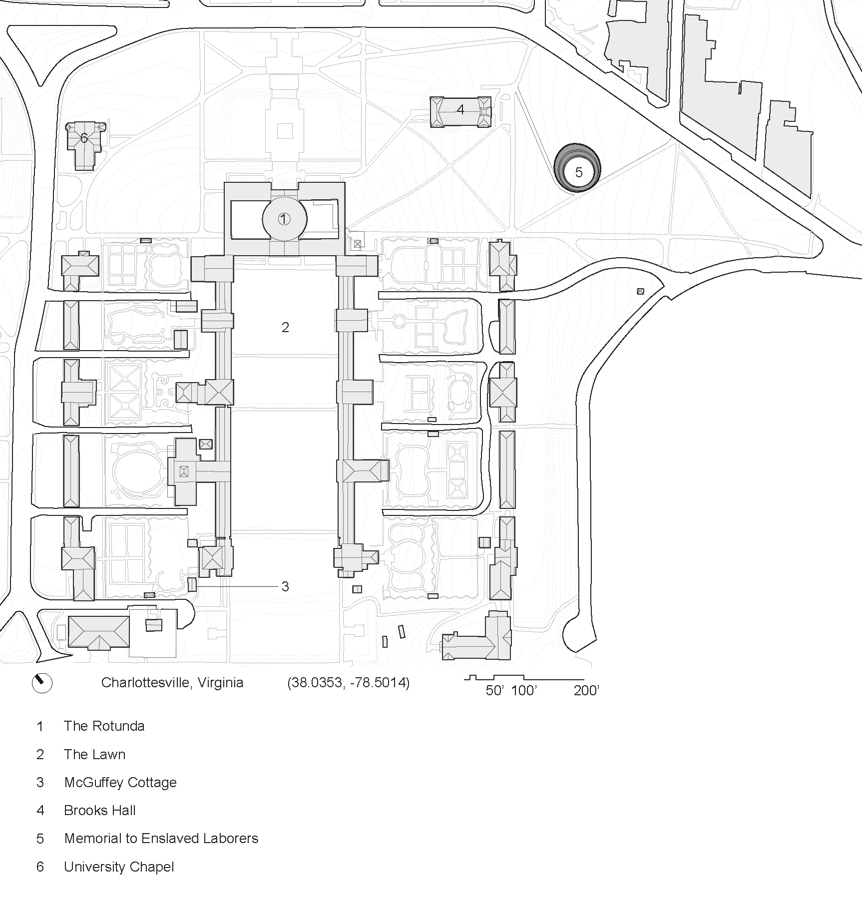
Thomas Jefferson, der dritte Präsident der Vereinigten Staaten, entwarf die Universität von Virginia (UVA) in Charlottesville und ließ sie von Sklaven erbauen und bewirtschaften. Dieser Teil der Universitätsgeschichte wurde lange ausgeblendet, bis eine studentische Initiative 2010 begann, sich für ihre Aufarbeitung einzusetzen. Sie forderte den Bau eines Denkmals, das nun ausgerechnet in diesem Jahr fertiggestellt wurde. Noch vor seiner Einweihung wurde es zum Ort für individuelles Gedenken und größere Versammlungen, um auf den institutionellen Rassismus und die Polizeigewalt, der auch heute noch viele Afroamerikaner ausgesetzt sind, aufmerksam zu machen.
Das Denkmal besteht aus mehreren konzentrischen Kreisen, die mit grauem Virginia Mist-Granit verkleidet sind. Zum Gehweg hin senkt sich der äußere Kreis ab, hier können Besucher das Denkmal betreten. Um die kreisrunde Grasfläche im Zentrum herum liegt der erste Ring mit einem Wasserlauf. Darauf erzählt ein Zeitstrahl die Geschichte der versklavten Afroamerikaner an der UVA von 1619, als die ersten Sklaven nach Virginia kamen, bis 1889 – dem Jahr in dem Isabella Gibbons starb. Gibbons wurde ebenfalls als Sklavenarbeiterin an der Universität gehalten, arbeitete nach der Befreiung dann als Lehrerin in Charlottesville. Durch ihre Schriften, die erst im 21. Jahrhundert Beachtung fanden, wurde sie im Nachhinein zur Stimme der versklavten Afroamerikanerinnen und Afroamerikaner an der UVA. Auszüge daraus finden sich ebenfalls im inneren Kreis des Denkmals, ein Abbild ihrer Augen wurde vom Künstler Eto Otitigbe großformatig an der Außenseite aufgebracht.
Markierungen auf der Innenseite des äußeren Kreises stehen für die 4000 Sklavenarbeiter, denen dieses Denkmal gewidmet ist. 578 Namen konnten bereits im Stein festgehalten werden, für 311 weitere Personen ist stellvertretend ihr ausgeübter Beruf oder die familiäre Position eingraviert. Für die noch fehlenden sind die Markierungen wie Platzhalter, ein unfertiges Archiv, das mit fortschreitender Forschung ergänzt wird.
Die in Boston arbeitenden Architekten Höweler + Yoon, die beide auch als Hochschulprofessoren arbeiten, haben das Denkmal bewusst als Einladung zu verschiedensten Formen des Gedenkens formuliert – seien es Versammlungen, Feiern, Performances, Bildung oder bürgerschaftliches Engagement. Seine kreisrunde Form und der Wasserlauf sind eine Hommage an mehrere Elemente aus der afrikanischen Diaspora. So zum Beispiel an Trankopfer-Rituale oder den Ring Shout, ein spirituelles Tanzritual, das im Kreis vollzogen wird und Befreiung zelebriert. Ein Pfad aus Trittsteinen führt vom Denkmal aus in Richtung Norden. Der Nordstern galt unter Sklavenarbeitern als Richtungsweiser in die Freiheit.
Weitere Informationen:
Historikerin, Designerin: Dr. Mabel O. Wilson, Studio &
Community Engagement Facilitator: Dr. Frank Dukes
Landschaftsarchitekten: Gregg Bleam Landscape Architect (Gregg Bleam, Aaron Bridgers)
Künstler: Eto Otitigbe Bauingenieure: Nitsch
Statik: Silman Elektro- und Sanitärtechnik: WSP Lichtdesign: George Sexton Associates
Beratung Wasserspiel: DEW Entwurf Typografie: Common Name
Generalunternehmer: Team Henry Enterprises
Fertigung und Montage Granit: Quarra Stone




















