// Check if the article Layout ?>
Old meets new: Prada Campus in Milan
On the grounds of an old distillery from the twentieth century, OMA Architects have created an art exhibition campus for Milan’s Fondazione Prada. Among the old storage halls and boilers, the added buildings set a striking contrast: some are glossy, some are matte; some are dominant, while others are more reticent. All have found their place surrounded by the historical structures.
Architect: OMA, Rotterdam
Location: Largo Isarco 2, 20135 Milan, Italy
Architect: OMA, Rotterdam
Location: Largo Isarco 2, 20135 Milan, Italy
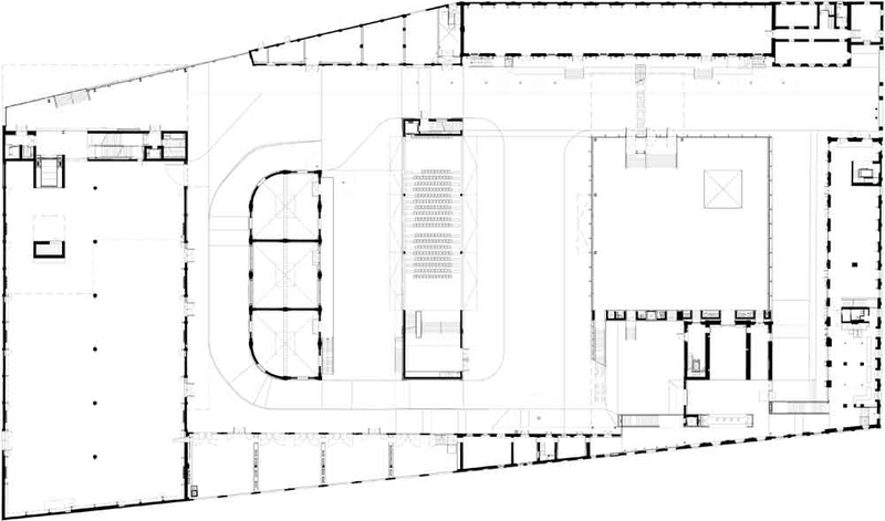
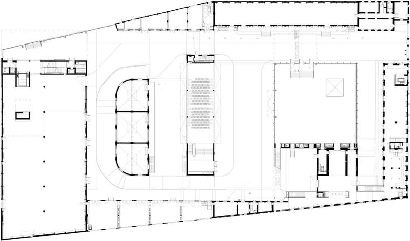
On the campus of the Fondazione Prada, OMA Architects have combined two different disciplines: Restoration and the preservation of the existing buildings on the one hand, and the planning and integration of the additional buildings on the other. Here old and new structures will mutually complement each other’s architectural grace and offer a multifaceted stage for exhibitions of all kinds.
The 19,000-m² campus comprises three new buildings along with the seven existing ones. The new buildings now form part of an ensemble grouped around a spacious inner courtyard. This is where a cinema has been built, along with a museum for permanent exhibitions and a ten-storey tower where the foundation’s collection will be displayed. The new buildings differ not only in shape and function, but also in their façade designs, which gives the area a diverse appearance. Furthermore, the Fondazione Prada has commissioned the architects to design an exhibition about Greek and Roman sculpture art. The exhibition will take place in Milan and Venice over the course of the year.
New, old, horizontal, vertical, wide, narrow: OMA Architects have succeeded in bringing together the seemingly greatest differences. The recently inaugurated campus presents itself as a complex ensemble of various building styles with many different surface designs. Industrial twentieth-century buildings contrast with the newly erected exhibition spaces, creating an exciting coexistence.
Project data
Client: Fondazione Prada
Partner: Rem Koolhaas, Chris van Duijn
Project management: Federico Pompignoli
Supervision architects: Alvisi Kirimoto & Partners, Atelier Verticale
Civil engineer: Favero & Milan
Cost consulting: GAD
Acoustics: Level Acoustics
Stage setting: Ducks Sceno
Fire protection: GAE Engineering
Client: Fondazione Prada
Partner: Rem Koolhaas, Chris van Duijn
Project management: Federico Pompignoli
Supervision architects: Alvisi Kirimoto & Partners, Atelier Verticale
Civil engineer: Favero & Milan
Cost consulting: GAD
Acoustics: Level Acoustics
Stage setting: Ducks Sceno
Fire protection: GAE Engineering













