Open Floor Plan: LabCity in Paris-Saclay by OMA
Photograph by Philippe Ruault, Courtesy of OMA
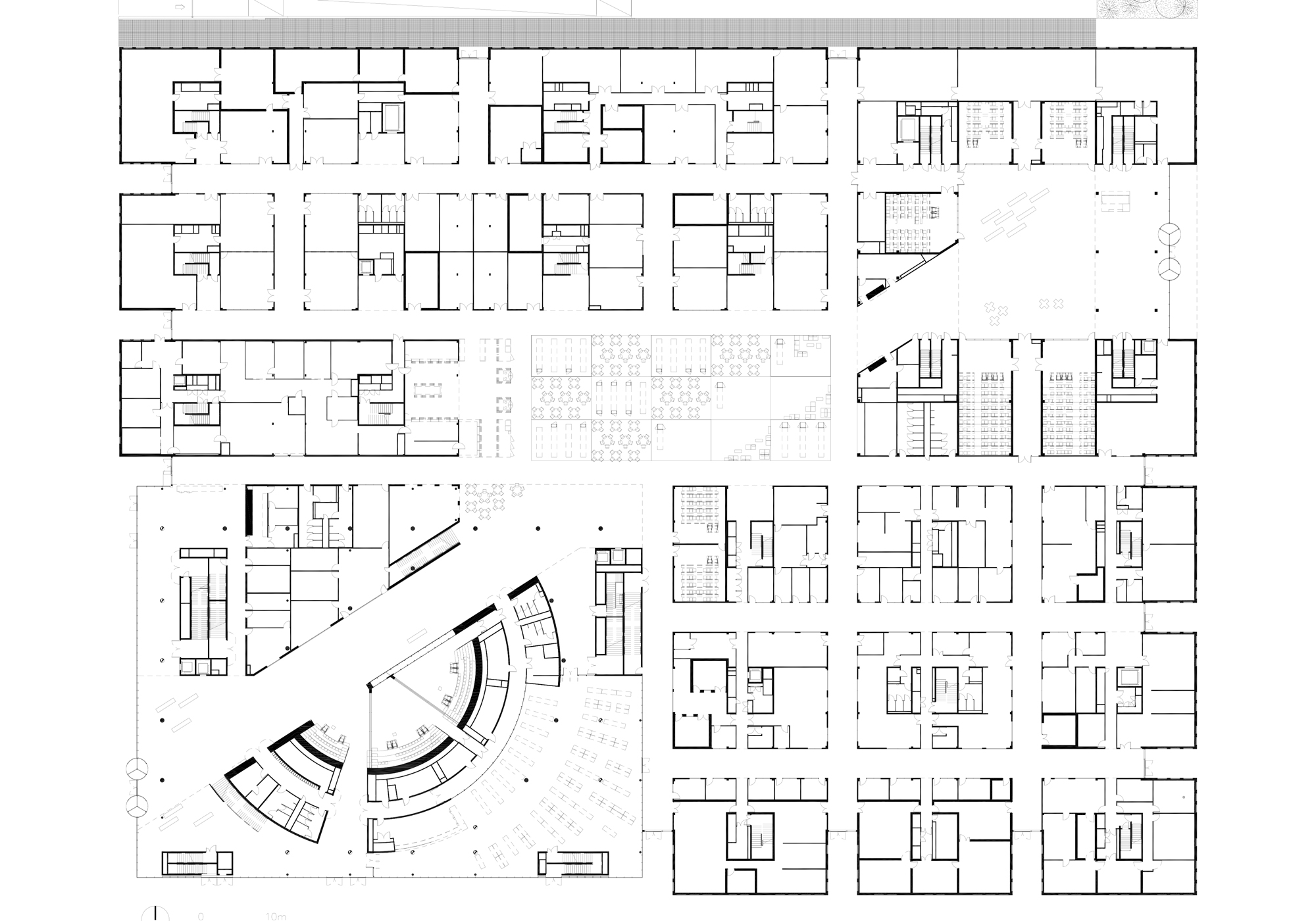
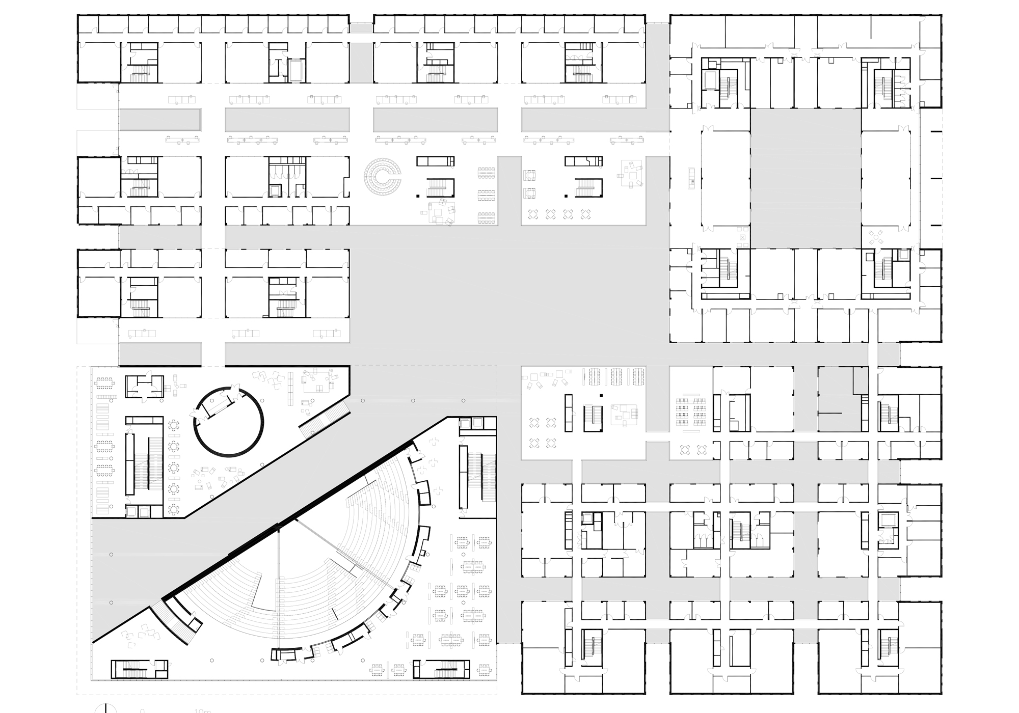
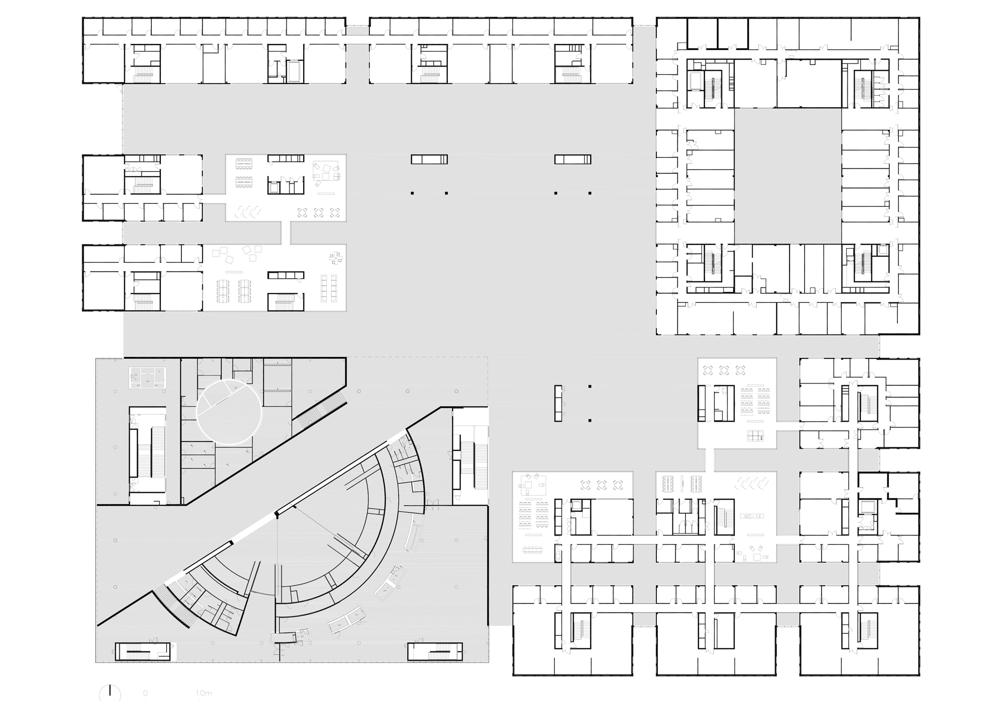
LabCity is devoted to technology and engineering. OMA have embedded the enormous building among the green spaces and surrounding structures on the Paris-Saclay campus. It forms the connection between the future heart of the university grounds and the Métro station. The architects have emphasized this interface with an axis that cuts a diagonal line through the rectangular LabCity. Apart from this one exception, the building is based on a strict grid. Self-contained cells are organized within an open floor plan. Each of the functional units has its own supply core and access: while some of these are connected via bridges on the upper levels, on the ground floor they separate corridors that run both lengthways and crossways. At the ends of the main diagonal, in the northeast and southwest corners, there are larger, closed volumes. One of them is positioned above the large auditorium and stands on imposing columns facing the central common area.
A light roof structure of translucent panels covers the entire building and creates a bright, welcoming atmosphere inside LabCity. The grid’s intermediate area forms the main space of the school of technology and engineering. It has an open design and offers great possibility for learning, lounging and conversation. OMA have used seating groups on the entry level and boxes to zone, structure and group the various disciplines. A subtle industrial design featuring exposed concrete and visible installations completes the open floor plan.
OMA have made a dynamic educational building of the LabCity École Centrale Supélec, one where various approaches not only coexist, but benefit from each other. At the same time their flexible, progressive floor-plan concept questions the value of architecture in the public realm, which is so often aimed at aesthetics and prestige.






















