// Check if the article Layout ?>
Out to suburbia: French School in Beijing
Photo: Jacques Ferrier Architecture/Luc Boegly
Over the past decades the area around Beijing Airport has undergone rapid urbanisation, resulting in a patchwork-like carpet of housing developments, golf courses, outlet malls and parks with man-made lakes encroaching on a landscape once defined by fields and orchards. If it weren't for the direct metro connections to downtown Beijing and pavements along the roads, you could even imagine yourself in the heart of typical U.S. urban sprawl.
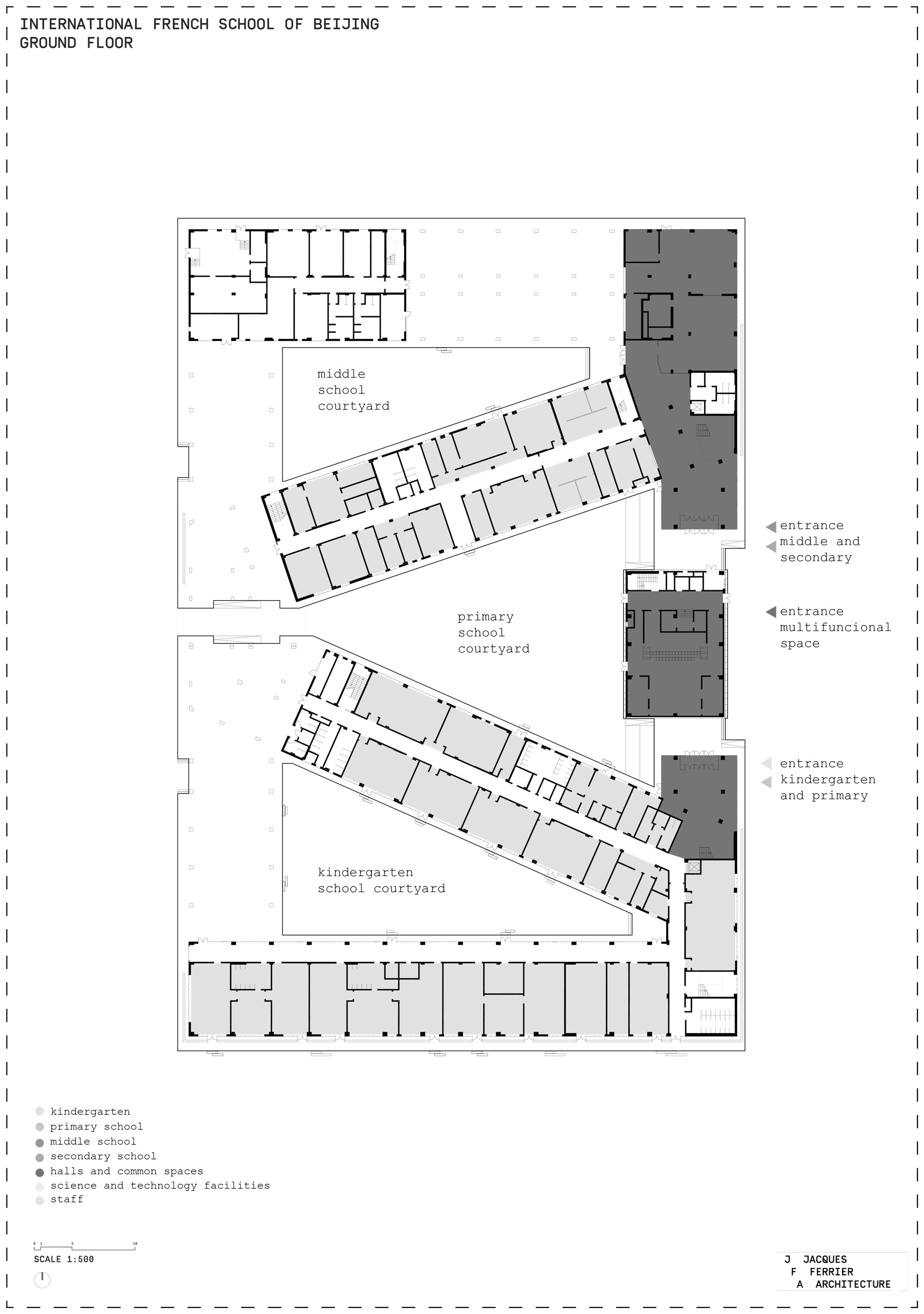
The French School has made a move from its various premises in the Chaoyang district in the eastern part of downtown Beijing to the area, to a complex planned by Jacques Ferrier Architecture and Sensual City Studio. Designed for 1,500 students, the new complex factors in the possibility of future growth – to date, the school has had approx. 1,000 children and youngsters from 40 countries.
The room programme is divided up among three separate units: the main building, which contains 60 form rooms and 15 activity classrooms; the canteen building, which seats 400, and the building housing the gym. The flat volumes – none of which rise beyond three storeys in height – correspond to the low-density character of the neighbourhood. Yet the schoolhouse makes the impression of being larger than it is: over a fairly long distance towards the playing fields and canteen in the west it includes an open colonnade, sheathed in timber latticework that lends it the look of a solid volume.
The playgrounds between the individual segments of the main building stand in a contrast to the open fields towards the west. The wooden lattice that screens the facades makes a filigree impression when seen from afar. Closer up it turns out to be a very sturdy structure made up of metal supports and slightly trapezoidal strips of square-edge timber, forming a striking textural antagonist, so to speak, to the smooth metal cladding of the neighbouring school canteen. The wooden sheath that extends up to the roof parapets could easily have concealed a tumble guard for roof terraces but the flat roofs are inaccessible to the pupils. The sole exception is a small area for the high-school students on the second floor.
The French School has made a move from its various premises in the Chaoyang district in the eastern part of downtown Beijing to the area, to a complex planned by Jacques Ferrier Architecture and Sensual City Studio. Designed for 1,500 students, the new complex factors in the possibility of future growth – to date, the school has had approx. 1,000 children and youngsters from 40 countries.
The room programme is divided up among three separate units: the main building, which contains 60 form rooms and 15 activity classrooms; the canteen building, which seats 400, and the building housing the gym. The flat volumes – none of which rise beyond three storeys in height – correspond to the low-density character of the neighbourhood. Yet the schoolhouse makes the impression of being larger than it is: over a fairly long distance towards the playing fields and canteen in the west it includes an open colonnade, sheathed in timber latticework that lends it the look of a solid volume.
The playgrounds between the individual segments of the main building stand in a contrast to the open fields towards the west. The wooden lattice that screens the facades makes a filigree impression when seen from afar. Closer up it turns out to be a very sturdy structure made up of metal supports and slightly trapezoidal strips of square-edge timber, forming a striking textural antagonist, so to speak, to the smooth metal cladding of the neighbouring school canteen. The wooden sheath that extends up to the roof parapets could easily have concealed a tumble guard for roof terraces but the flat roofs are inaccessible to the pupils. The sole exception is a small area for the high-school students on the second floor.
Further information:
Landscape architecture: Agence TER, Paris/Karlsruhe
Project management: Dessign Institute CAG
Property area: 37000 m2
Ground area: 19000 m2
Landscape architecture: Agence TER, Paris/Karlsruhe
Project management: Dessign Institute CAG
Property area: 37000 m2
Ground area: 19000 m2























