// Check if the article Layout ?>
Parisian Airiness: Addition with Shed Roof
Photo: Pedro Duque Estrada Meyer
Like a beam set into the district’s urban context, The 25 sits atop a previously existing building. An airy terrace, delimited by a light, white grid, juts out over the street. This grid, which surrounds the entire addition, contrasts with the red bricks of the entrance. The white addition lies on top of the two brick-clad walls that house the way upstairs. The bricks extend above the ground floor only in one place: the exterior elevator shaft. A stairway between the two walls leads up to the terrace. The light gridwork on the sides opens a view over the Parisian street scene.
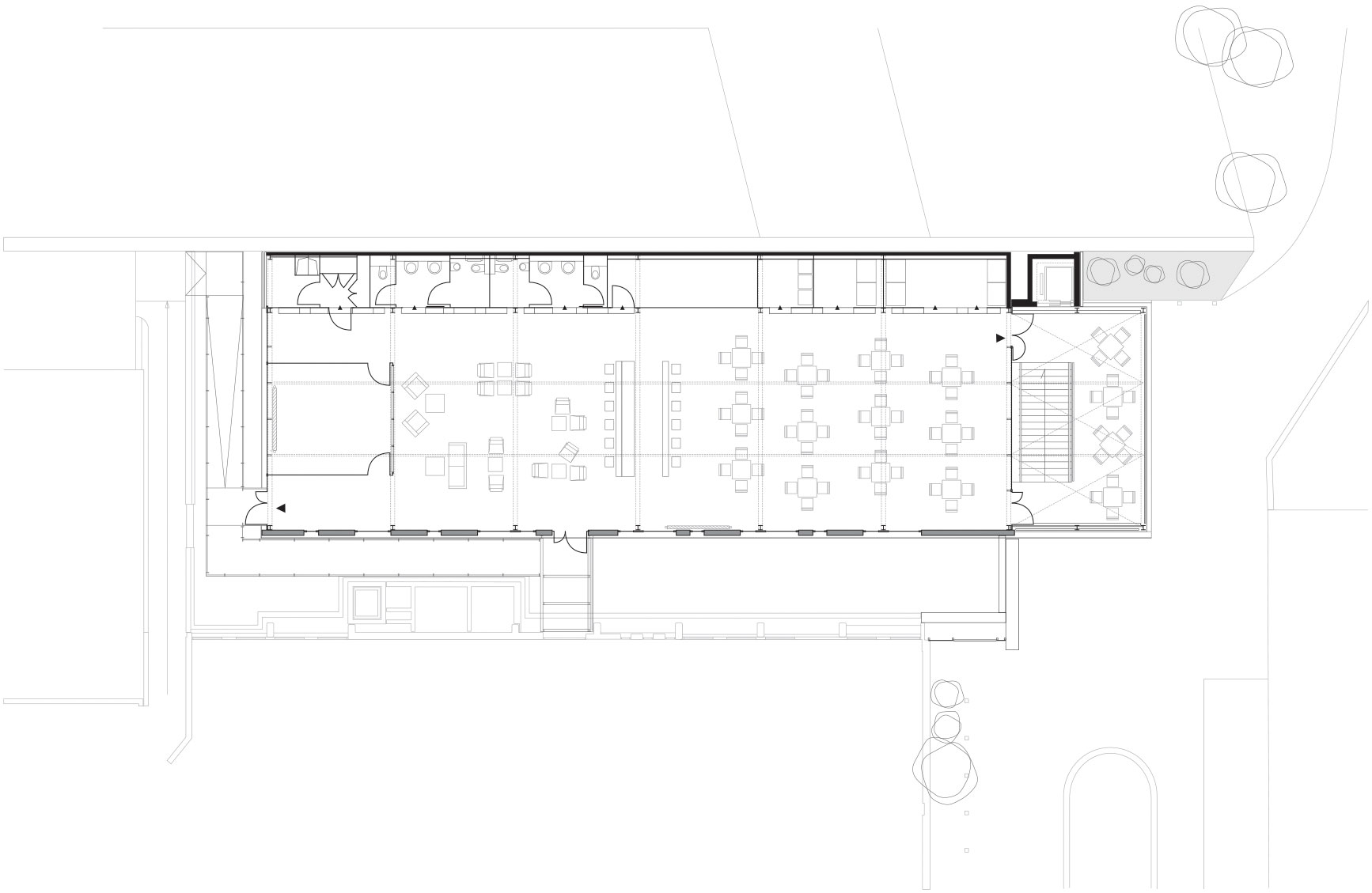
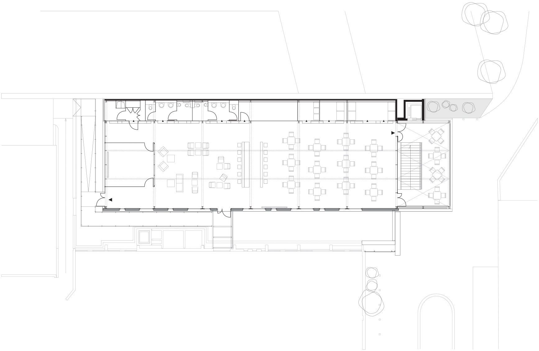
Inside, there is an open area with a bar. This space is devoted to exhibitions, but is also used as a hang-out and meeting place. The far end, enclosed by a glass wall, accommodates a space for meetings. All the necessary rooms for utilities, sanitary facilities and storage are located along the right-hand side. Library shelving has been fitted on the dividing wall between this area and the lounge.
Since the surrounding buildings stand close by the long sides of this structure, additional lighting was required. Daylight streams in through a shed roof. Supported by lamps, this provides comfortable, even lighting even in the core of the building. The white-painted ceilings add to the light-flooded impression.
The light construction and façade cladding originate in the previously existing structure. The 25 was erected on three base storeys that were supposed to remain in use throughout the project. This led to the decision in favour of a reduced supporting structure and prefabricated metal grids for the façade.













