// Check if the article Layout ?>
Passive Energy in the Tropics: Factory Update in Sri Lanka
Foto: Ganidu Balasuriya
In recent years, the clothing industry of the Indian subcontinent has not been the source of much good news. However even here, working conditions are steadily improving. A pioneer in the post-sweatshop movement is the innovation centre of the Star Garment Group, which is located outside the Sri Lankan capital of Colombo. Is it true that this factory sees only the development of new products and their subsequent manufacturing in the form of samples. But the building project has set new standards in the areas of workplace comfort, energy efficiency and sustainability.
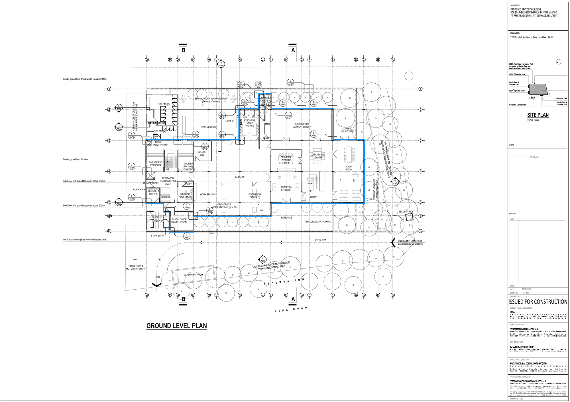
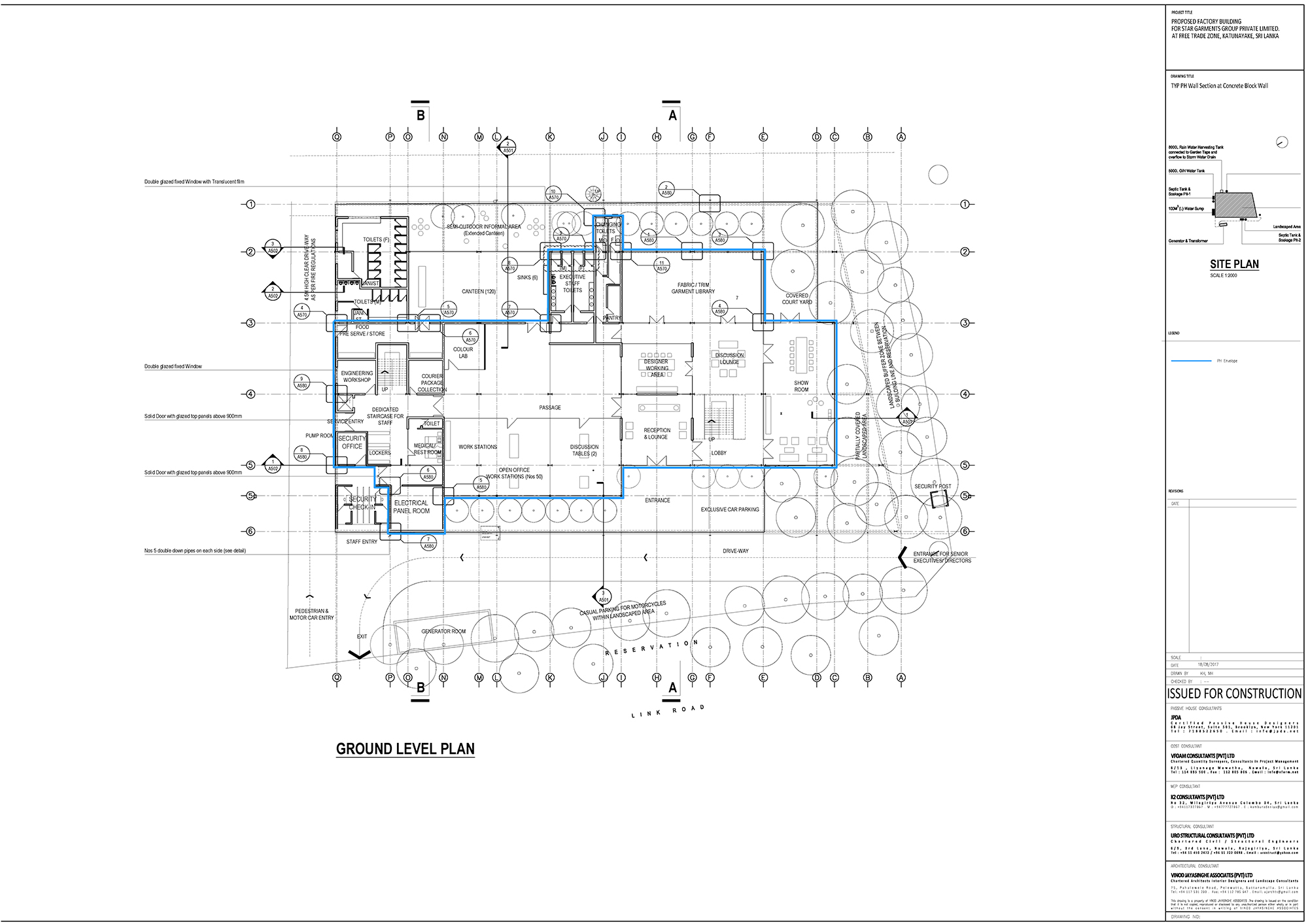
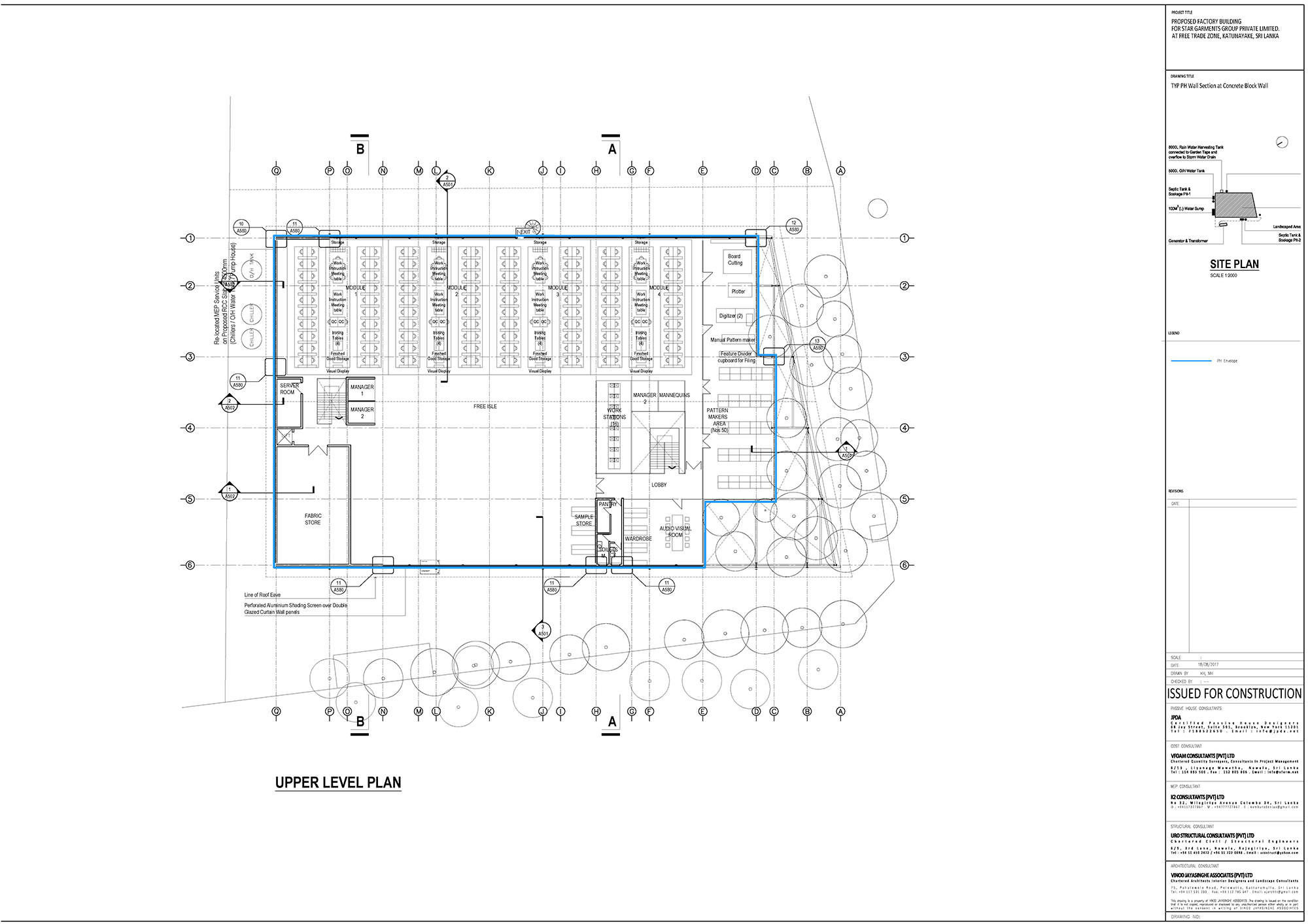
It all starts with the fact that this project involves a renovation. The steel supporting structure of the previous building has been kept and filled in, partly with floor-to-ceiling insulated glass elements, partly with hollow concrete blocks. The steel supports and masonry have been treated with EPS-based thermal insulation measuring 80 mm in thickness. Proper mounting of the insulation involved covering the supports with fibre-cement plates in advance. The new roof consists of 120-mm sandwich panels with an insulating polyurethane core and an exterior coating that will reflect the tropical heat and help keep the interior spaces cool.
Upstairs, exterior-mounted panes of coloured glass serve as sun protection; they are also a clearly visible trademark for the building. They have been mounted in steel frames hung in front of the actual façade of insulated glass. For the latter, double glazing (imported from Europe, by the way), sufficed to meet the desired EnerPhit threshold value.
According to the planners, avoiding thermal bridges represented a particular challenge. This lay in the fact that some areas of the building have been complemented with outdoor terraces and large, shade-giving roof overhangs; moreover, parts of the steel supporting structure stand beyond the factory’s thermal shell.
The ventilation plan was complicated as well. Like every passive-energy house, the innovation centre has a ventilation system with heat recovery. In the system’s heat exchanger, incoming air is first cooled below the required interior temperature and thus dehumidified. The condensation then collects immediately inside the ventilation system instead of later on in the office spaces. After dehumidification, the air is slightly warmed with the waste heat from the interior spaces and then allowed to flow into the building.
It all starts with the fact that this project involves a renovation. The steel supporting structure of the previous building has been kept and filled in, partly with floor-to-ceiling insulated glass elements, partly with hollow concrete blocks. The steel supports and masonry have been treated with EPS-based thermal insulation measuring 80 mm in thickness. Proper mounting of the insulation involved covering the supports with fibre-cement plates in advance. The new roof consists of 120-mm sandwich panels with an insulating polyurethane core and an exterior coating that will reflect the tropical heat and help keep the interior spaces cool.
Upstairs, exterior-mounted panes of coloured glass serve as sun protection; they are also a clearly visible trademark for the building. They have been mounted in steel frames hung in front of the actual façade of insulated glass. For the latter, double glazing (imported from Europe, by the way), sufficed to meet the desired EnerPhit threshold value.
According to the planners, avoiding thermal bridges represented a particular challenge. This lay in the fact that some areas of the building have been complemented with outdoor terraces and large, shade-giving roof overhangs; moreover, parts of the steel supporting structure stand beyond the factory’s thermal shell.
The ventilation plan was complicated as well. Like every passive-energy house, the innovation centre has a ventilation system with heat recovery. In the system’s heat exchanger, incoming air is first cooled below the required interior temperature and thus dehumidified. The condensation then collects immediately inside the ventilation system instead of later on in the office spaces. After dehumidification, the air is slightly warmed with the waste heat from the interior spaces and then allowed to flow into the building.
Further information:
Energy consultant: Steven Winter Associates
TGA-planning: Chandana Dalugoda Consultants, Kosala Kamburadeniya PE
Cost-planning: Prasad Jasinghe, VFORM Consultants
Planning of structural framework: Ajith Vandebona PE
Energy consultant: Steven Winter Associates
TGA-planning: Chandana Dalugoda Consultants, Kosala Kamburadeniya PE
Cost-planning: Prasad Jasinghe, VFORM Consultants
Planning of structural framework: Ajith Vandebona PE























