// Check if the article Layout ?>
Perforated refuge: Olive Tree House in Chalkidiki
Photo: Mariana Bisti
Seen from a distance, the house designed by Greek architect Eva Sopeoglou resembles a simple, green cuboid, an impression underscored – also in colour terms – by the slightly inclined roof and concrete floor slab. Only when you get closer does a decisive detail become apparent: the irregular, leaf-shaped pattern incised into the facade panels, thus permitting inward views and fostering the exchange of air.
When the Olive Tree House is in use on the weekends, the metal outer walls can be folded outwards to enlarge the three by seven-metre interior by the size of the terrace. In this way the olive groves become part of the dining and living space for the occupants.
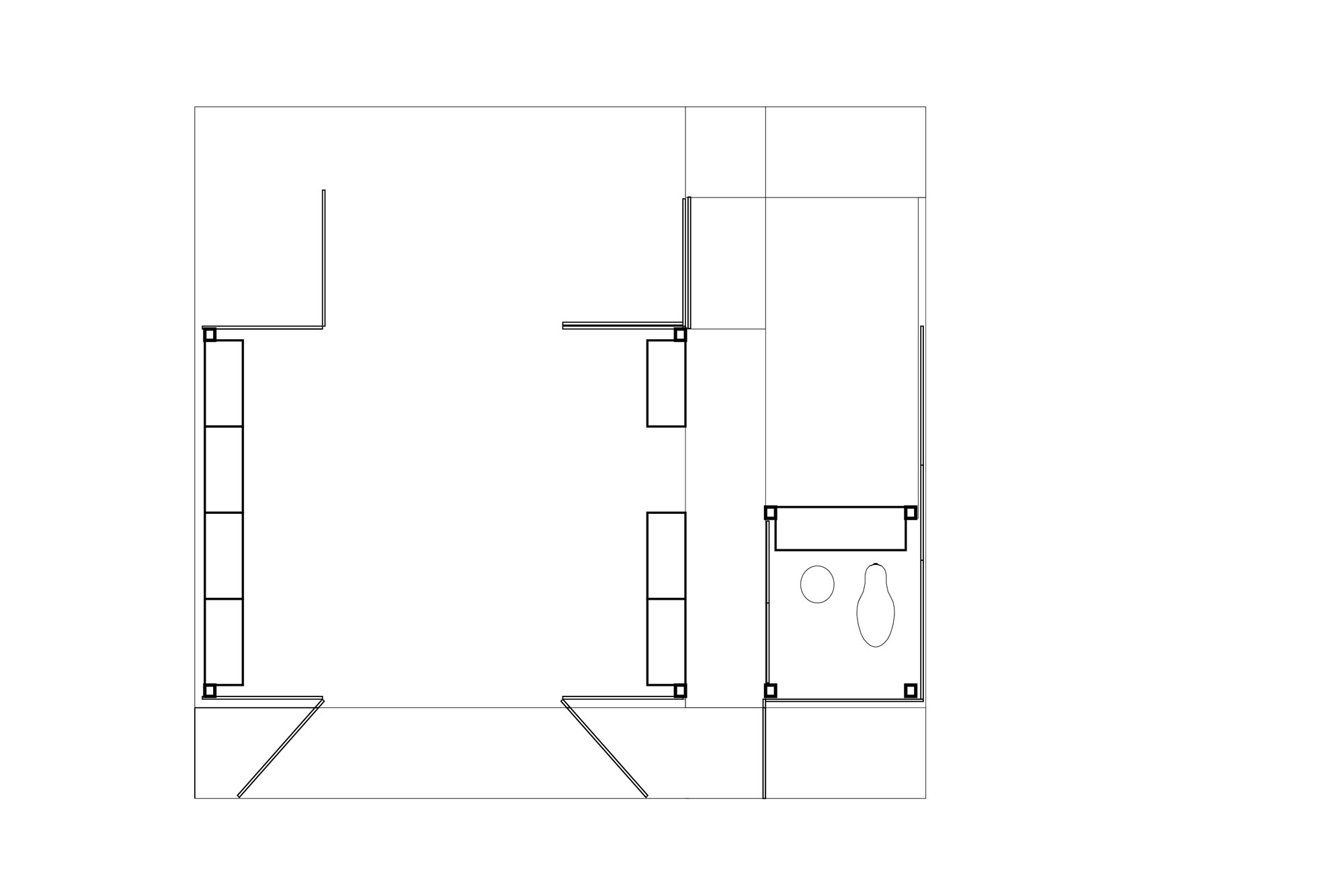
The bedroom takes up more than half the indoor space and features two walls delineated by fitted cupboards, whereby the other two can be completely opened up to the outside. The building is aligned to the movement of the sun, resulting in optimum climatic conditions without hindering the splendid views. Over the course of the day, the sun casts ever-changing shadows on the inner walls, making the house seem solely surrounded by olive trees.
All the components in this low-maintenance summer house were prefabricated, and CAD/CAM technology was used to cut the identification-fostering patterns into the metal walls. This experimental project has gained Eva Sopeoglou many awards.
When the Olive Tree House is in use on the weekends, the metal outer walls can be folded outwards to enlarge the three by seven-metre interior by the size of the terrace. In this way the olive groves become part of the dining and living space for the occupants.
The bedroom takes up more than half the indoor space and features two walls delineated by fitted cupboards, whereby the other two can be completely opened up to the outside. The building is aligned to the movement of the sun, resulting in optimum climatic conditions without hindering the splendid views. Over the course of the day, the sun casts ever-changing shadows on the inner walls, making the house seem solely surrounded by olive trees.
All the components in this low-maintenance summer house were prefabricated, and CAD/CAM technology was used to cut the identification-fostering patterns into the metal walls. This experimental project has gained Eva Sopeoglou many awards.
Further information:
CNC sheet metal fabrication: METALSO Sheet Metal Design
CNC-Machinery and Technology: TRUMPF GmbH + Co. KG














