// Check if the article Layout ?>
Playfully minimalist: Fonte Boa House in Fartosa
Photo: José Campos
Only a slender stone wall recalls the old Roman villa that once stood at the plot. Like a stranded ship, a clean-lined white structure is now berthed at a roughly-finished concrete approach, the sole link between the house and the main road. The building, almost monumental in effect when seen from the front, accommodates the differing levels of the terrain with two narrow concrete supports. Positioned away from the road and thus protected from it, the house has a free-standing position in the middle of the extensive landscape, leaving the terrain and the existing trees almost untouched.
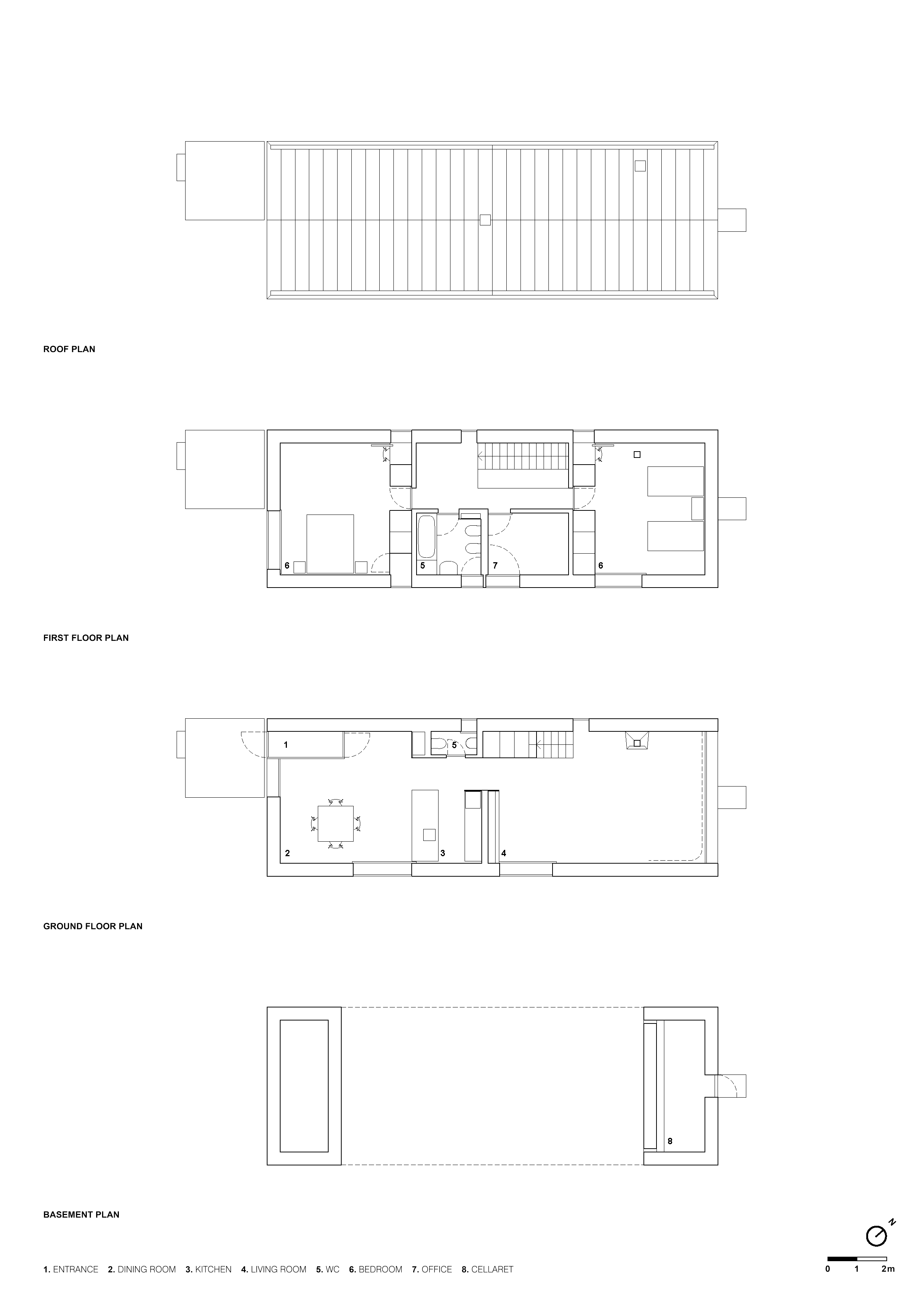
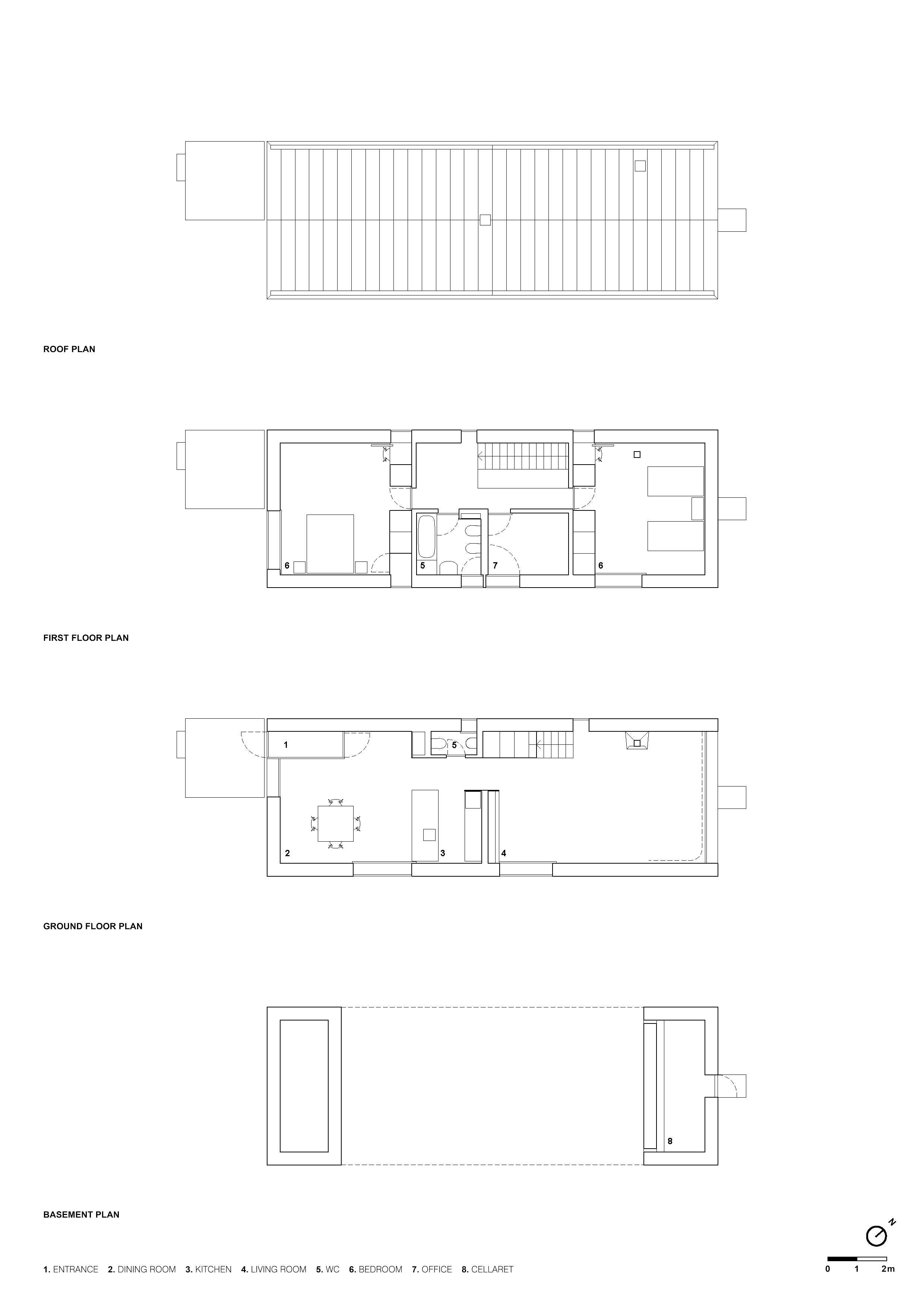
The rectilinear ground plan, the galvanised pitched roof and the raised, detached volume seem to indirectly refer to the original building typologies of the area. The front door on the southern side of the house is reached from the road along a driveway that ends in an open garage made up of rough-finished concrete walls below the level of the terrain. From here a narrow concrete flight of steps leads past a small pavilion that houses laundry rooms to emerge at the level on which the house is situated. In this the approach to the building is staged in an interplay of materials, glimpses to the next section and the surroundings and a deliberately arranged sequence of spaces. On arrival at the topmost level, a succession of large, step-like platforms forms a kind of forecourt to overcome the last metres to the entrance door.
Indoors the main element of the building is the wooden staircase that separates the living room from the dining room on the ground floor and the two bedrooms on the upper floor, thus dividing each storey into three sections. The staircase, which incorporates storage space, not only underscores the longitudinal alignment of the house, it is also the focal point from which everything else is organised and seems to merge with the floor and the furnishings. One of the two concrete struts beneath the building offers space for a small wine cellar and is provided with its own access.
The architects have achieved an extremely precise staging of geometric forms at the Fonte Boa House. All the spaces, both indoors and outdoors, are characterised by simple elegance, an appropriate choice of materials and attention to detail, and all areas of the interior have a particular relationship with the outside. Wooden floors and furnishings and window openings that differ in size and position not only introduce a touch of nature inside the home, they also emphasize its connection with the landscape outside.




























