// Check if the article Layout ?>
Playing with Contrasts: Refurbishment and Expansion of a School near Verona
Photo: Nicolo Galeazzi
The striking location of the Giacomo Zanella primary school, parallel to a main thoroughfare, may create a convenient traffic situation, but needed a few designerly and technical interventions. Architect Giulia de Appolonia describes the school as an “inhabited wall” that strives to protect the children from the adjacent busy street. A 3.5-metre-high pedestal level without windows reinforces this intention. As a contrast the polycarbonate façade above, which seems significantly lighter than its pedestal, serves to break up the massive structure. It appears to have been set into the concrete edifice, yet it complements it with the necessary lightness. By night, it makes the entire complex gleam. In daylight, the colour of the synthetic material blends with the grey of the concrete. A number of the classrooms shine through the pellucid stuff in an even, diffuse light. Most of the time, the school can do without artificial lighting.
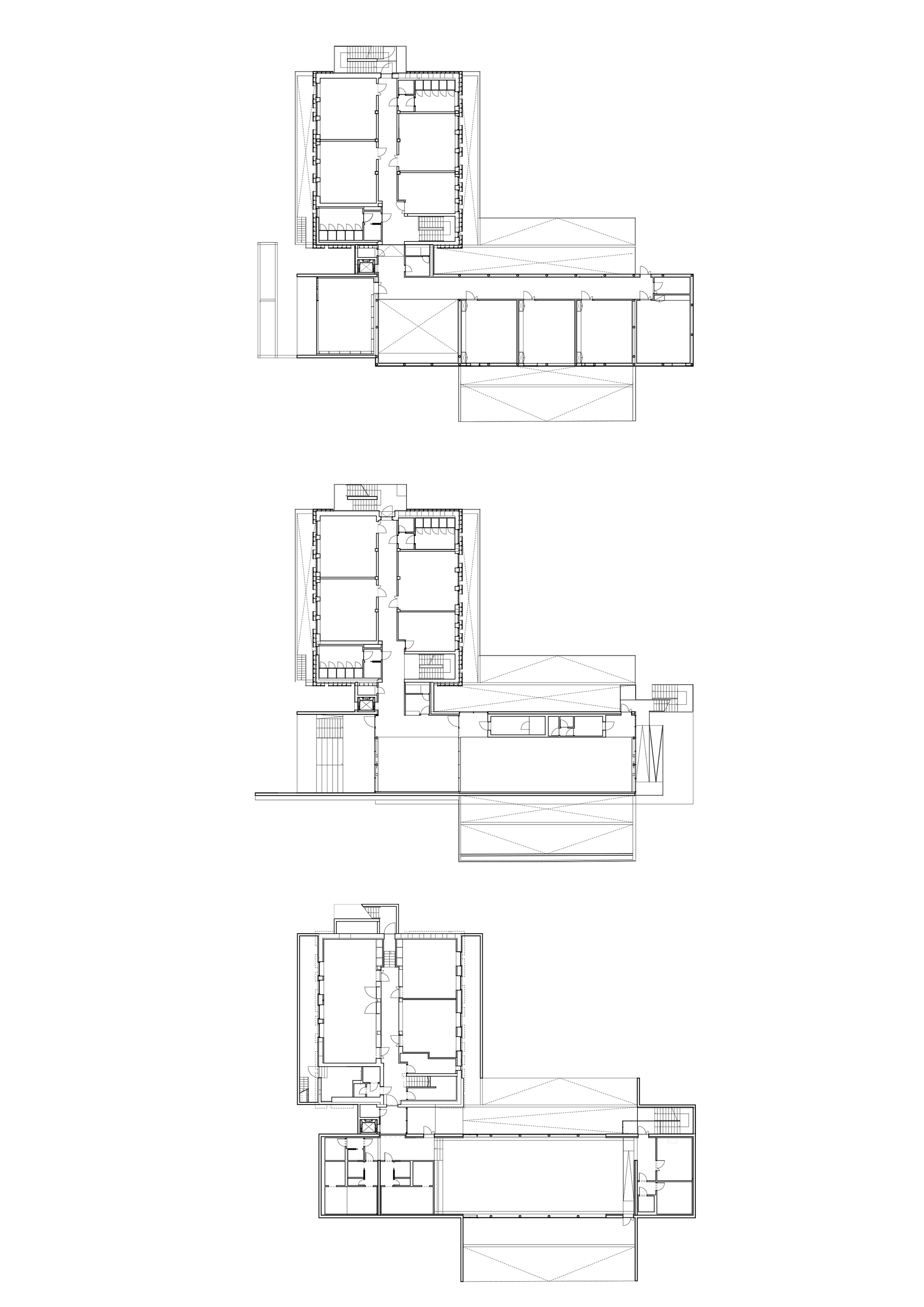
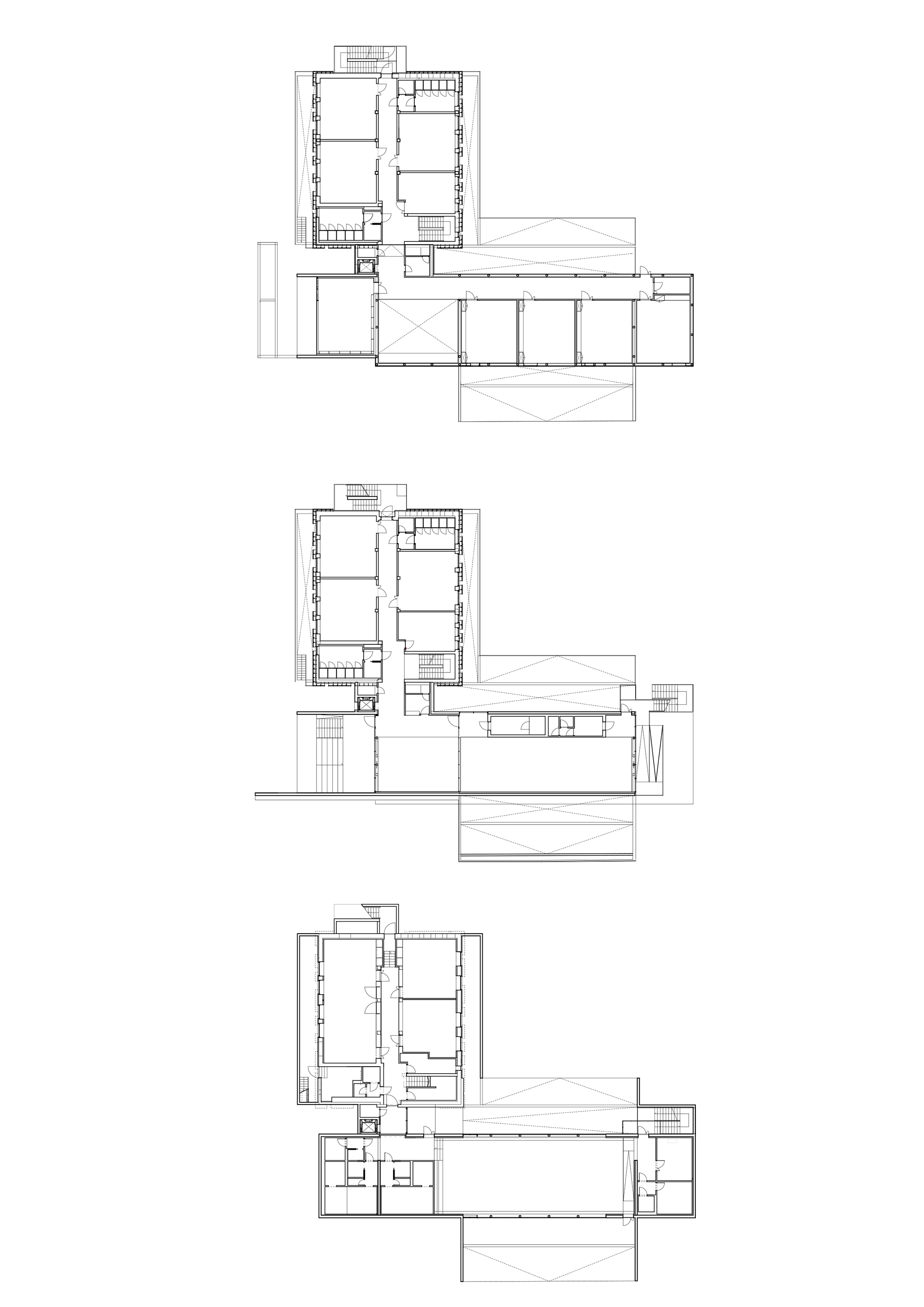
Spatially, the building forms the natural end of the church square and a counterpart to the church opposite. Both structures create a new urban situation and interact. The school’s foyer, which features double ceiling height, becomes a generous threshold and connection between exterior and interior space. A roofed area at the entrance functions as a transitional element between the various scales of the surroundings. While the two-storey foyer accentuates the spaciousness of the building, the roofed-in area takes its cue from the nearby suburban structures and the little pupils of the school. Tinted wood-fibre panels dominate the interior. Their eye-catching colours set a deliberate contrast to the grey of the exposed concrete, and their specific characteristics make them easy to use as wall cladding, doors and many types of interior fittings. Moreover, the colour accents help the pupils navigate the building and give each area its own identity.
The structural interventions and changes to both the interior and the building itself can primarily be understood as an energetic, artistic upgrade to the schoolhouse and the town. Among other things, the work concentrated on reorganizing the ground floor, redesigning it as an open, flexible spatial program with a small auditorium. The renovation of the façade comprises new window elements, the additional use of polycarbonate to improve the building’s U-value, as well as extra layers of insulation in the opaque wall areas. The resulting double polycarbonate façade on the exterior and a perforated one on the inside of parts of the school also make for optimal sound insulation. Ventilation grids on the underside and motorized flaps on the top side of the façade provide a good exchange of air. As a contrast between the main thoroughfare and educational institution, grey concrete and vivid colour produce conceptual interplays on a variety of levels. Giulia de Appolonia and her team have succeeded with this sleek building that has a touch of the industrial, yet surprises in just the right places with carefully placed elements. The result is an ambivalent body, simultaneously diffident and striking, like the town itself.
Spatially, the building forms the natural end of the church square and a counterpart to the church opposite. Both structures create a new urban situation and interact. The school’s foyer, which features double ceiling height, becomes a generous threshold and connection between exterior and interior space. A roofed area at the entrance functions as a transitional element between the various scales of the surroundings. While the two-storey foyer accentuates the spaciousness of the building, the roofed-in area takes its cue from the nearby suburban structures and the little pupils of the school. Tinted wood-fibre panels dominate the interior. Their eye-catching colours set a deliberate contrast to the grey of the exposed concrete, and their specific characteristics make them easy to use as wall cladding, doors and many types of interior fittings. Moreover, the colour accents help the pupils navigate the building and give each area its own identity.
The structural interventions and changes to both the interior and the building itself can primarily be understood as an energetic, artistic upgrade to the schoolhouse and the town. Among other things, the work concentrated on reorganizing the ground floor, redesigning it as an open, flexible spatial program with a small auditorium. The renovation of the façade comprises new window elements, the additional use of polycarbonate to improve the building’s U-value, as well as extra layers of insulation in the opaque wall areas. The resulting double polycarbonate façade on the exterior and a perforated one on the inside of parts of the school also make for optimal sound insulation. Ventilation grids on the underside and motorized flaps on the top side of the façade provide a good exchange of air. As a contrast between the main thoroughfare and educational institution, grey concrete and vivid colour produce conceptual interplays on a variety of levels. Giulia de Appolonia and her team have succeeded with this sleek building that has a touch of the industrial, yet surprises in just the right places with carefully placed elements. The result is an ambivalent body, simultaneously diffident and striking, like the town itself.
Further information:
Area: 2.100 m² (1200m² Renovierung, 900m² Erweiterung)
Costs: 2.200.000€
Photos: Nicolo Galeazzi
Area: 2.100 m² (1200m² Renovierung, 900m² Erweiterung)
Costs: 2.200.000€
Photos: Nicolo Galeazzi
Further information:
Area: 2.100 m² (1200m² Renovierung, 900m² Erweiterung)
Costs: 2.200.000€
Photos: Nicolo Galeazzi
Area: 2.100 m² (1200m² Renovierung, 900m² Erweiterung)
Costs: 2.200.000€
Photos: Nicolo Galeazzi


























