// Check if the article Layout ?>
Prefab Houses from Belfast: GO Home Product Line by GO Logic
Photo: GO Logic
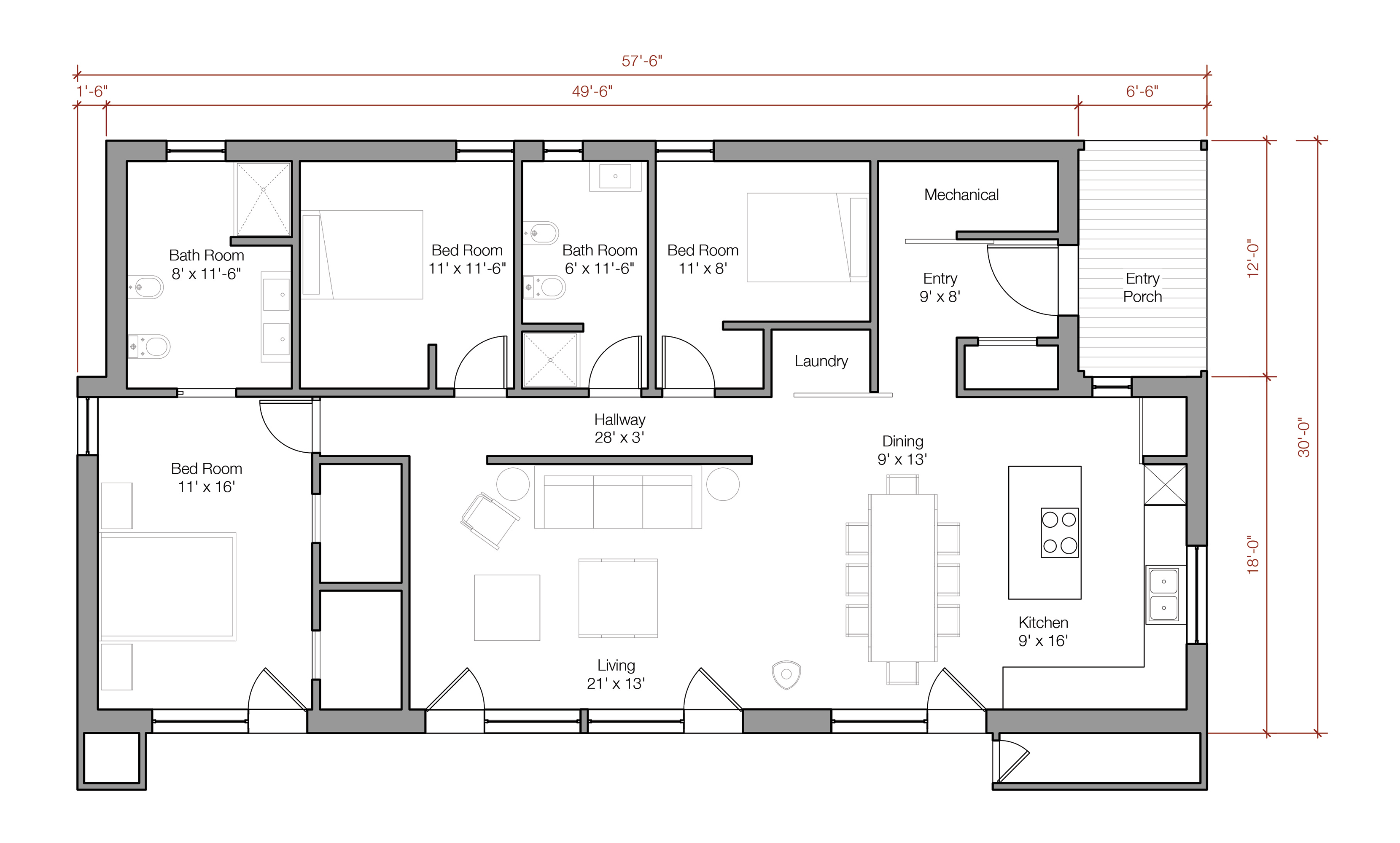
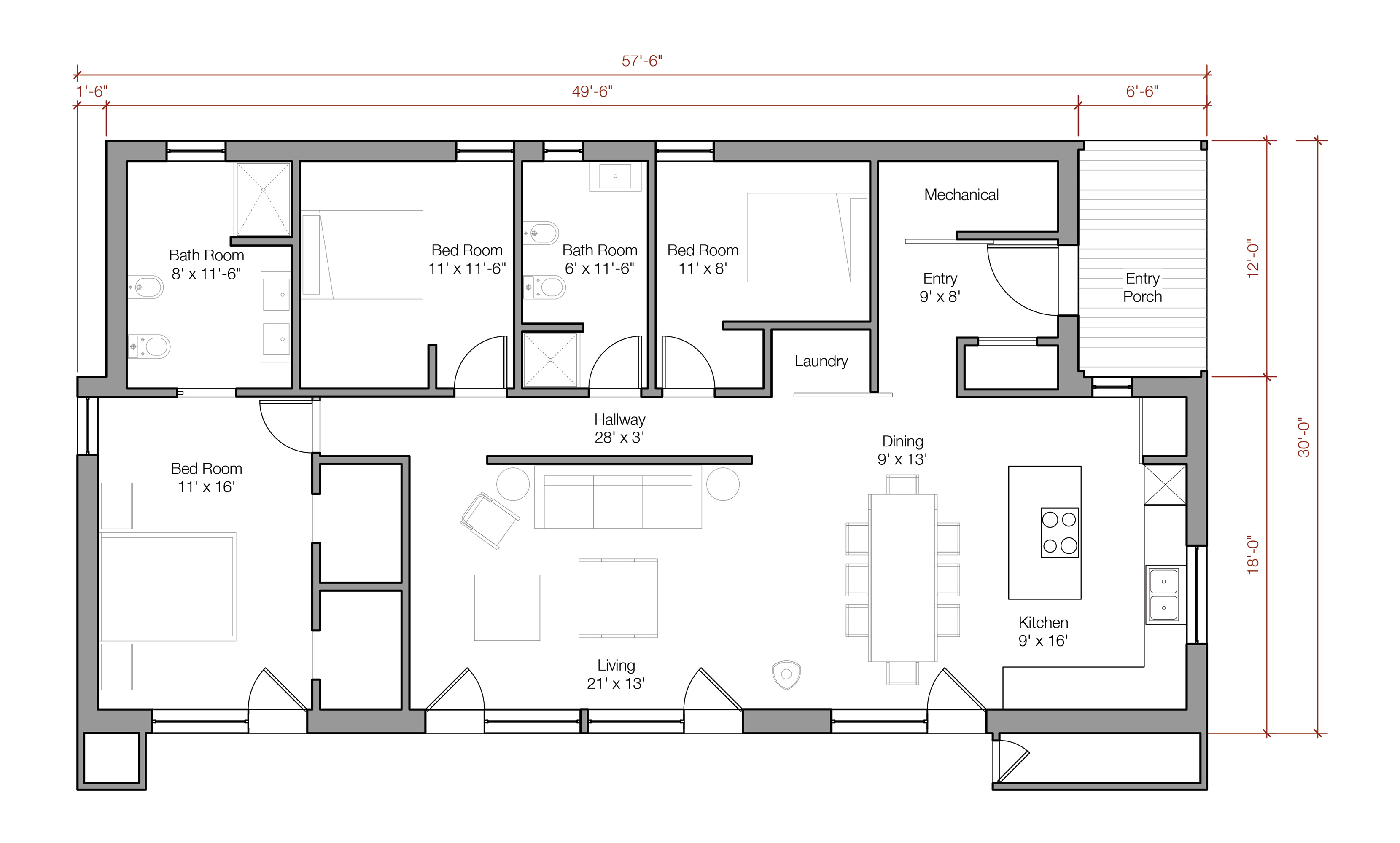
GO Logic, a mid-sized building company from the New England town of Belfast, specializes in the development and design of sustainable structures. The enterprise recently launched a new product line known as GO Home, which includes energy-efficient prefab homes of various sizes ranging from 55 m² to 230 m².
These passive-energy houses, which feature heat recovery and ventilation systems, an airtight and perfectly insulated shell and high-tech windows, consume up to 80% less energy compared to ordinary single-family dwellings. Furthermore these prefab houses, which can be erected in less than two weeks, are influenced by local building traditions in New England.
The term “prefab house” is often used as a synonym for poor architecture that serves an exclusively profit-oriented building industry. The prefab industry, at least in the USA, has in fact conquered the market for single-family homes. On the other hand, there are many historical examples of prefabricated constructions that have been successful not only from an economic point of view, but from an aesthetic one as well. Experimental structures by Jean Prouvé, system construction by Otto Steidle or capsule architecture by Kisho Kurokawa have all become classics of modern architecture. Indeed, the house modules developed for refugee families by the IKEA Foundation in 2015 and presented at Basel’s Design Miami fair belong to the long tradition of high-quality prefabricated buildings.
These passive-energy houses, which feature heat recovery and ventilation systems, an airtight and perfectly insulated shell and high-tech windows, consume up to 80% less energy compared to ordinary single-family dwellings. Furthermore these prefab houses, which can be erected in less than two weeks, are influenced by local building traditions in New England.
The term “prefab house” is often used as a synonym for poor architecture that serves an exclusively profit-oriented building industry. The prefab industry, at least in the USA, has in fact conquered the market for single-family homes. On the other hand, there are many historical examples of prefabricated constructions that have been successful not only from an economic point of view, but from an aesthetic one as well. Experimental structures by Jean Prouvé, system construction by Otto Steidle or capsule architecture by Kisho Kurokawa have all become classics of modern architecture. Indeed, the house modules developed for refugee families by the IKEA Foundation in 2015 and presented at Basel’s Design Miami fair belong to the long tradition of high-quality prefabricated buildings.












