// Check if the article Layout ?>
When the people form Arquitectos Ayala decided to enter the competition to design the new public theatre in Xàtiva, Spain, they ascended the nearby Mont Sant near the old fortress to get a better view of the site.
There, they could see how the avenue Alameda divided the old town from the new, and also marked a significant shift in levels and building heights of around 6m. They knew at that moment that the successful scheme would have to negotiate these level differences and integrate both the old and new towns.
As a result of these observations they spent much of their design time doing just that, and now it is built, the theatre has become a place to meet in the metaphorical as well as the physical sense.
Each of the external public stairs or ramps that connects the theatre to its surrounding urban fabric, is considered to be more than a means of access. Each route provides a shady spot, a place to sit, or a beautiful view over the city or a corner to meet. In this way, people are encouraged to explore and dwell for a moment or two around the theatre. This social agenda is reinforced with a theatre café located at a strategic location and which spatially and conceptually extends into the theatre foyer.
In this way the auditorium, and the act of seeing a performance, as an extension of the foyer, becomes the culmination of these successive spatial encounters, setting the theatre at the pinnacle of the social and cultural life of the city.
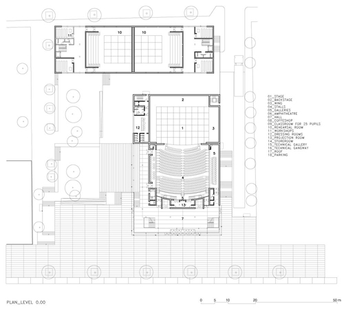
Public performance: A theatre in Xàtiva, Spain by Arquitectos Ayala.
When the people form Arquitectos Ayala decided to enter the competition to design the new public theatre in Xàtiva, Spain, they ascended the nearby Mont Sant near the old fortress to get a better view of the site.
There, they could see how the avenue Alameda divided the old town from the new, and also marked a significant shift in levels and building heights of around 6m. They knew at that moment that the successful scheme would have to negotiate these level differences and integrate both the old and new towns.
As a result of these observations they spent much of their design time doing just that, and now it is built, the theatre has become a place to meet in the metaphorical as well as the physical sense.
Each of the external public stairs or ramps that connects the theatre to its surrounding urban fabric, is considered to be more than a means of access. Each route provides a shady spot, a place to sit, or a beautiful view over the city or a corner to meet. In this way, people are encouraged to explore and dwell for a moment or two around the theatre. This social agenda is reinforced with a theatre café located at a strategic location and which spatially and conceptually extends into the theatre foyer.
In this way the auditorium, and the act of seeing a performance, as an extension of the foyer, becomes the culmination of these successive spatial encounters, setting the theatre at the pinnacle of the social and cultural life of the city.
