Pyramids for water resources management
Association HQ in Mexico
Foto: Luis Young
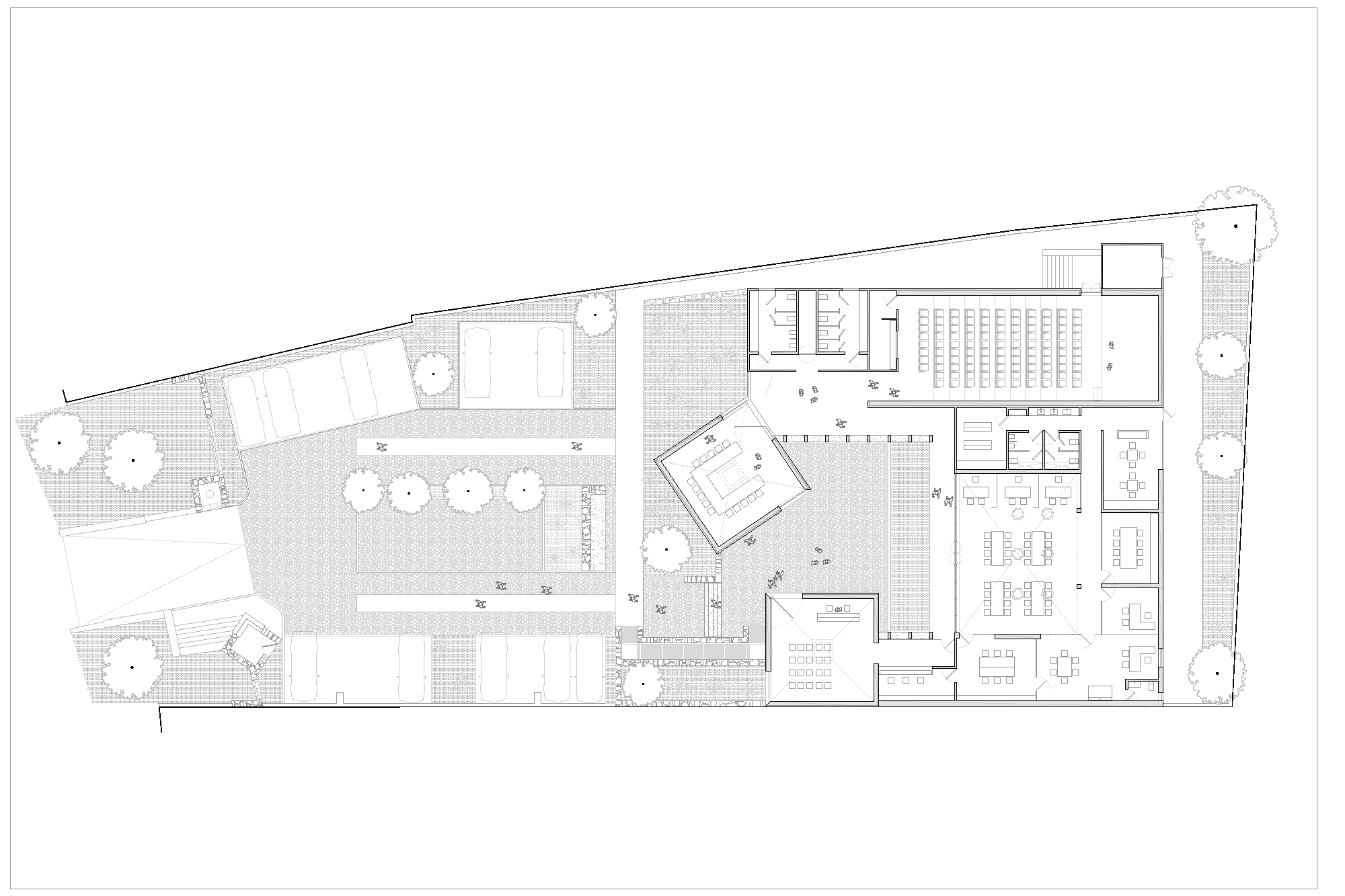
Water is a particularly valuable resource in central Mexico and thus many agricultural operations are located at river Lerma in the Salvatierra region. But as water reserves elsewhere in Mexico are also scarce, the state assumed control of water distribution in the early 20th century and set up the National Water Commission (CAN). This transferred the operation of agricultural irrigation systems to decentralised farming associations, including the Asociación de Productores Agrícolas del Módulo de Riego, which covers some 70 municipalities. The Mexican architectural studio 3 ME Arquitectura has now designed headquarters for the Association in the form of a building complex in geometric forms bearing the semblance of vernacular architecture. The organisation promotes values in the region, generates jobs and espouses the interests of the farmers, and thus taking inspiration from the region’s traditional buildings indeed suggested itself.
Two pyramid-shaped multi-purpose buildings form the entrance portal, shaped in reference to local grain silos and giving the complex with its red towers a character of its own. On passing through this architectonic portal, visitors reach a courtyard with a long, flat water basin and a U-shaped building in which the reception area, offices and an auditorium are located. Shady arcades around the courtyard and low volumes are reminiscent of typical Mexican haciendas (estate farms). Homogeneous façade cladding in red brick underscores the rigour seen in the play of shapes and forms. Solely the arcades in exposed concrete lend the complex a modern touch. The architects also took great pains with the design of the external spaces, as evidenced by cobblestone paving alternating with pale-toned setts; individual areas are planted.
Read more in Detail 4.2022 and in our databank Detail Inspiration.
Further information:
Architecture: 3 ME Arquitectura, Valentino y Enrico Hernández CervantesLocation: Salvatierra, Guanajuato (MX)
Structural engineering: Grupo 3 ME Construcciones
























