// Check if the article Layout ?>
Reception Pavilion for the Vogelensangh Brickworks
Foto: Michel Kievits
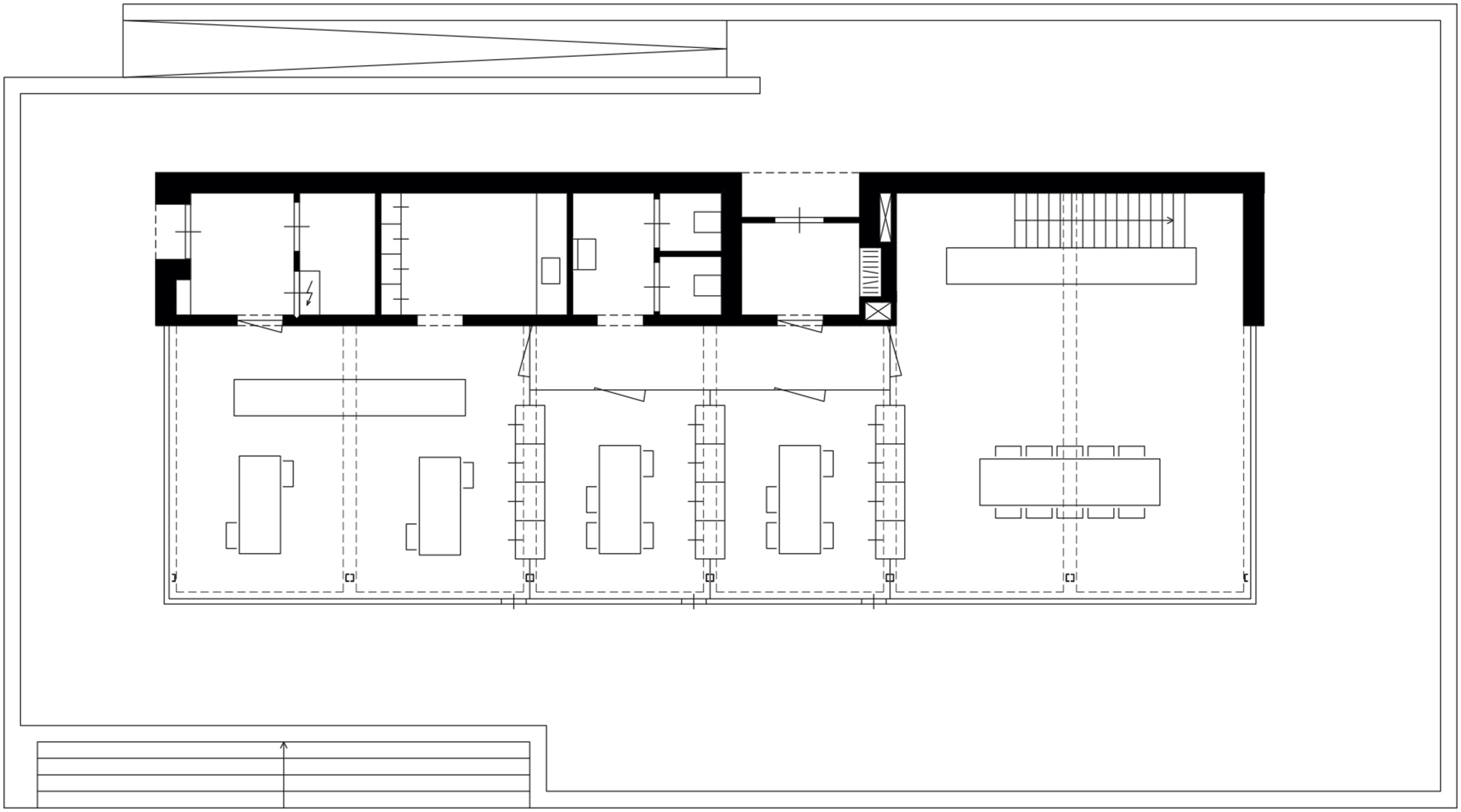
Vogelensangh is a traditional brickworks and the country’s last to still be producing bricks according to an old formula and to finish them in coal-fired kilns. In this project commissioned by the brickworks, Bedaux de Brouwer have designed a contemporary reception and office pavilion; the oblong volume, which stands on a raised plinth, complements the factory, which was built in 1919. The entrance lies in the extensively bricked-in front façade. Simple masonry work of locally produced façade bricks pays tribute to the logic behind this building method, which goes back thousands of years.
In contrast to the entryway façade, which is on the west side of the pavilion, the east side is generously glazed. From here, the view opens up in the direction of the historical old building. The interior of the pavilion owes its industrial ambience to its light-coloured bricks with broad mortar joints and the vaulted ceilings inspired by old round kilns. There is no doubt that the reception pavilion fulfils more than its merely functional requirements: it also demonstrates the diversity of brick, an ancient building material.
In contrast to the entryway façade, which is on the west side of the pavilion, the east side is generously glazed. From here, the view opens up in the direction of the historical old building. The interior of the pavilion owes its industrial ambience to its light-coloured bricks with broad mortar joints and the vaulted ceilings inspired by old round kilns. There is no doubt that the reception pavilion fulfils more than its merely functional requirements: it also demonstrates the diversity of brick, an ancient building material.











