Recycled After Ten Days: Temporary Museum of Plastic in Madrid
Foto: Imagen Subliminal
Die Kunststoffindustrie bemüht sich schon länger um eine Imageverbesserung für ihre Produkte mit dem Hinweis, dass sich viele Kunststoffe zu 100% recyceln lassen. Solange, das muss ergänzt werden, sie nicht kunterbunt durchmischt oder gleich von vornherein zu mehrlagigen Sandwichmaterialien verarbeitet werden, wie das derzeit in der Verpackungsbranche die Regel ist.
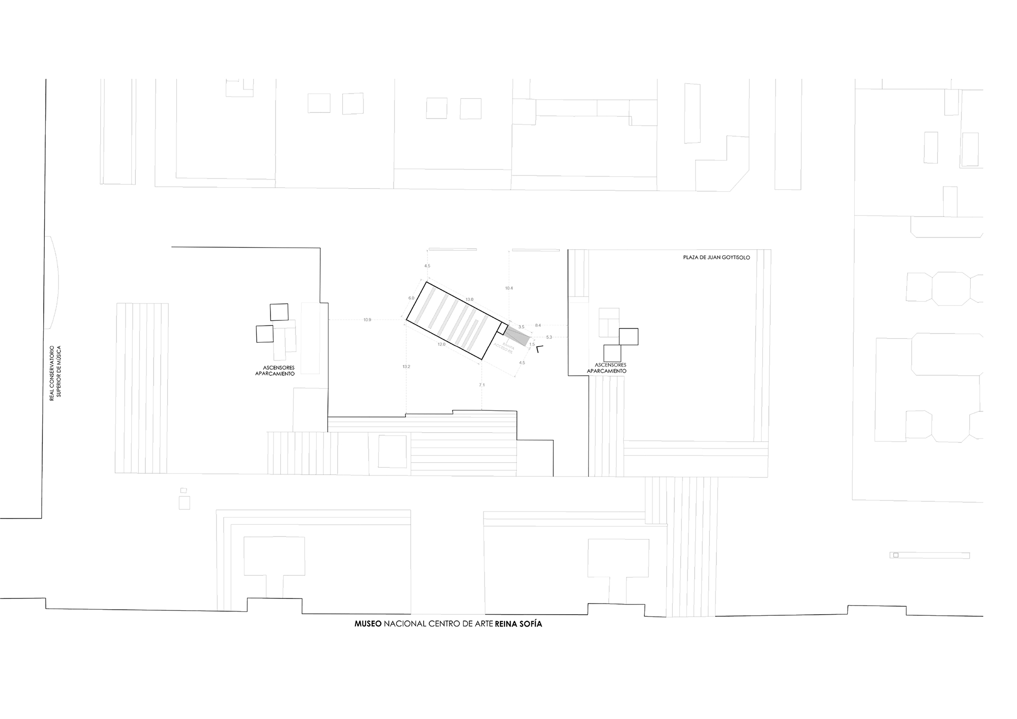
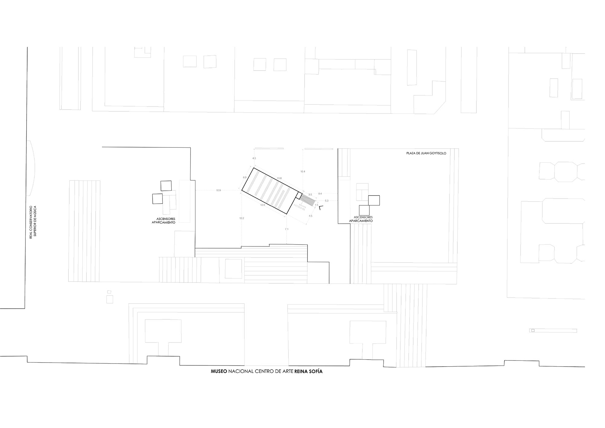
Ein besonderes Ausrufezeichen für das Kunststoffrecycling haben im Mai der spanische Branchenverband EsPlásticos und die Architekten delaVegaCanolasso vor dem Museo Reina Sofía in der Madrider Innenstadt gesetzt: 10 Tage lang stand dort das „Plastic Museum“. Der 73,5 m2 große, temporäre Pavillon bestand ganz aus Kunststoffen, die – so das Versprechen der Initiatoren – nach dem Ausstellungsende zu 100% wiederverwendet werden würden.
Die Haupt-Lichtquelle für den Pavillon war zugleich sein Tragwerk: Transparente, U-förmige Elemente aus 20 mm starken PMMA-Scheiben – besser bekannt als Plexiglas – trugen, zu sieben großen Rahmen gefügt, die restliche Gebäudehülle. Für die Außenwände verwendeten die Architekten weiße 20 mm dicke Polyethylenplatten mit Nut- und Federverbindungen. Das transluzente Dach bestand aus Gewichtsgründen und für die bessere Dämmung aus 30 mm starken weißen Polycarbonatstegplatten. Alle Kunststoffplatten wurden computergesteuert geschnitten und nummeriert, sodass sich der Pavillon vor Ort an zwei Tagen auf- und an einem Tag wieder abbauen ließ.



















