Rain Dance: Norwegian Design Hotel by Claesson Koivisto Rune
Foto: Åke E:son Lindman
Anstatt den alten Bestand im Zentrum von Bergen niederzureißen, werden die historischen Ansichten in den neuen Entwurf miteinbezogen und so die kleinteilige Struktur der westnorwegischen Küstenstadt weitergeführt. Die Architekten erhalten und sanieren die Stirnseiten der beiden Bestandsbauten aus den 1920er- und 1930er-Jahren. Dazwischen fügt sich die neue, dunkelblaue Fassade des Hotels ein. Diese orientiert sich in Gestaltung und Rhythmus an ihren Nachbarn und komplettiert die dreiteilige Straßenfront.
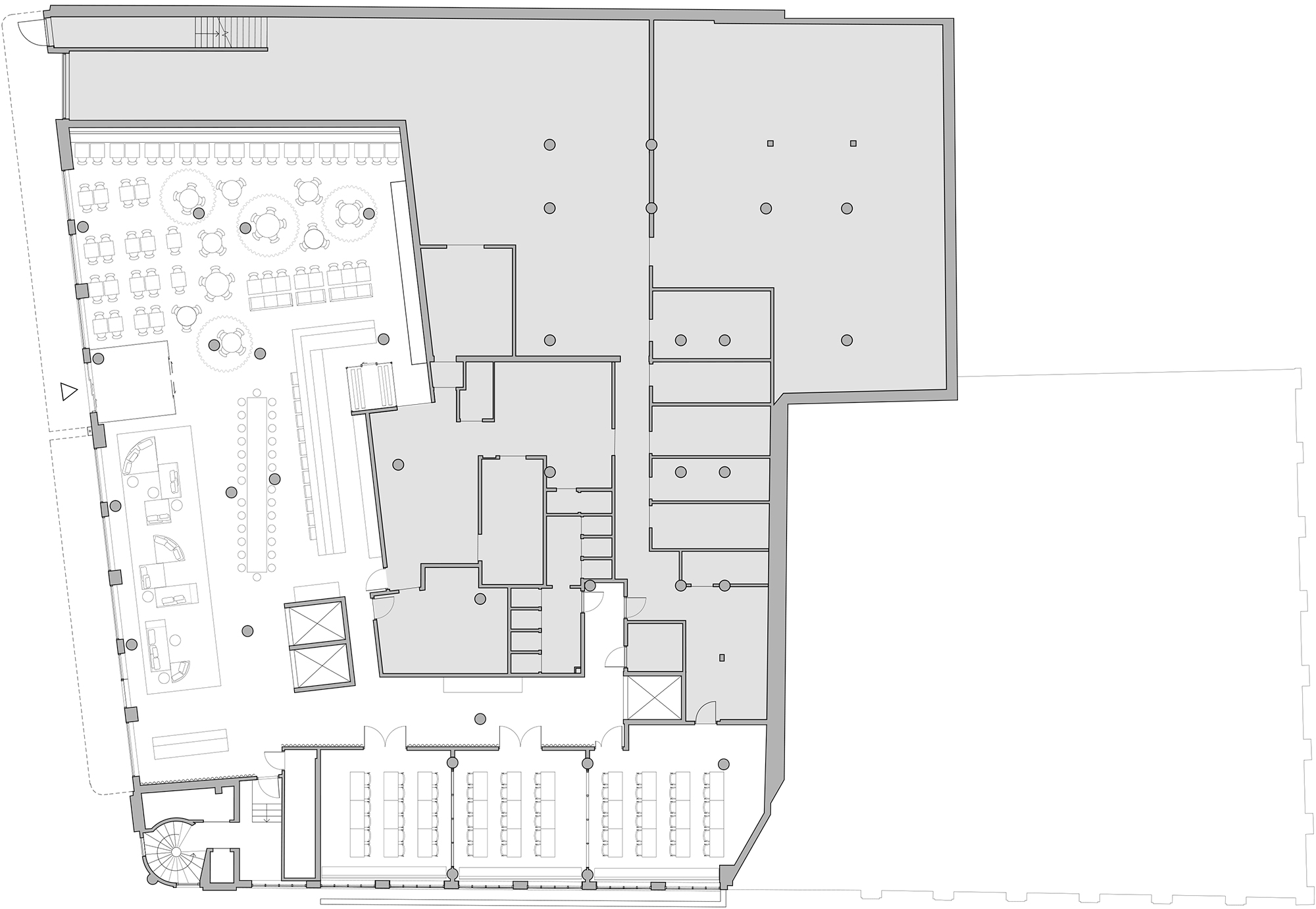
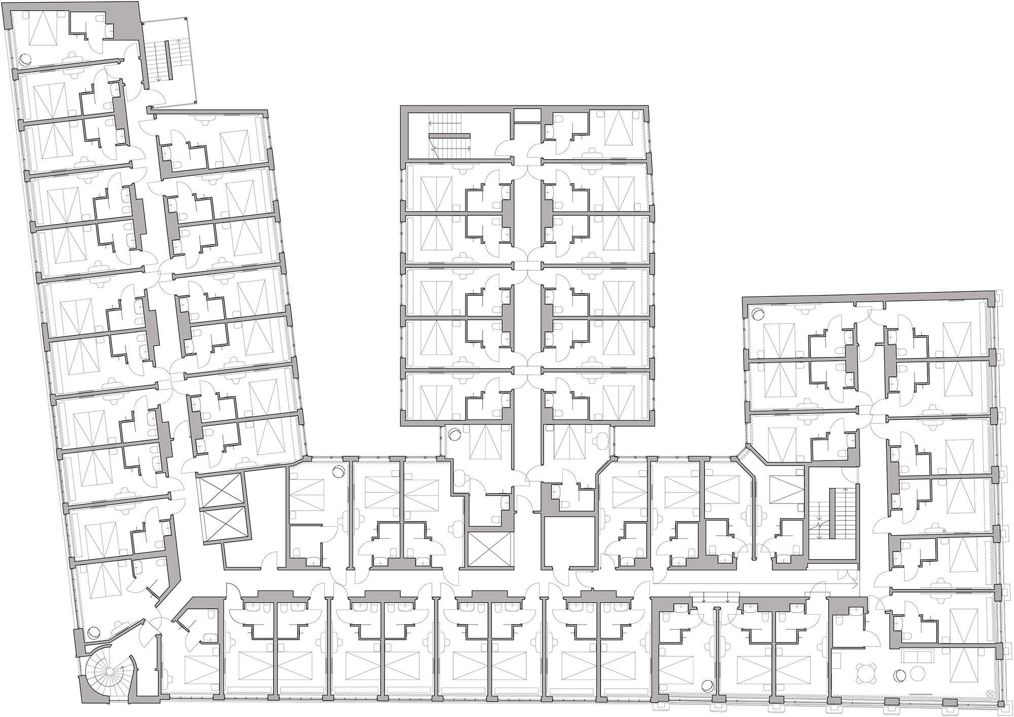
Während es von außen betrachtet relativ klein wirkt, offenbart Zander K im Inneren seine wahre Größe. Mit 249 Betten erstreckt sich das Designhotel fast über den gesamten Häuserblock. Das Erdgeschoss empfängt den Besucher und umfasst neben dem Foyer ein Restaurant sowie einen Bar- und Loungebereich. In den oberen Stockwerken ordnen sich rund um zentrale Erschließungskorridore die, nach außen orientierten, Hotelzimmer an.
Die Planer von Claesson Koivisto Rune entwerfen nicht nur die Grundrisse von Zander K. Auch der Großteil des Mobiliars wurde speziell für die einzelnen Zimmer des Hotels angefertigt und perfekt aufeinander abgestimmt. Ein einheitliches Material- und Farbkonzept zieht sich durch sämtliche Innenräume. Blau-, Weiß- und Beigetöne spiegeln das vom feuchten, norwegischen Klima inspirierte Leitmotiv „Regen“ wider. Die Böden und fließenden Vorhänge zieren tropfenförmige Muster. Ausgewählte Naturwerkstoffe und Oberflächen mit unterschiedlichem Finish sorgen für spannende Kontraste. Schwere Samtstoffe grenzen private Zonen ab und ergänzen Sichtbetonsäulen und Holztische. Stein und schimmernde Edelstahlakzente bilden edle Highlights, die das Designkonzept des nordischen Hotels stimmig abrunden.



















