Repurposed Shipping Containers: Plug-In Isolation Units for Coronavirus Patients
Foto: CURA
The coronavirus continues to spread. The number of those infected rises daily. Fifteen to twenty per cent of the afflicted have symptoms serious enough to require hospitalization; of these, one-third are placed in intensive care. In many places, hospitals are reaching capacity.
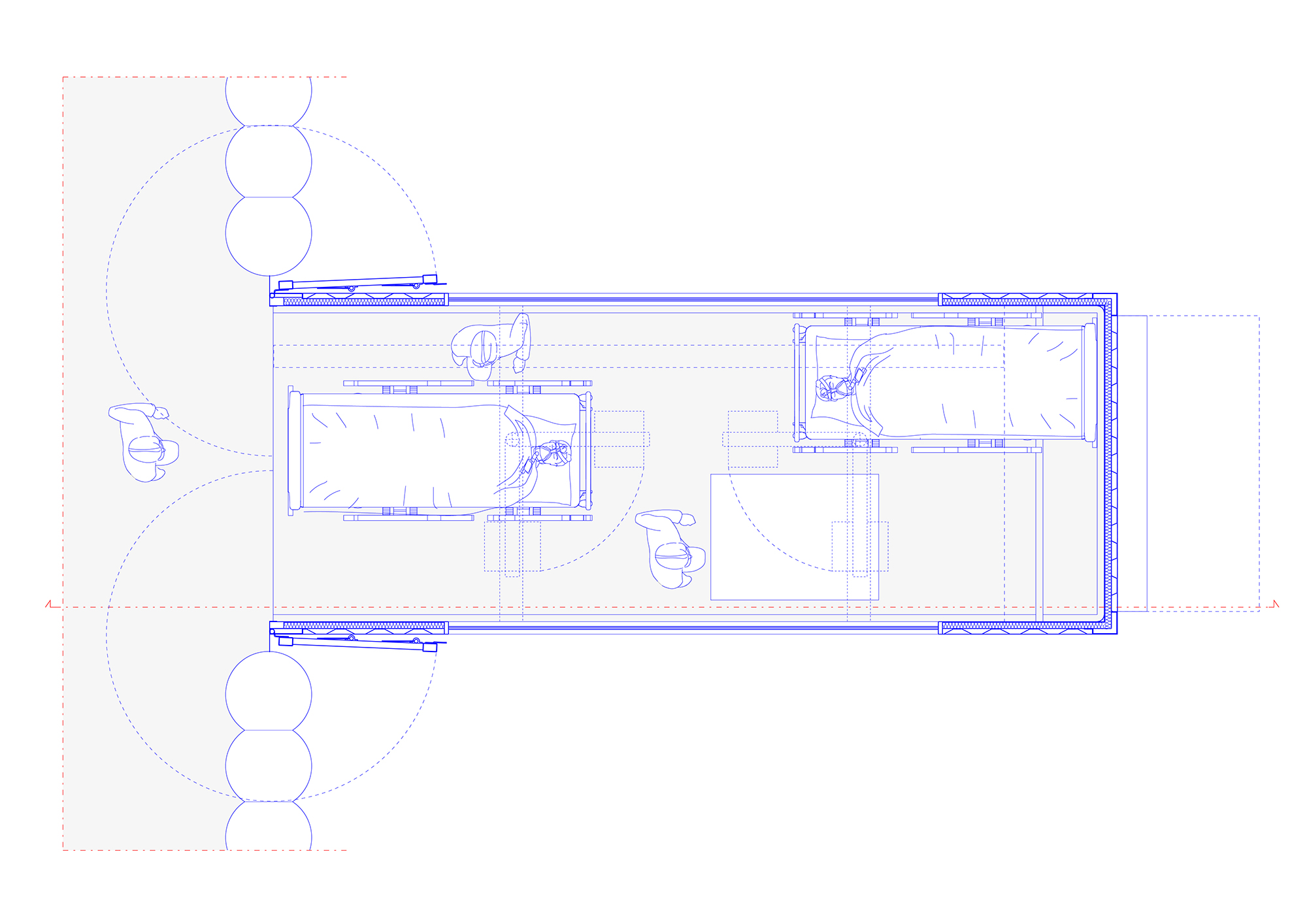
CURA (Connected Units for Respiratory Ailments) is an open-source design project with the aim of transforming 20-foot shipping containers into mobile isolation units with space for ventilators. Each of the units, which measures around 14 m2, will operate autonomously and be set up for the treatment of two patients. The containers can be set up in the free spaces and parking lots of hospitals; they use inflatable building elements to become 40-bed units in just a few hours. Internationally, this could create further capacity for the treatment of covid-19 patients who require ventilation. The units are as quick to set up as a hospital tent, but the staff will be better protected from infection. A biocontainment system with vacuum pressure will ensure that no pathogens from the isolation unit can make their way outside.
The prototype of a CURA module is currently being built at a Milan hospital. As soon as the unit has been successfully tested, the technical data will be uploaded online. The module can then be copied around the world for use where needed.
CURA was developed in an open-source project and does not pursue any aim to make a profit. The technical report is available to all on the website www.CURApods.org; suggestions and improvements are expressly welcome.








