Research framework: KIT Energy Lab 2.0 by Behnisch Architects
Foto: David Matthiessen
Der rechteckige Baukörper fügt sich am Nordrand in das Campusgelände ein. Behnisch Architekten gestalten das Energy Lab 2.0 als solitäres Volumen, dessen oberer Abschluss ein markantes Sheddach bildet. Das Gebäude setzt sich aus einem Büroriegel und einer großen Halle zusammen. Beide sind aus einer Holzrahmenunterkonstruktion und Polycarbonatplatten gefertigt. Die transluzenten Paneele verkleiden das Forschungsgebäude rundum. Besonders bei Dunkelheit scheint die Beleuchtung diffus durch die Gebäudehülle und macht die Tragstruktur erkennbar. An der nördlichen Längsfront lässt die klassische Lochfassade auf die Büronutzung im Inneren schließen.
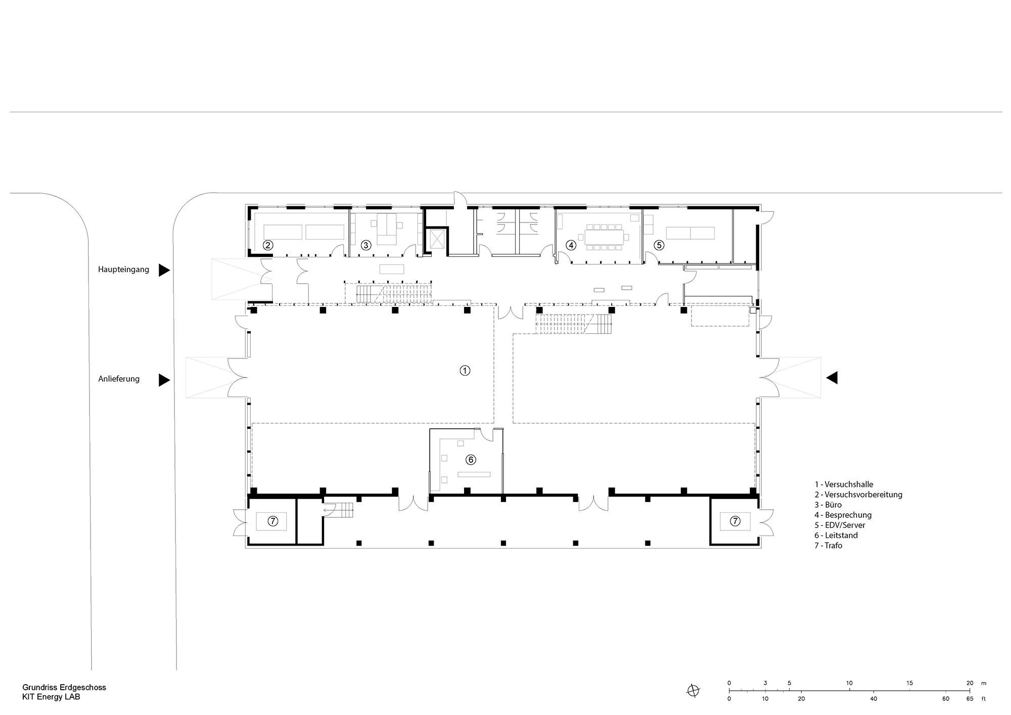
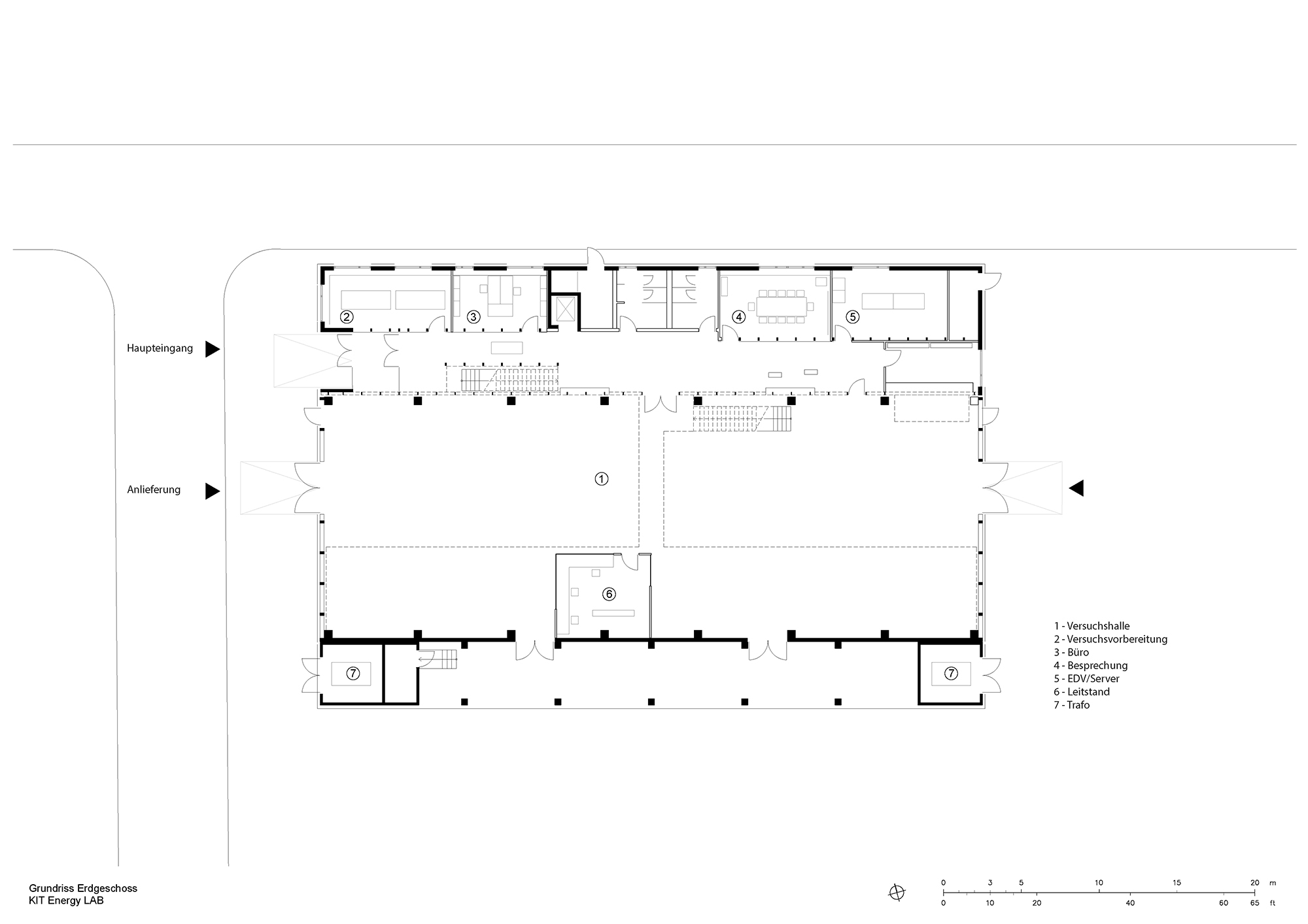
Der Haupteingang des Gebäudes liegt an der Ostseite. Hier befinden sich im nördlichen Teil des Erdgeschosses die administrativen Bereiche und Büros, in der oberen Etage die Labor- und Besprechungsräume, sowie eine Aufenthaltszone mit Teeküche. Den zentralen, flächenmäßig größten Teil des Energy Lab 2.0 umfasst die Versuchshalle, die komplett stützenfrei gestaltet ist. Eine offene Galerie an der Südseite bietet einen Überblick über die Halle und komplettiert das Raumprogramm des Forschungsbaus.
Die tragende Struktur des Neubaus wird im Inneren gleichzeitig zum gestalterischen Element. Sämtliche Träger und Stützen bleiben unverkleidet und werden von Stahlprofilen ergänzt. Dank lichtdurchlässiger Polycarbonatpaneele gelangt das Tageslicht bis in die letzte Ecke des Energy Lab 2.0. Holzeinbauten in Form von Sitzgelegenheiten und Regalsystemen sorgen für Gemütlichkeit und strukturieren den Bau. Roher Sichtbeton und Glasflächen runden den modernen Industriecharakter perfekt ab und schaffen einen flexiblen Rahmen für intelligente Energiesysteme der Zukunft.

















