Residential chess by the Pacific: holiday home in Morrillos
Photo: Tomás Rodríguez
Rarely does one come across a house which – from the floor plan structure to the construction system to the design of the facade - was seamlessly created following a single logic. As a rule, such buildings only occur in the case of a sufficiently simple space allocation plan and on construction sites corresponding to the often-quoted “tabula rasa”.
Both these features were present in the holiday home which the architect Cristián Izquierdo
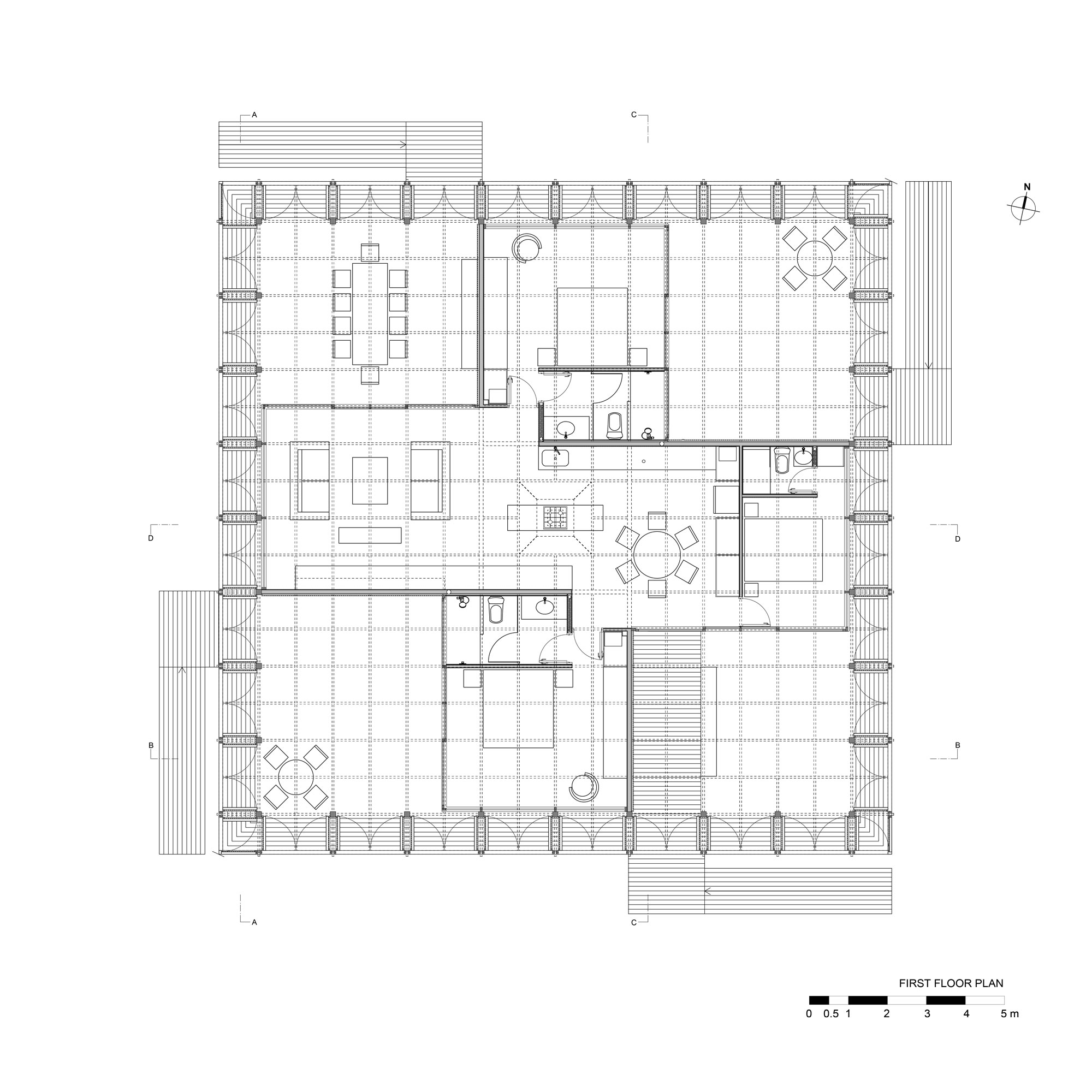
created in the dunes by the Chilean Pacific coast. Up to three couples can be accommodated in the building, viz. a bedroom with a double bed, a bathroom, and one’s own patio in front. In addition, there’s a spacious common area with a kitchen, dining and living area as well as a fourth patio.
The four differently proportioned parts of the space allocation plan are joined like windmill vanes in the floor plan while the four patios come to be positioned at the corners of the building respectively. Viewed from above, the house thus resembles a 122 square metre cross set inside a 208 square metre square. The ensemble is enclosed by inward-opening folding shutters extending over the height of the building and made of brightly varnished pinewood. These are integrated into a kind of veranda zone which runs externally around the floor plan based on the strict square grid.
The support structure of the roof and the veranda zone uniformly consists of slender laminated timber beams with a 5 x 25 cm cross-section which are partly arranged in two levels on top of each other in order to be able to completely dispense with connecting elements made of metal. To be precise, the roof encompasses four different girder grids – one for each of the four sleeping and living areas. They rest on the interior walls as well as on wooden columns in the facade plane. In between the girder grids, the architects incorporated a skylight into the roof, supplying the kitchen block with daylight from above.


















