// Check if the article Layout ?>
Residential tower a là Bauhaus: Richard Meier has built in Tel Aviv
Photo: Roland Halbe
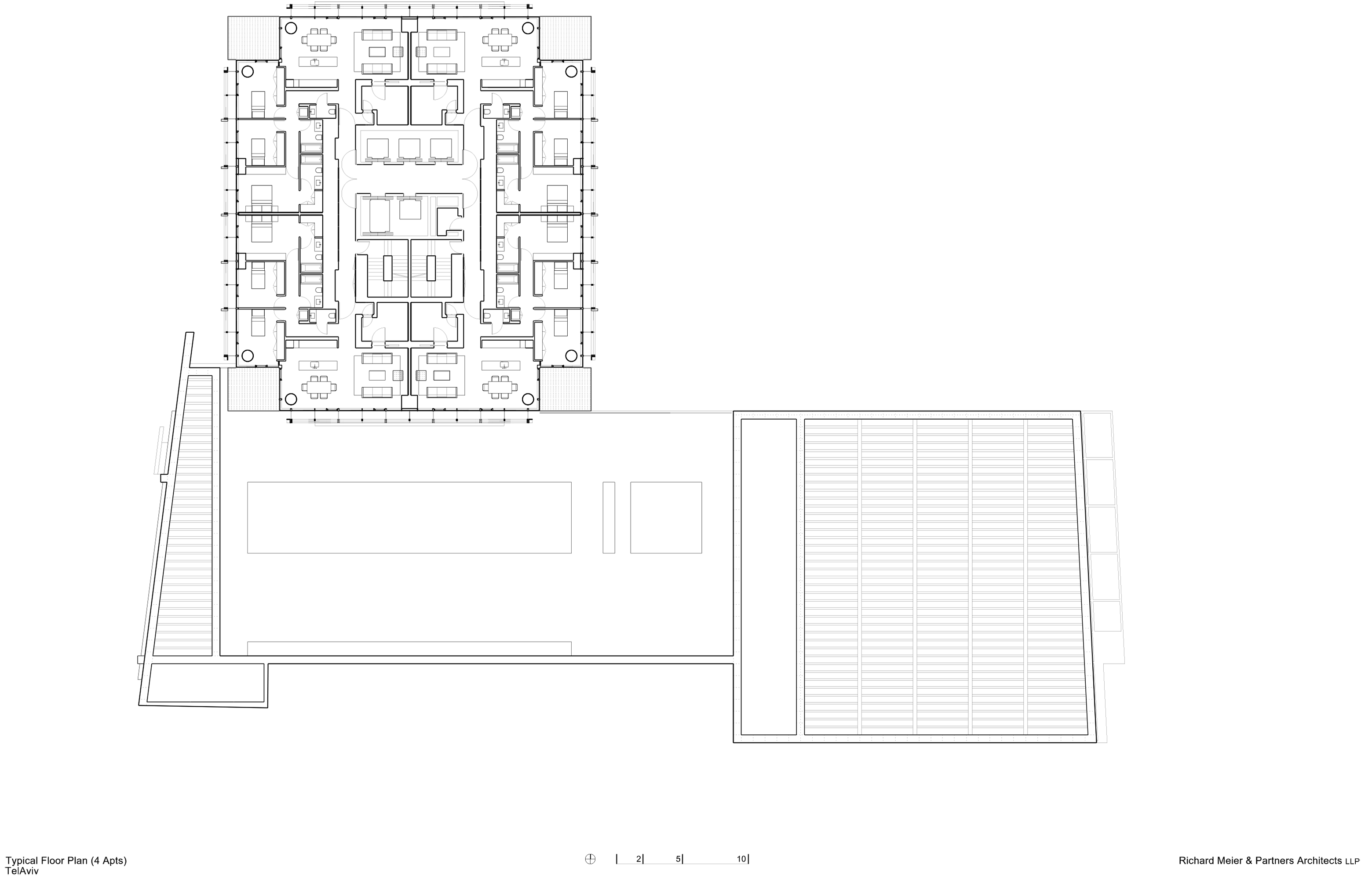
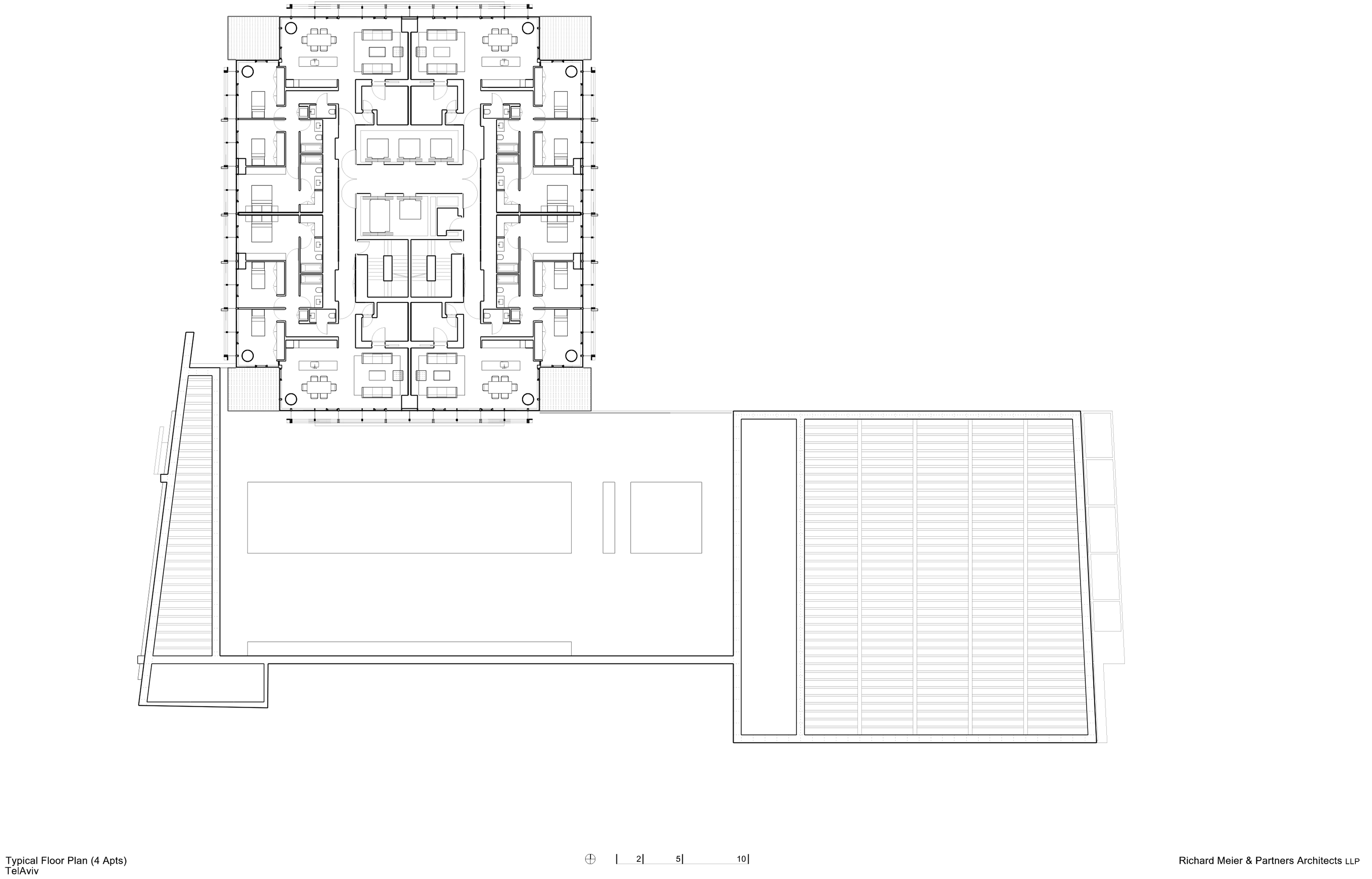
The residential tower on Rothschild Boulevard is Richard Meier's first project in Israel and his first tall apartment block outside the U.S.A. Sderot Rotshild is one of the principle arterial thoroughfares in Tel Aviv's White City - a district devised on the drawing board - and today is one of the city's most expensive streets. The architect, who is known for his modernistic white architecture, took his inspiration from the design principles that characterised the Bauhaus movement in Tel Aviv.
A total of 147 apartments are housed on 42 floors in the white high-rise, with breath-taking views of the city and the sea being one of the important characteristic of the luxury apartments. The neighbourhood is filled with famous Bauhaus-style buildings from between the 1930s and the 1950s by German Jewish architects. The residential tower is an impressive 154 metres in height and seeks with its multi-layer facade to convey an impression of lightness and transparency. In view of the building's dimensions, however, it is questionable whether the desired effect will be achieved.
A total of 147 apartments are housed on 42 floors in the white high-rise, with breath-taking views of the city and the sea being one of the important characteristic of the luxury apartments. The neighbourhood is filled with famous Bauhaus-style buildings from between the 1930s and the 1950s by German Jewish architects. The residential tower is an impressive 154 metres in height and seeks with its multi-layer facade to convey an impression of lightness and transparency. In view of the building's dimensions, however, it is questionable whether the desired effect will be achieved.











