Metal workshop becomes gourmet temple
Camaraderie Restaurant in Houston by Schaum Architects
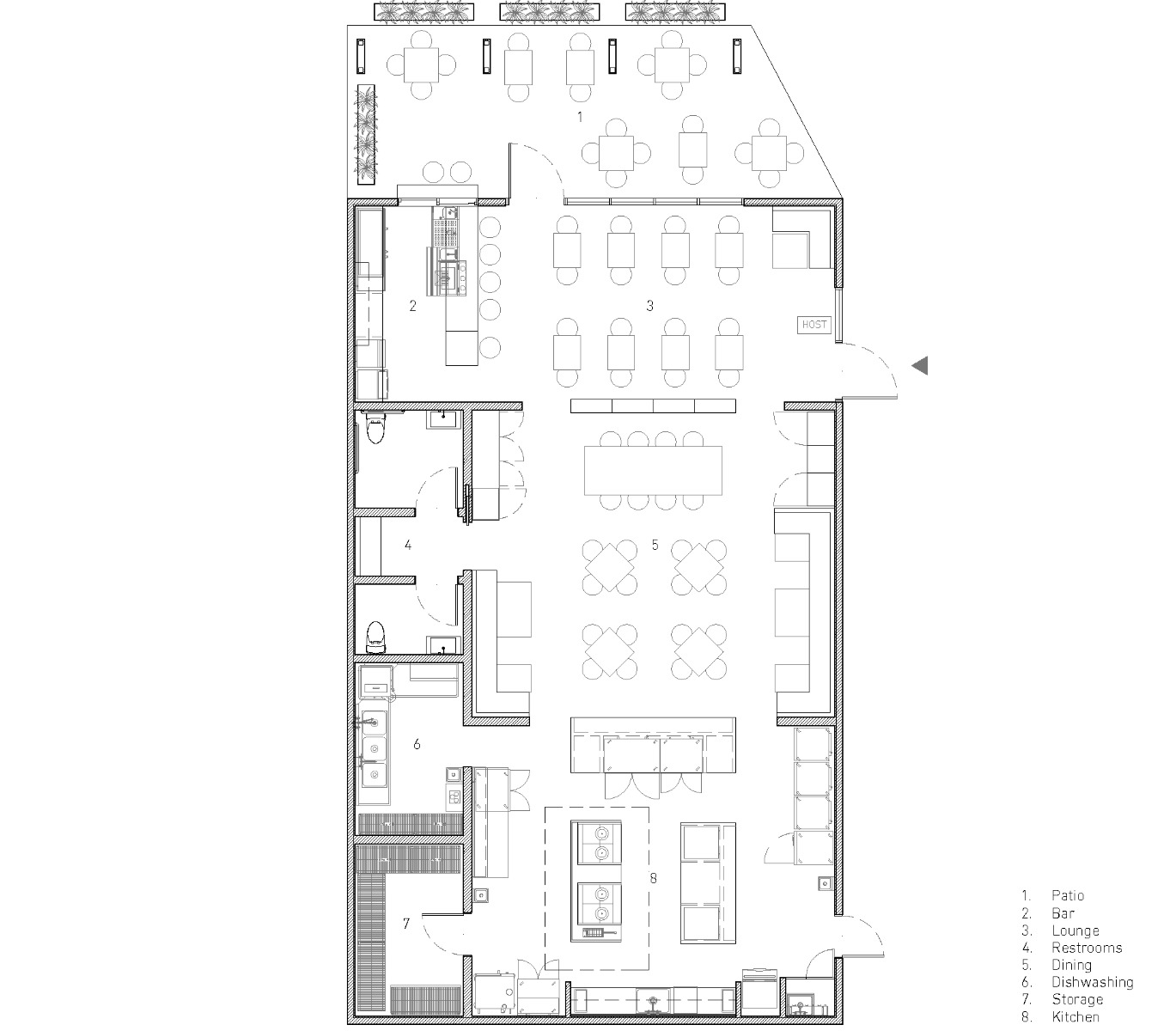
The restaurant is housed in a converted metal workshop. The kitchen, located at the back of the room, opens up to almost the entire width of the dining area. © Leonid Furmansky
The Houston Heights neighbourhood was established at the end of the 19th century as a residential area for people of all incomes on the outskirts of Houston, Texas. Many of the residential buildings date back to the neighbourhood's origins and have since been listed as historic monuments. After a period of decline following the Second World War, Houston Heights has undergone significant gentrification. Even simple commercial buildings are being repurposed in its wake.


Even after the conversion, the industrial character of the hall is clearly visible. Only a fresh lick of paint, new windows and doors have been added. © Leonid Furmansky
Resource-conscious conversion
However, this is rarely done as imaginatively or as resourcefully as at the Camaraderie restaurant. Its owner, Shawn Gawle, approached Schaum Architects to convert a former metal workshop on 11th Street to suit his needs. The functional, green-painted building was previously windowless, but now receives daylight through a series of skylights across the roof ridge. The architects opened up the eaves-side facade to create a covered veranda, and opened up the rest of the building with new doors and windows. They also painted the profiled sheet metal cladding white and blue.


The bar's ceiling glows dark blue. © Leonid Furmansky


This key colour is also found on the entrance wall of the restaurant. © Leonid Furmansky
Something for every taste
The restaurant's floor plan is now divided into four sections: an open veranda with seating for 22, a bar, a dining room with an additional 32 seats, and an open kitchen at the rear of the building. In total, 75 people can be seated in the 220 m² space. The architects painted the ceiling, roof beams and counter in the bar in dark blue. A circular, backlit bottle rack behind the counter is an eye-catching feature. Troy Schaum, founder of Schaum Architects, compares the restaurant's atmosphere to that of a Swiss chalet or Japanese ryokan: the white ceiling beams are covered with wooden panels, except where the skylights are open. The kitchen opens up to almost the entire width of the dining area. A wide sideboard and a bottle rack with integrated plant pots separate the dining area from the bar on one side and the kitchen on the other.
Architecture: Schaum Architects
Client: Re:vive Development
Operator: Shawn Gawle
Location: 608 W 11th St, Houston, TX 77008 (US)
Structural engineering: H2B Engineering
Building services engineering: GK Engineers
Contractor: Course Construction Group













