Metallwerkstatt wird Gourmettempel
Restaurant Camaraderie in Houston von Schaum Architects
Das Restaurant entstand in einer umgebauten Metallwerkstatt. Die Küche im hinteren Bereich des Raums öffnet sich beinahe in voller Breite zum Gastbereich. © Leonid Furmansky
Das Quartier Houston Heights entstand Ende des 19. Jahrhunderts als Wohnsiedlung für alle Einkommensklassen am Rande der texanischen Großstadt Houston. Viele Wohnhäuser datieren noch aus der Ursprungszeit des Viertels und wurden inzwischen unter Denkmalschutz gestellt. Nach einer Periode des Verfalls nach Ende des Zweiten Weltkriegs erlebt Houston Heights seit einiger Zeit eine deutliche Gentrifizierung. In ihrem Zug werden auch einfache Gewerbebauten neu genutzt.


Der industrielle Charakter der Halle ist auch im umgebauten Zustand noch deutlich zu erkennen. Lediglich ein neuer Anstrich sowie neue Fenster und Türen sind dazugekommen. © Leonid Furmansky
Ressourcenbewusster Umbau
Selten geschieht dies jedoch so einfallsreich und ressourcenbewusst wie im Fall des Restaurants Camaraderie. Dessen Betreiber Shawn Gawle wandte sich an Schaum Architects, um eine ehemalige Metallwerkstatt an der 11th Street für seine Zwecke umzubauen. Der grün lackierte Zweckbau war zuvor fensterlos, erhielt aber Tageslicht über eine Reihe von Oberlichtern quer zum Dachfirst. Die Architekten öffneten die Fassade an der Traufseite, um eine überdachte Veranda anzulegen, und öffneten den verbleibenden Teil des Hauses mit neuen Türen und Fenstern. Die Hülle aus Profilblechen ließen sie in Weiß und Blau anstreichen.


Die Decke der Bar leuchtet in dunklem Blau. © Leonid Furmansky


Die gleiche Leitfarbe findet sich auch an der Eingangswand des Restaurants wieder. © Leonid Furmansky
Für jeden Geschmack etwas
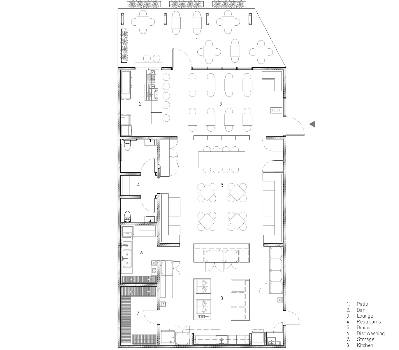
Der Grundriss des Restaurants gliedert sich nunmehr in vier Abschnitte: die offene Veranda mit 22 Sitzplätzen, eine Bar, den Gastraum mit 32 weiteren Plätzen und eine offene Küche im hinteren Bereich des Hauses. Alles in allem können auf den 220 m² Grundfläche 75 Personen bewirtet werden. In der Bar ließen die Architekten die Decke, die Dachbalken und den Tresen in dunklem Blau streichen. Ein kreisrundes, hinterleuchtetes Flaschenregal dient als Blickfang hinter der Theke. Die Raumatmosphäre des Restaurants hingegen vergleicht Troy Schaum, der Gründer von Schaum Architects, mit einem Schweizer Chalet oder japanischen Ryokan: Die weiß lackierten Deckenträger sind mit Holzpaneelen verdeckt – außer dort, wo sich die Oberlichter öffnen. Die Küche öffnet sich fast in voller Breite zum Gastraum. Eine breite Anrichte und ein Flaschenregal mit integrierten Pflanzenkübeln grenzen den Gastraum von der Bar auf der einen und von der Küche auf der anderen Seite ab.
Architektur: Schaum Architects
Bauherr: Re:vive Development
Betreiber: Shawn Gawle
Standort: 608 W 11th St, Houston, TX 77008 (US)
Tragwerksplanung: H2B Engineering
TGA-Planung: GK Engineers
Bauunternehmen: Course Construction Group













