Brutalism on the water
Restaurant in the Cantabrian Maritime Museum
In the MMC restaurant, guests dine under a vault of concrete paraboloids. © David Zarzoso
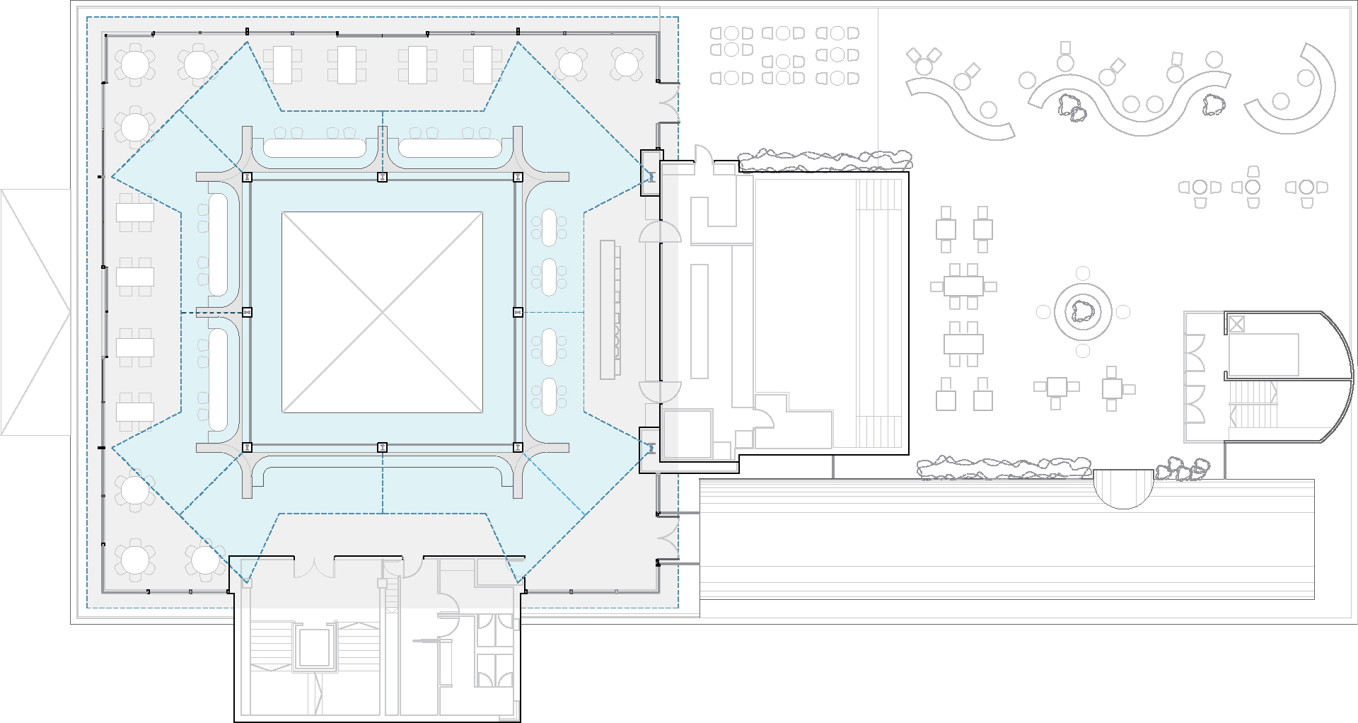
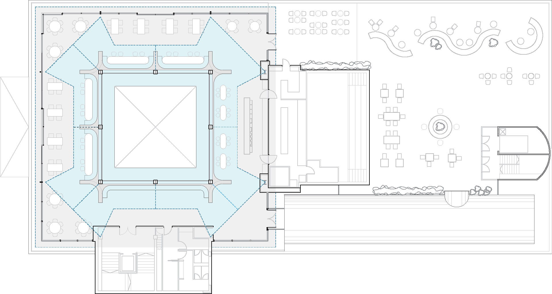
In the mid-1970s, architects Vicente Roig Forner and Ángel Hernández Morales designed and built the famous Cantabrian Maritime Museum in Santander. On the second floor of the museum, Madrid-based Zooco Estudio has created a restaurant that celebrates the brutalist architecture of the existing building.
Revitalising the paraboloid
Guests dine under a vault of concrete paraboloids that were uncovered during renovations in 2003. Four new concrete triangles were added to emphasise the symmetry of the space. Combined with the wooden suspended ceilings, the interior is reminiscent of the region's shipbuilding heritage. Large vertical expanses of glass enclose the restaurant and provide uninterrupted views of the sea. Complemented by a wrap-around terrace, like those found on ships, guests feel as if they are on board.


Large glass surfaces provide an unobstructed view of the sea. © David Zarzoso
The interior
Natural fabrics, light-coloured furniture and wooden fixtures contrast with the raw concrete to create a warm atmosphere. The wooden slatted ceilings contribute to this atmosphere, while concealing the air-conditioning, heating and lighting systems. The luminaires also have a nautical reference: Their shape is reminiscent of a mast with a taut sail.
Interior design: Zooco Estudio
Team: Miguel Crespo Picot, Javier Guzmán Benito, Sixto Martín Martínez, Estefanía Sánchez
Location: Santander (ES)























