// Check if the article Layout ?>
Reticence in exposed concrete: Enlargement of primary school in Evilard
Photo: Aytac Pekdemir
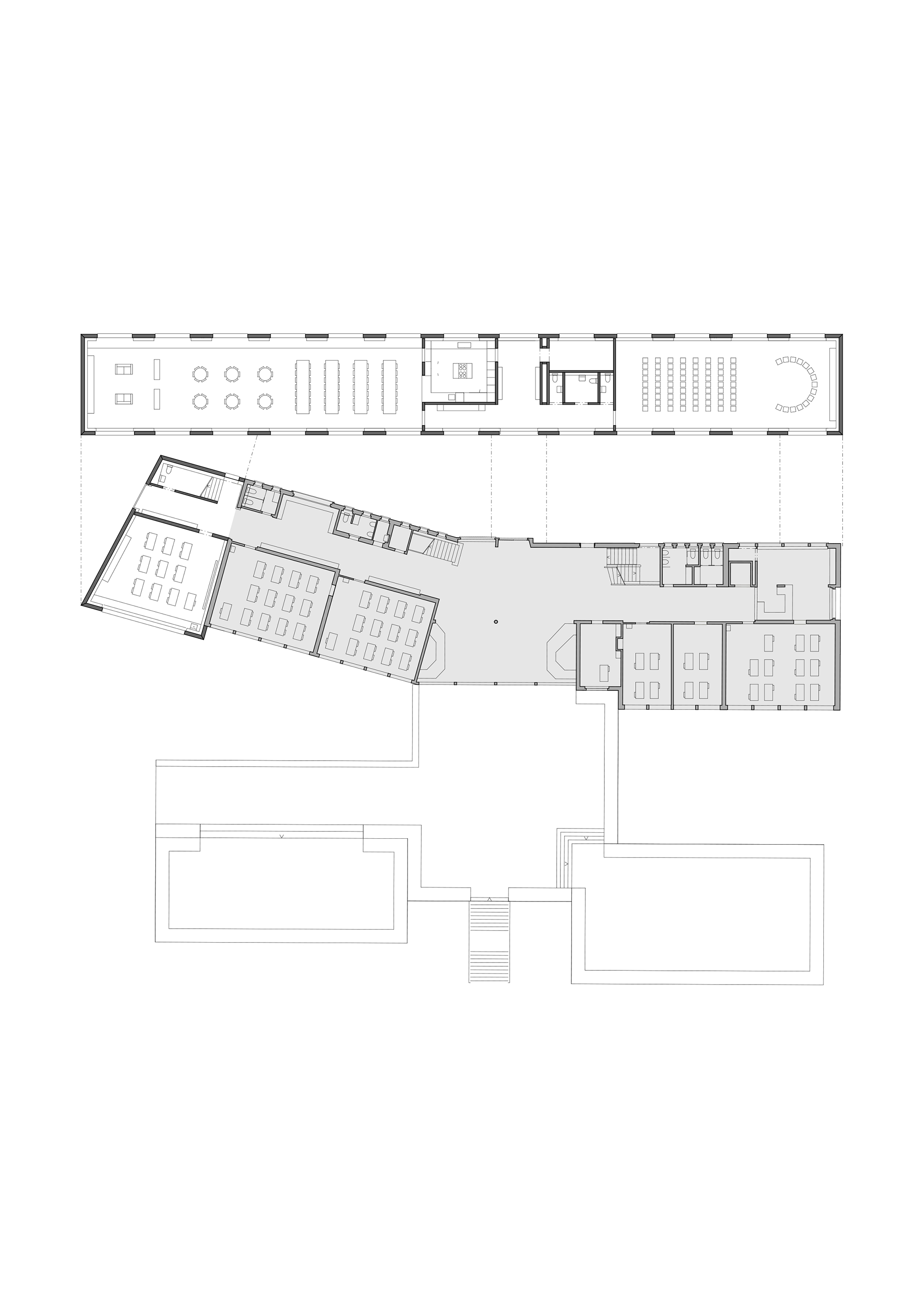
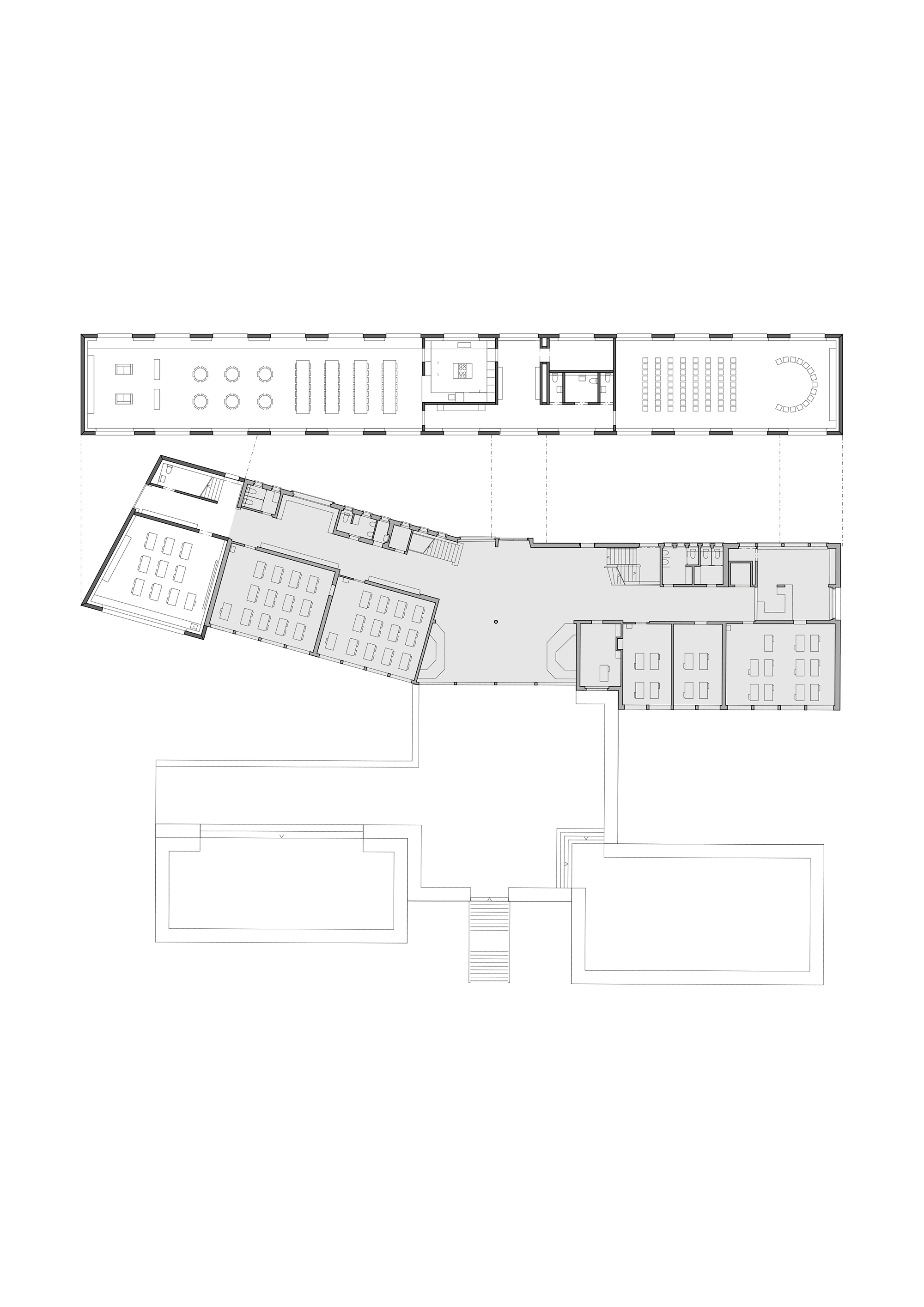
Dolmus Architects has designed a two-storey extension for the primary school in Evilard, a small village community in Switzerland. The new building is placed to the rear of the existing one, resulting in a long intermediate yard that provides all those involved in the school a semi-sheltered communication space. The extension also angles inward to join the existing building, narrowing the yard into an irregular shape to interesting effect. Two elevated walkways that connect the two buildings help contain and articulate the outdoor space.
The extension quotes the inclination of the roof and the fenestration of the existing building, integrating it with the existing school complex. Dolmus Architects have also adopted and complemented the ground plan structure. The ground floor contains a dayschool room that can be divided according to need and a multi-purpose hall with ancillary rooms. The upper floor almost doubles the school's amount of classrooms, and includes schoolrooms provided natural light from two sides. Thanks to the elevated walkways between the two buildings, the schoolhouse is experienced from the inside as a single whole. Covered outside areas define the access points to the old and new parts of the school.
The extension quotes the inclination of the roof and the fenestration of the existing building, integrating it with the existing school complex. Dolmus Architects have also adopted and complemented the ground plan structure. The ground floor contains a dayschool room that can be divided according to need and a multi-purpose hall with ancillary rooms. The upper floor almost doubles the school's amount of classrooms, and includes schoolrooms provided natural light from two sides. Thanks to the elevated walkways between the two buildings, the schoolhouse is experienced from the inside as a single whole. Covered outside areas define the access points to the old and new parts of the school.
















