// Check if the article Layout ?>
Rien ne va plus: Multifunctional Building in La Seyne-sur-Mer
Photo: Javier Callejas
DATA Architectes have created this huge multifunctional structure in the harbour of La Seyne-sur-Mer. Right on the water, this home to a casino, theatre, restaurant, bars, leisure and cultural centre presents an unforgettable atmosphere.
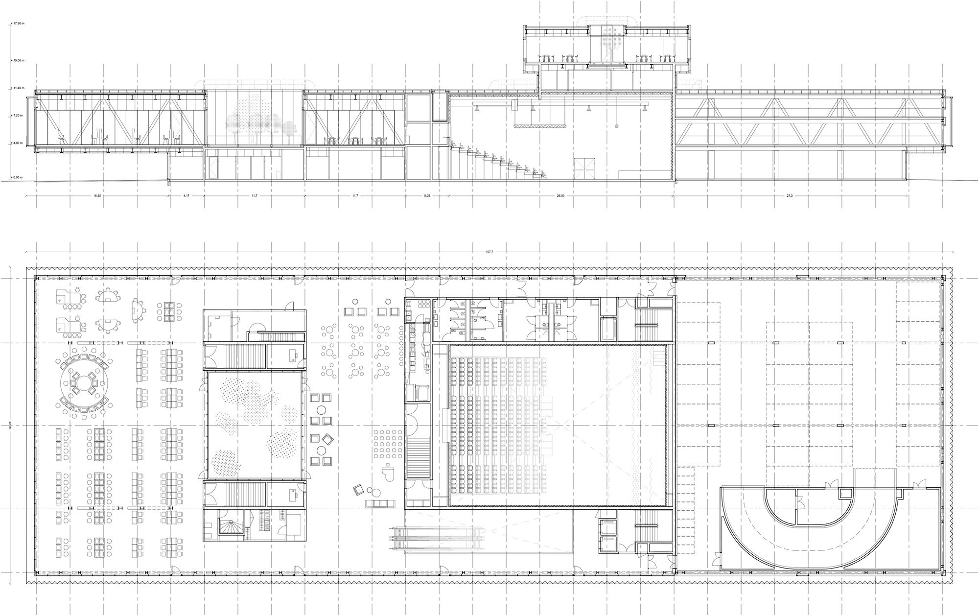
The building rests on a rectangular principle that fits perfectly into the straight lines of the harbour’s organization. The architects’ intention of calling to mind a ship at anchor seems to have succeeded. This impression is reinforced by the observation tower, a topper box which mimics the bridge on a steamer.
Compared to its limited height, the casino has an enormous area, which supports the monolithic character of the structure. Both construction and structural elements create a certain visual effect. In terms of construction, the two-storey building has a steel framework combined with reinforced-concrete elements. The ground floor is like a foundation of aluminum and glass, quite restrained in contrast to the part above it. This is higher and juts dramatically towards the quay. It also features individual atriums.
The steel V-beams on the long sides of the upper storey can be seen from inside. Perforated metal panels have been used as an outer shell. Towards the sea, the glass is unclad, allowing an unobstructed view over the surrounding harbour.
On the west side, there is a paved front area through which visitors access the building. This is where the main entrance is found. All the interior spaces are arranged around the heart of the complex: the theatre. All in concrete, this forms a core which orders and connects the various areas of the building on the different levels. Along with the foyer, the entry level is home to administrative areas, offices and exhibition spaces. Above, there is the casino, which looks north towards the water. Its generous design over 1,000 m² quickens the beat of every gambler’s pulse. Parking is available in the south part of the complex. The spatial program is complemented with a restaurant in the set-on box. Here, guests can enjoy the 360-degree panorama as they dine.
more Information:
Team: Léonard Lassagne, Colin Reynier, Sylvia Bourgoin, Raphaël Boursier, Clementine Debaere, Edouard Guyard, Eva Salga
Interior Design: Virginie Curtillet (Studio Divo)
Interior Design: Virginie Curtillet (Studio Divo)

















