// Check if the article Layout ?>
Room for Something New: Courtyard Design by Vallo Sadovsky Architects
Foto: BoysPlayNice
Nádvorie is completely surrounded by an urban environment. On the west side of the yard, two passageways form the only direct access from the street. To the east, a smaller structure at each end of the courtyard leaves enough space to connect the square to its surroundings. In the middle of the square, a few low steps lead visitors to the central level. This level is characterized by its four trees, which complement the large planters and add to the touch of greenery. The paving echoes the historical parcelling of the space. Seating and mood lighting round out the project.
Vallo Sadovsky Architects have taken great care with the buildings, which date back to the 14th century. Where needed, they have restored, reconstructed and expanded. The front sides have been done completely in white plaster and red brick. Interstitial pieces made of steel constructions link the connecting points and have become terraces in their own right. Only the façade of the new building to the south stands apart. It has been veiled in ceiling-high glass elements with narrow vertical wooden screens. Horizontal steel supports accentuate the individual levels. A grey attic storey tops it all off.
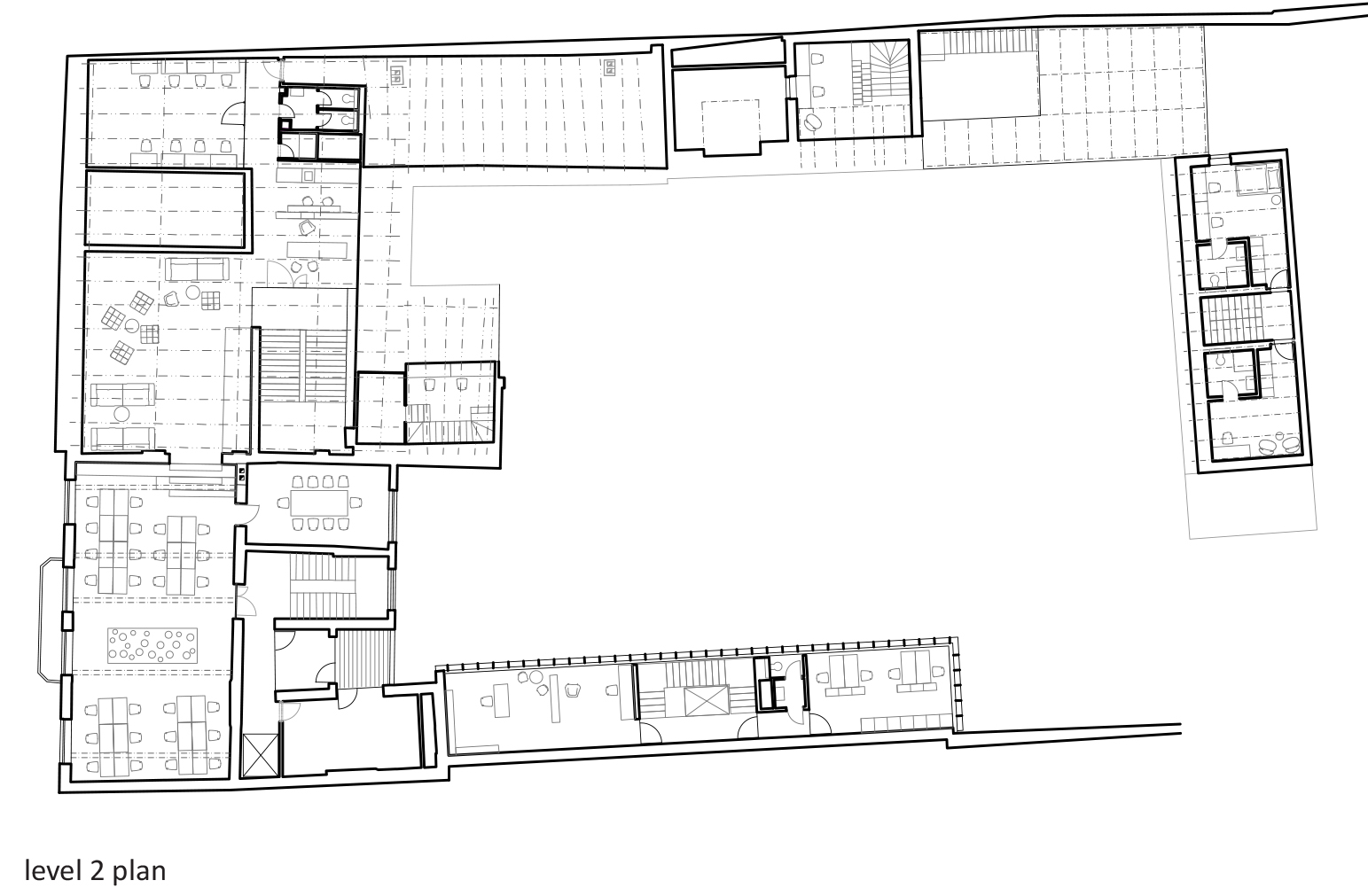
The spatial program in these buildings is as diverse as their façades. It encompasses a broad range of functions and brings not only everyday life out onto the public square, but special events as well. The ground floor is home to various commercial enterprises, including a restaurant. Along with a cultural centre, offices and co-working spaces, there are areas for student residences and apartments. The result is a harmonious symbiosis of public, semi-public and private spaces.
Inside, Vallo Sadovsky Architects have preserved characteristic features such as Gothic arches, baroque joist ceilings and other ceilings in plain concrete. These beautify the spaces and refer to the buildings’ past. With exposed-concrete floors and a modern fittings concept, the architects have created a concordant whole.
Vallo Sadovsky Architects have taken great care with the buildings, which date back to the 14th century. Where needed, they have restored, reconstructed and expanded. The front sides have been done completely in white plaster and red brick. Interstitial pieces made of steel constructions link the connecting points and have become terraces in their own right. Only the façade of the new building to the south stands apart. It has been veiled in ceiling-high glass elements with narrow vertical wooden screens. Horizontal steel supports accentuate the individual levels. A grey attic storey tops it all off.
The spatial program in these buildings is as diverse as their façades. It encompasses a broad range of functions and brings not only everyday life out onto the public square, but special events as well. The ground floor is home to various commercial enterprises, including a restaurant. Along with a cultural centre, offices and co-working spaces, there are areas for student residences and apartments. The result is a harmonious symbiosis of public, semi-public and private spaces.
Inside, Vallo Sadovsky Architects have preserved characteristic features such as Gothic arches, baroque joist ceilings and other ceilings in plain concrete. These beautify the spaces and refer to the buildings’ past. With exposed-concrete floors and a modern fittings concept, the architects have created a concordant whole.




























