// Check if the article Layout ?>
Scenic sight: Private residence by Carvalho Araújo
Photos: Hugo Carvalho Araújo
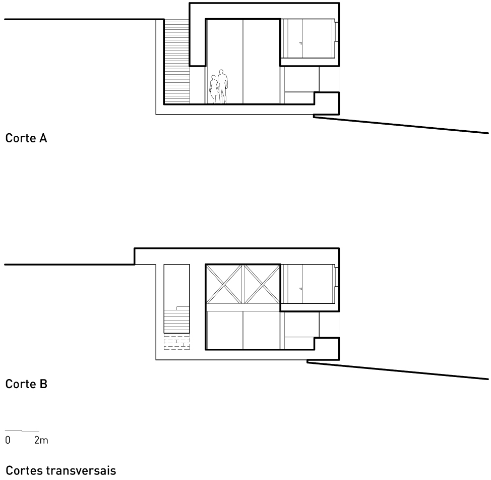
A house was already located higher up the slope before Casa do Gerês was built, but since it was endangered by landslides, the decision was taken to tear it down and replace it with a new one located more favourably further down. Built against the steep slope, the new, long volume faces onto the valley lying to its south, its outer appearance determined by two elements: a timber cuboidal structure and a heavy concrete base, clearly separated by a narrow band of windows.
Stone steps that are the means of access to Casa do Gerês lead down from the upper part of the slope, all the while rewarding the visitor with sweeping views over the roof of the house to the valley beyond. A flight of concrete steps continues down to the interior, where a spacious living room that takes up practically the whole of the ground floor forms the focus of the house, providing a place for lounging, dining or work according to requirements. The continuous band of windows along the front of this room draws the landscape into the building, while a large terrace extends the living space to the outdoors.
Three materials – wood, glass and concrete – not only determine the outside of the volume but also continue throughout its interior. Here their nuanced use and the different storey heights result in large, light-flooded spaces and darker, more intimate rooms for varied atmospheric qualities. Two completely wood-lined bedrooms with visual connections to the living room are located on the mezzanine floor, while sanitary areas, the kitchen, etc. are situated in a functional section at one of the ends of the house.
Not only the interior of the building but also the design of the grounds is related to the surrounding landscape. A gravel path leads from above the terrace to a natural pool surrounded on practically all sides by wooden decking. A murmuring stream, idyllic places for sitting alongside the water and shady spots beneath the trees round off the overall landscape architecture concept. The result is a picturesque dwelling characterised by a fine and harmonious interplay of location, materials and space.
more Information:
Architect: Carvalho Araújo
Team: José Manuel Carvalho Araújo, Joel Moniz, Leandro Silva, Ana Vilar, André Torres, Mafalda Santiago, Sandra Ferreira
Landscape architect: João Bicho and Joana Carneiro, Arquitectos Paisagistas
Supporting framework: Metaloviana, Metalúrgica de Viana, SA
Acoustic: Vagaeng
Photos: Hugo Carvalho Araújo
Team: José Manuel Carvalho Araújo, Joel Moniz, Leandro Silva, Ana Vilar, André Torres, Mafalda Santiago, Sandra Ferreira
Landscape architect: João Bicho and Joana Carneiro, Arquitectos Paisagistas
Supporting framework: Metaloviana, Metalúrgica de Viana, SA
Acoustic: Vagaeng
Photos: Hugo Carvalho Araújo

















