Layer by Layer: Alex Guesthouse by Atelier Vens Vanbelle
Foto: Tim Van de Velde
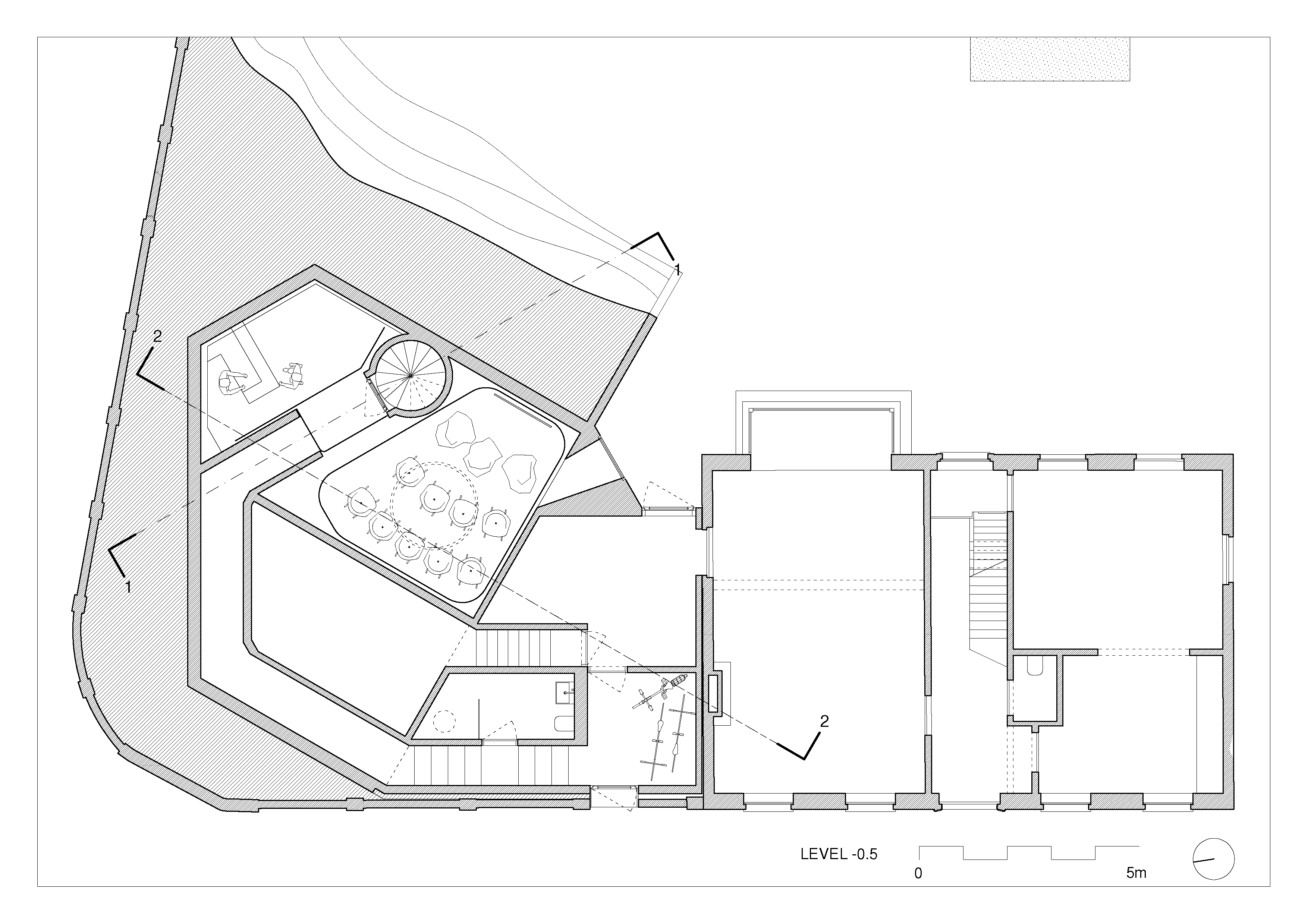
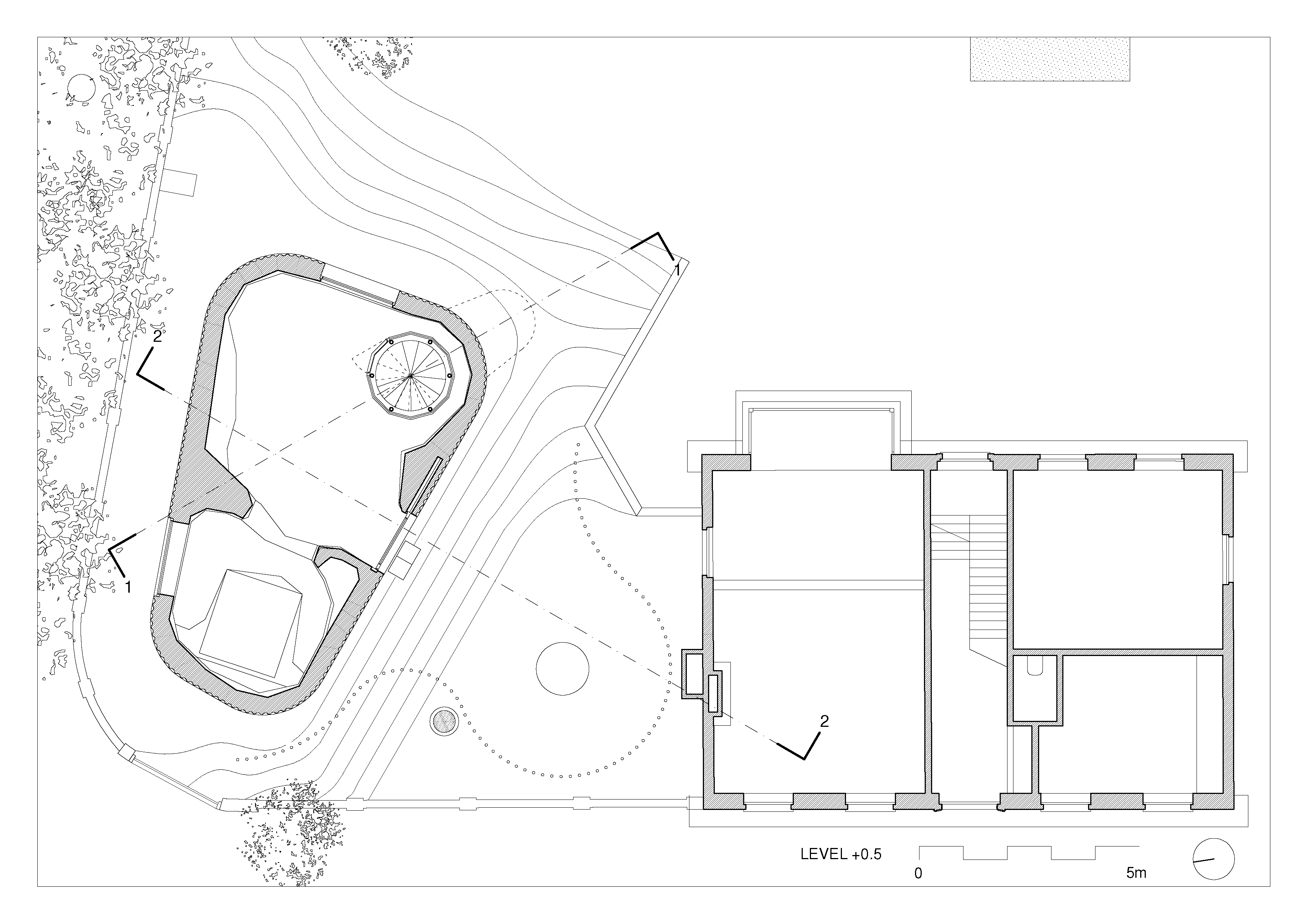
Das Gästehaus Alex befindet sich zwischen Gent und Brüssel in Uitbergen in idyllischer Lage. Es ergänzt das bestehende Heim des gleichnamigen Bauherrn, der selbst in der Filmbranche tätig ist. Bei der Gestaltung des Projekts ließen sich die belgischen Planer von kinematographischen Elementen inspirieren. Der Neubau setzt sich aus einem im Gelände verborgenen und einem sichtbaren Teil zusammen. Letzterer fällt vor allem durch seine unkonventionelle Form auf, die auf den ersten Blick an ein U-Boot erinnert. Er besteht aus einem abgerundeten Sockelbereich, auf den sich ein leuchtturmartiges Volumen setzt. Oben schließt er mit einer spektakulären Außendusche ab, die Körperpflege zwischen den Baumwipfeln und mitten in der Natur ermöglicht. Sämtliche Ansichten des Baukörpers sind in vertikal geriffeltes Cortenstahl gehüllt. Dank der natürlichen Farbgebung fügt sich das Haus damit behutsam in das Grundstück ein.
Gäste betreten den Neubau über den Fahrrad- und Gartenschuppen. Sie gelangen zuerst hinunter in einen unter der Erde versteckten Gang, der weiter in den Veranstaltungsbereich mit Bar führt. Er ist für Kinopremieren angedacht. Von dem Veranstaltungsraum geht es über eine Wendeltreppe weiter in den oberirdischen Trakt des Gästehauses. Dieser ist weit mehr als ein konventionelles Hotelzimmer. Hier werden Besucher mit einem warmen, organischen Design empfangen. Der Bau ist aus 4 cm dicken Holzschichten gebaut, die sich nahtlos aufeinanderstapeln. Das Holz bildet dabei nicht nur die Außenwände, sondern formt im Innenraum auch Einbauten, Regale und Möbel wie das Bett. Durch den unverkleideten Schichtaufbau entstehen weiche Rundungen und gemütliche, höhlenartige Wohn-, Schlaf- und Aufenthaltsräume, die zum Wohlfühlen einladen und für eine einzigarte Atmosphäre sorgen. Runde Fenster bieten Ausblicke in den Garten und die Umgebung, lassen viel Licht nach innen und runden den unvergesslichen Aufenthalt perfekt ab.





















