// Check if the article Layout ?>
School Duo: Educational Building De Tol in Riemst
Photo: Filip Dujardin
The building site is in the middle of Herderens, one of the places that belongs to the municipality of Riemst. A church, graveyard, day-care centre and small park surround the lot and thanks to their various elevations, provide interesting framework conditions. The positioning of the entrances makes the connection to the adjacent plots of land perceptible in the design.
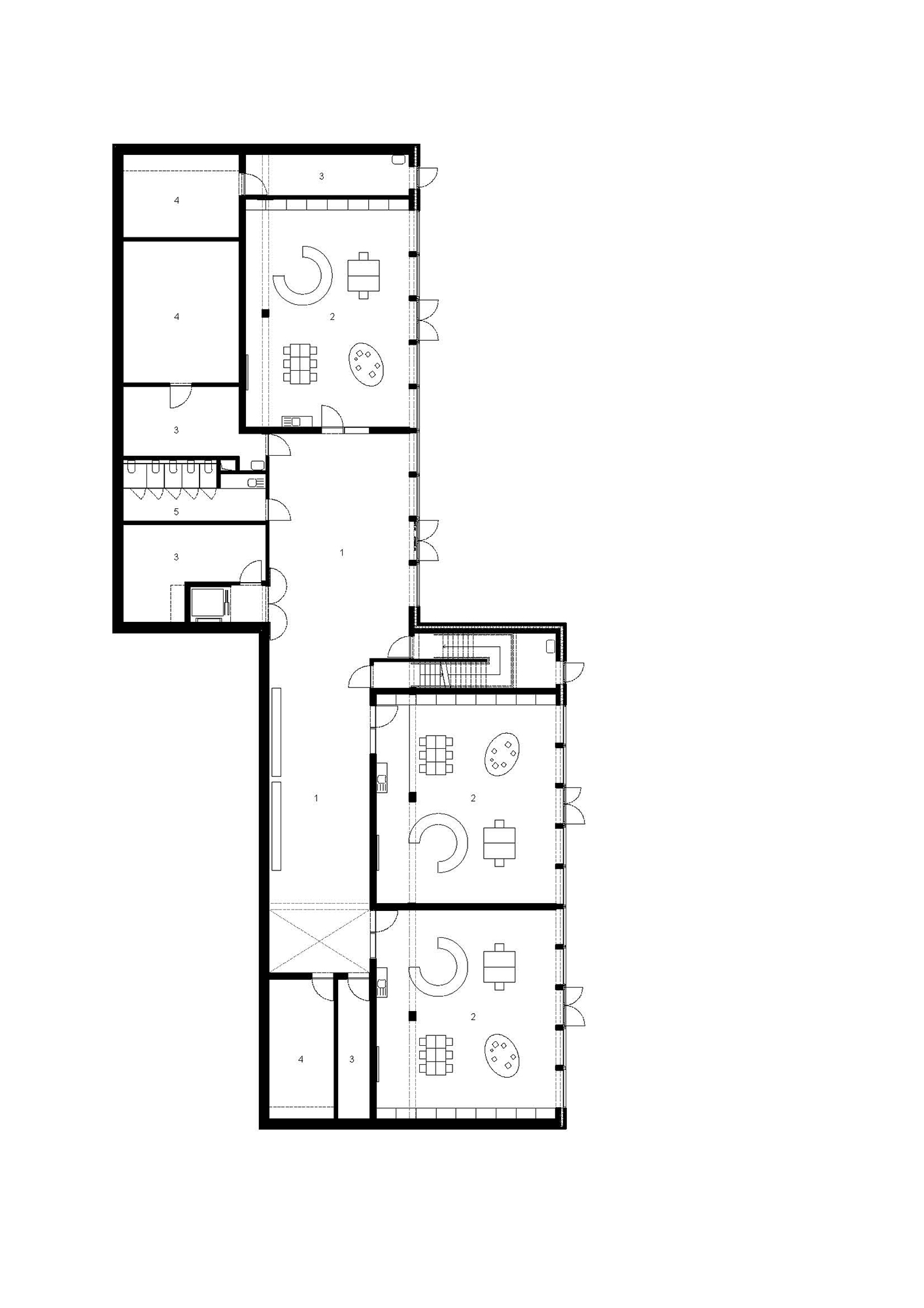
The school comprises two rectangular bodies of equal size which rise to three levels. These are arranged longitudinally, joined on the transverse side and offset by one-half. This creates the two inner corners where the accesses are found: east-facing for the preschool on the lower level, from the west for the primary school on the two upper levels.
In their appearance, both volumes speak the same language. A bright plinth area of sand-coloured bricks is complemented with ceiling-high glazing with black frames. Above that, the building is packaged in a mint-green shell of bold, vertically structured elements. These reach from the façade surfaces right up to the saddle roofs.
The programmatic arrangement of the interior spaces continues the division into two presented by the exterior view. The preschool is located on the lower level. It is oriented towards a playground on the east longitudinal façade of the building duo and functions independently of the other two levels. There are three classrooms and several smaller spaces. These are connected by means of a central communal area.
On the opposite side of the building, visitors reach the entrance to the primary school on the next level via an extensive front yard. The primary school has two storeys and is openly arranged around an atrium-like stairway. The lower portion is home to administrative spaces and a large hall used both as a dining room and a meeting place for clubs. The six classrooms are on the upper level.
The design of the interior consists of a combination of grey exposed-concrete surfaces, beige ceiling panels and white walls. Wood elements and striking yellow accents complete the bright ambience and give the schoolbuilding a child-friendly touch.
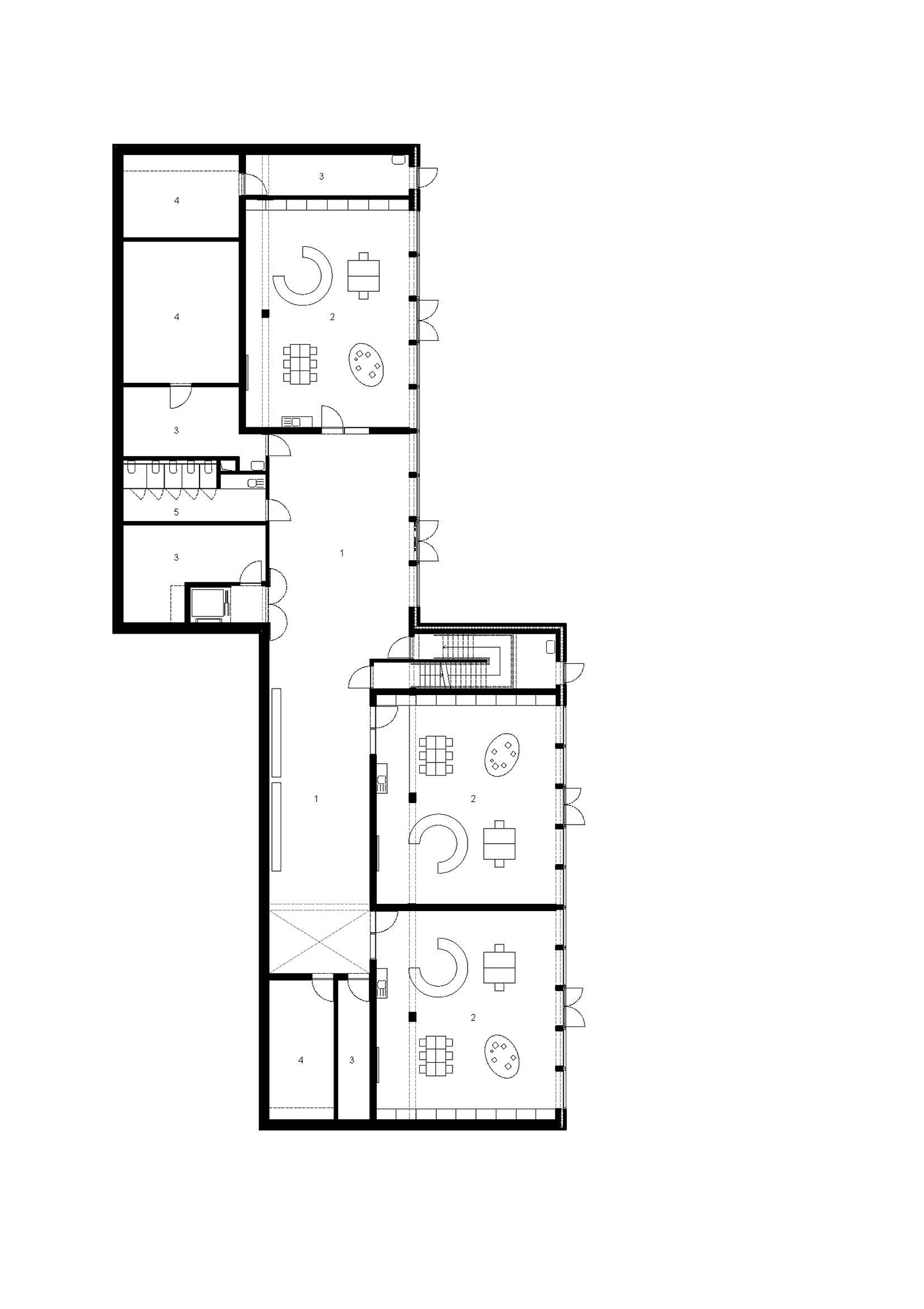
The school comprises two rectangular bodies of equal size which rise to three levels. These are arranged longitudinally, joined on the transverse side and offset by one-half. This creates the two inner corners where the accesses are found: east-facing for the preschool on the lower level, from the west for the primary school on the two upper levels.
In their appearance, both volumes speak the same language. A bright plinth area of sand-coloured bricks is complemented with ceiling-high glazing with black frames. Above that, the building is packaged in a mint-green shell of bold, vertically structured elements. These reach from the façade surfaces right up to the saddle roofs.
The programmatic arrangement of the interior spaces continues the division into two presented by the exterior view. The preschool is located on the lower level. It is oriented towards a playground on the east longitudinal façade of the building duo and functions independently of the other two levels. There are three classrooms and several smaller spaces. These are connected by means of a central communal area.
On the opposite side of the building, visitors reach the entrance to the primary school on the next level via an extensive front yard. The primary school has two storeys and is openly arranged around an atrium-like stairway. The lower portion is home to administrative spaces and a large hall used both as a dining room and a meeting place for clubs. The six classrooms are on the upper level.
The design of the interior consists of a combination of grey exposed-concrete surfaces, beige ceiling panels and white walls. Wood elements and striking yellow accents complete the bright ambience and give the schoolbuilding a child-friendly touch.

















