Behind large doors
Guggach School Complex in Zurich
The atrium is the hub for communication within the school community. © Daisuke Hirabayashi
The Guggach site is located at the foot of the recreational area of Käferberg. It used to be home to allotments and a sports facility owned by the major bank UBS. However, a few years ago, the city launched a densification project here, holding an architectural competition in 2018 to design housing for 230 people, a residential district plan, and a primary school with twelve classrooms. The winners were the two young architectural firms Weyell Zipse from Basel and Doscre from Zurich, as well as the Berlin-based landscape planners Atelier Loidl. While their Zurich colleagues were responsible for the residential construction, Weyell Zipse Architects were awarded the planning contract for the school building.


In summer, large sliding doors allow the atrium to be opened up to the neighbouring park throughout the day. © Daisuke Hirabayashi
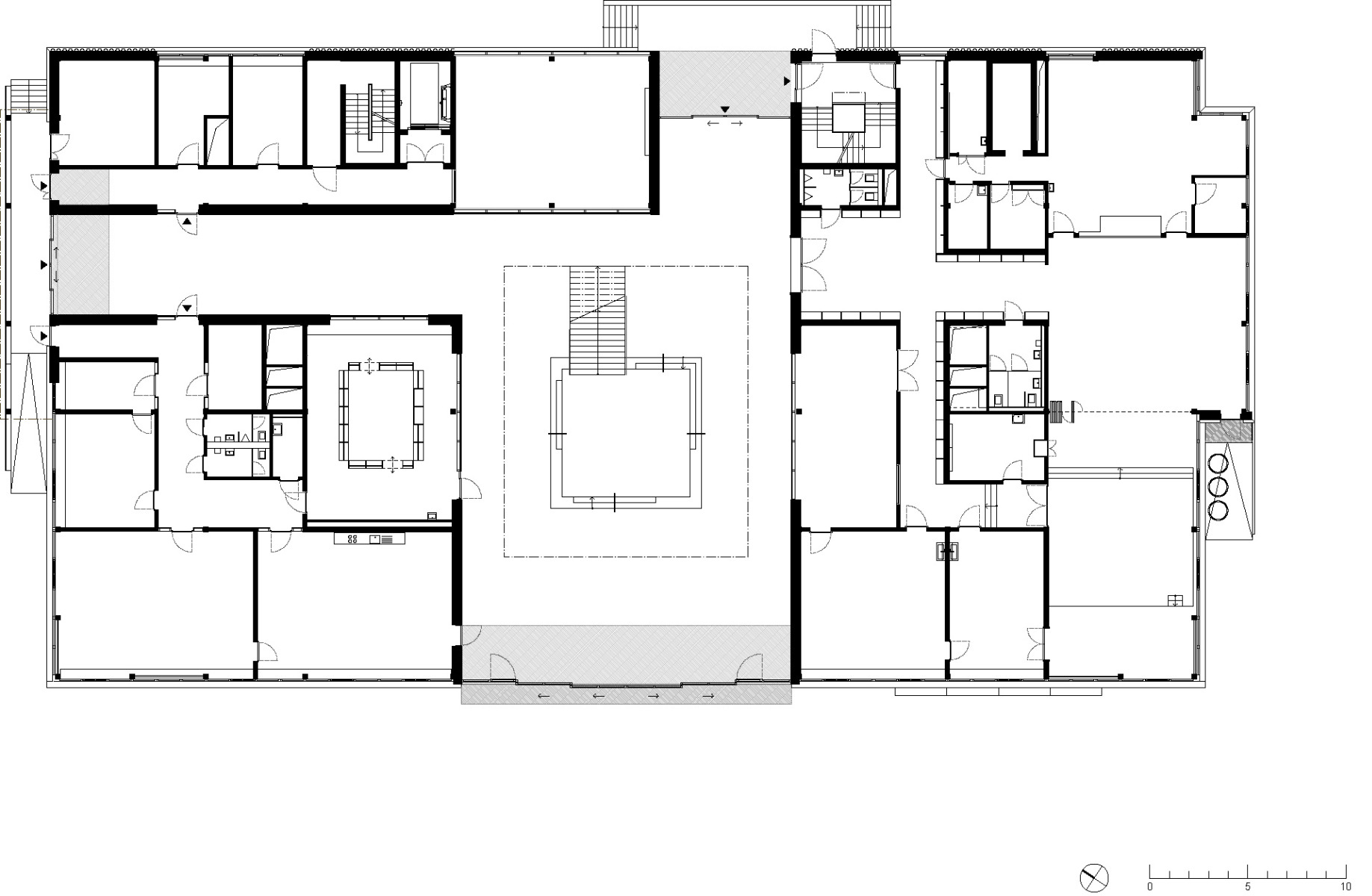
Three storeys high and open to the park
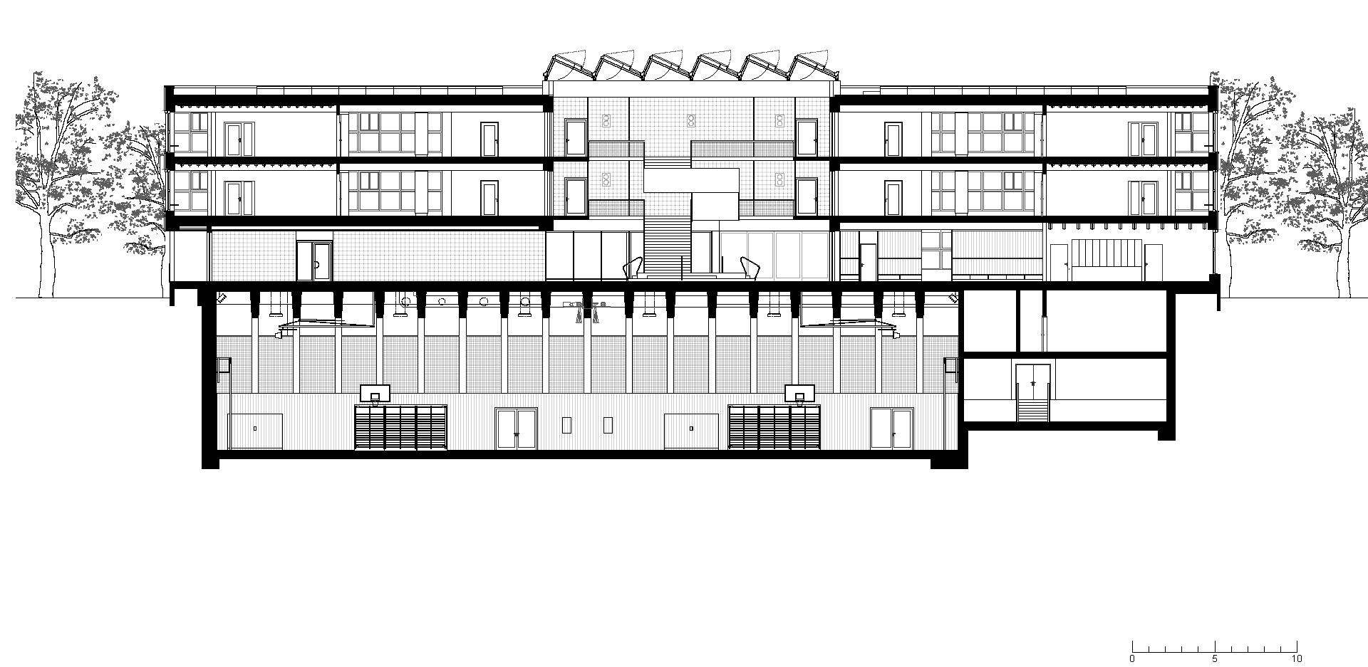
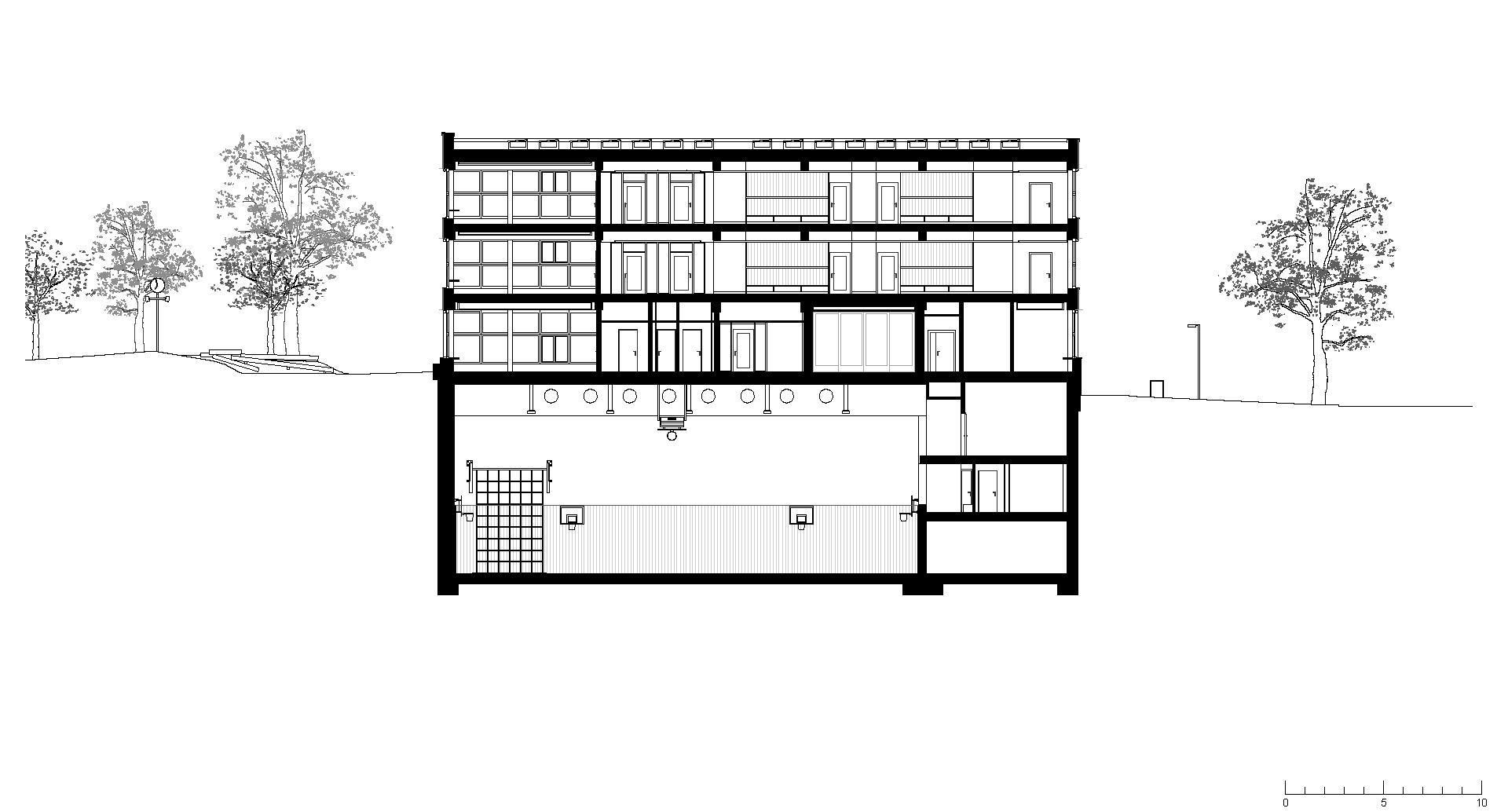
On Wehntalerstraße in the north, the new building forms a closed rear with three storeys. Only a modest staircase and a recessed entrance lead into the building from this side. The view from the south, however, is completely different: here, the three-storey atrium can be opened to its full height to the adjacent neighbourhood park via manually operated sliding doors. The doors are only closed in winter. The greenhouse-style roof can also be opened and there is an integrated sun protection system to provide shade when needed. The architects decided not to specify any particular use for the covered break area. It was intended for the pupils to make the atrium their own.


A simple shed roof protects the atrium from rain. © Daisuke Hirabayashi


The school facades are clad in untreated aluminium sheets. © Daisuke Hirabayashi
Cost efficiency was essential
The atrium was not originally included in the school's space allocation plan. Additionally, the school had to comply with the ambitious Minergie-P-Eco energy standard. Consequently, the large break room is located outside the school's insulation perimeter and remains unheated. Costs for the complex building envelope had to be cut elsewhere. The architects therefore opted for a simple design, clearly separating the structure, building services and interior fittings. The skeleton structure comprises exposed concrete columns and ceilings, partition walls made of sand-lime brick, and a facade of untreated, non-anodised aluminium. Pastel-coloured wooden fixtures in the cloakrooms and parquet flooring in the classrooms create a homely atmosphere.


Die Sporthalle liegt drei Ebenen unter der Erde. Dennoch erhält sie über einen zweigeschossigen Raum auf der Nordseite Tageslicht. © Daisuke Hirabayashi
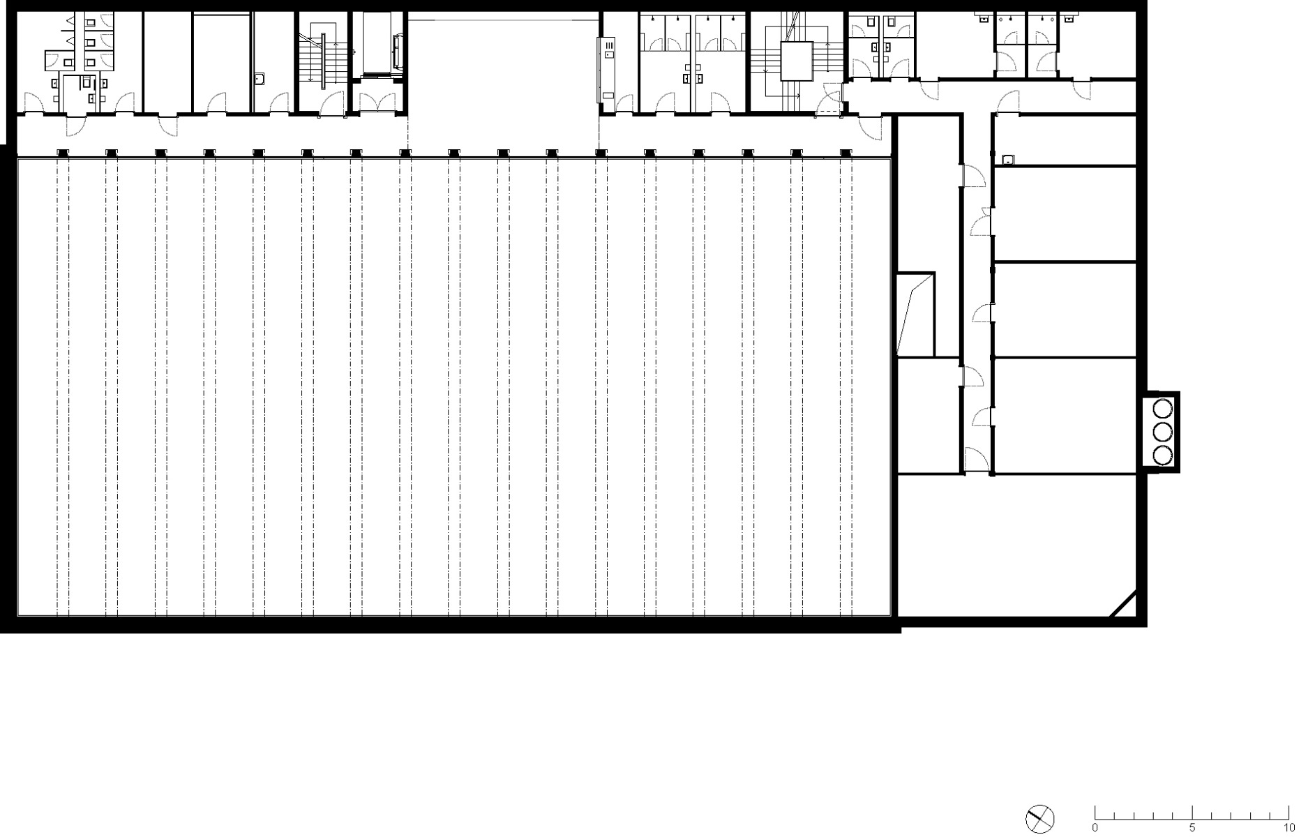
Underground sports hall
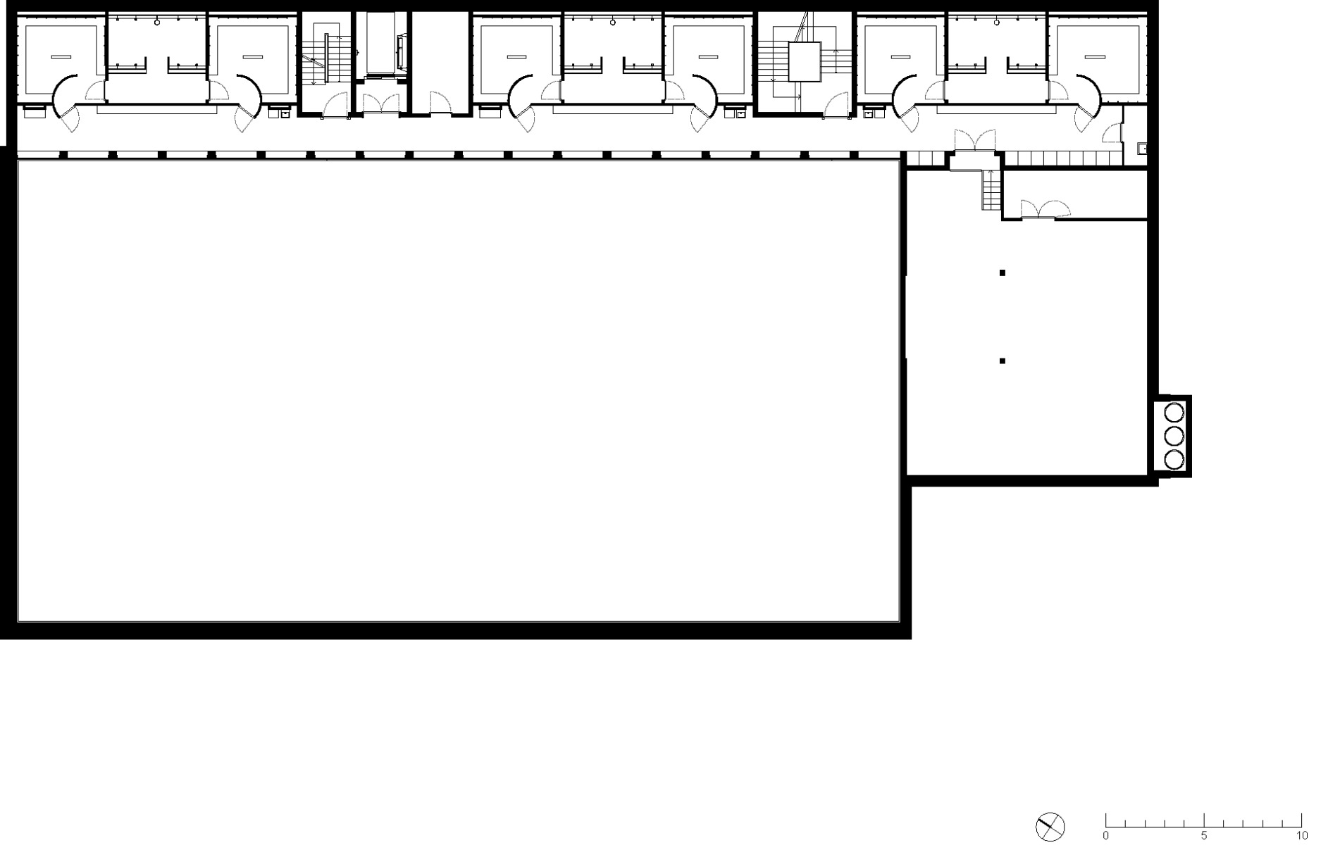
A total of sixteen classrooms, grouped in clusters of four, are spread over the two upper floors. On the north side, facing the street, are the well-insulated music rooms. On the ground floor, a day care cluster has been created, complete with an event room and a canteen. Below this, the school building extends three storeys underground. The sports hall is located here and receives natural light from the north through a two-storey room. After school, it is also available to sports clubs. Due to the sports hall's limited load-bearing capacity, the upper floors had to be designed to be as lightweight as possible. The school's supporting structure therefore consists mainly of prefabricated recycled concrete elements and Holorib composite ceilings.
Architecture: Weyell Zipse Architekten
Client: Immobilien Stadt Zürich
Location: Wehntalerstrasse 109, Zurich (CH)
Structural engineering: Lüchinger + Meyer Bauingenieure
Landscape architecture: Atelier Loidl Landschaftsarchitekten
HVAC planning: Waldhauser + Hermann
Sanitary planning: BLM Haustechnik
Electricity planning: IBG Engineering
Building physics: Mühlebach Partner
Site management: HSSP
Facade planning: PPEngineering


























