Hinter großen Türen
Schulanlage Guggach in Zürich
Das Atrium ist der kommunikative Dreh- und Angelpunkt der Schulgemeinschaft. © Daisuke Hirabayashi
Das Guggach-Areal liegt am Fuß des Naherholungsgebiets Käferberg in Zürich. Früher gab es hier Kleingärten und eine Sportanlage der Großbank UBS. Vor einigen Jahren jedoch beschloss die Stadt, hier ein Nachverdichtungsprojekt zu starten: Der 2018 ausgelobte Architektenwettbewerb forderte Wohnraum für 230 Personen, einen Quartiersplan und eine Primarschule mit 12 Klassen. Sieger waren die beiden jungen Architekturbüros Weyell Zipse aus Basel und Doscre aus Zürich sowie die Landschaftsplaner Atelier Loidl aus Berlin. Während ihre Züricher Kollegen den Wohnungsbau im Angriff nahmen, erhielten Weyell Zipse Architekten den Planungsauftrag für das Schulhaus.


Über große Schiebetore lässt sich das Atrium im Sommer ganztägig zum benachbarten Park hin öffnen. © Daisuke Hirabayashi
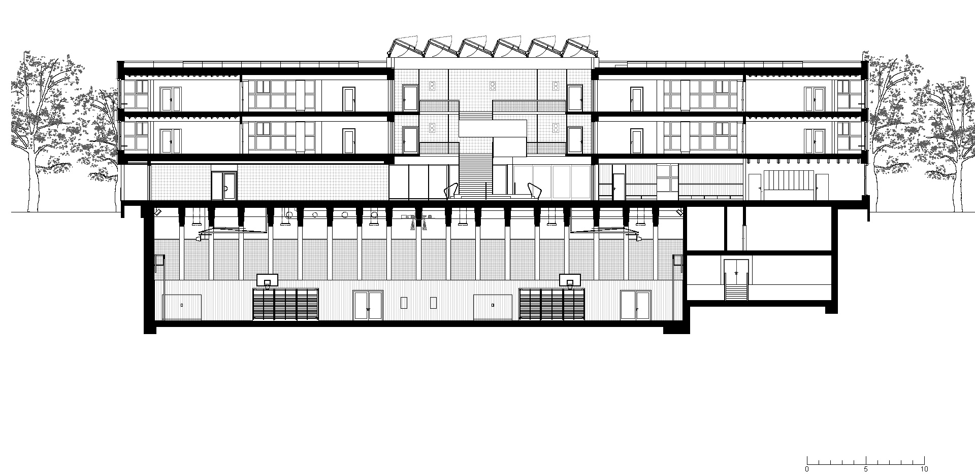
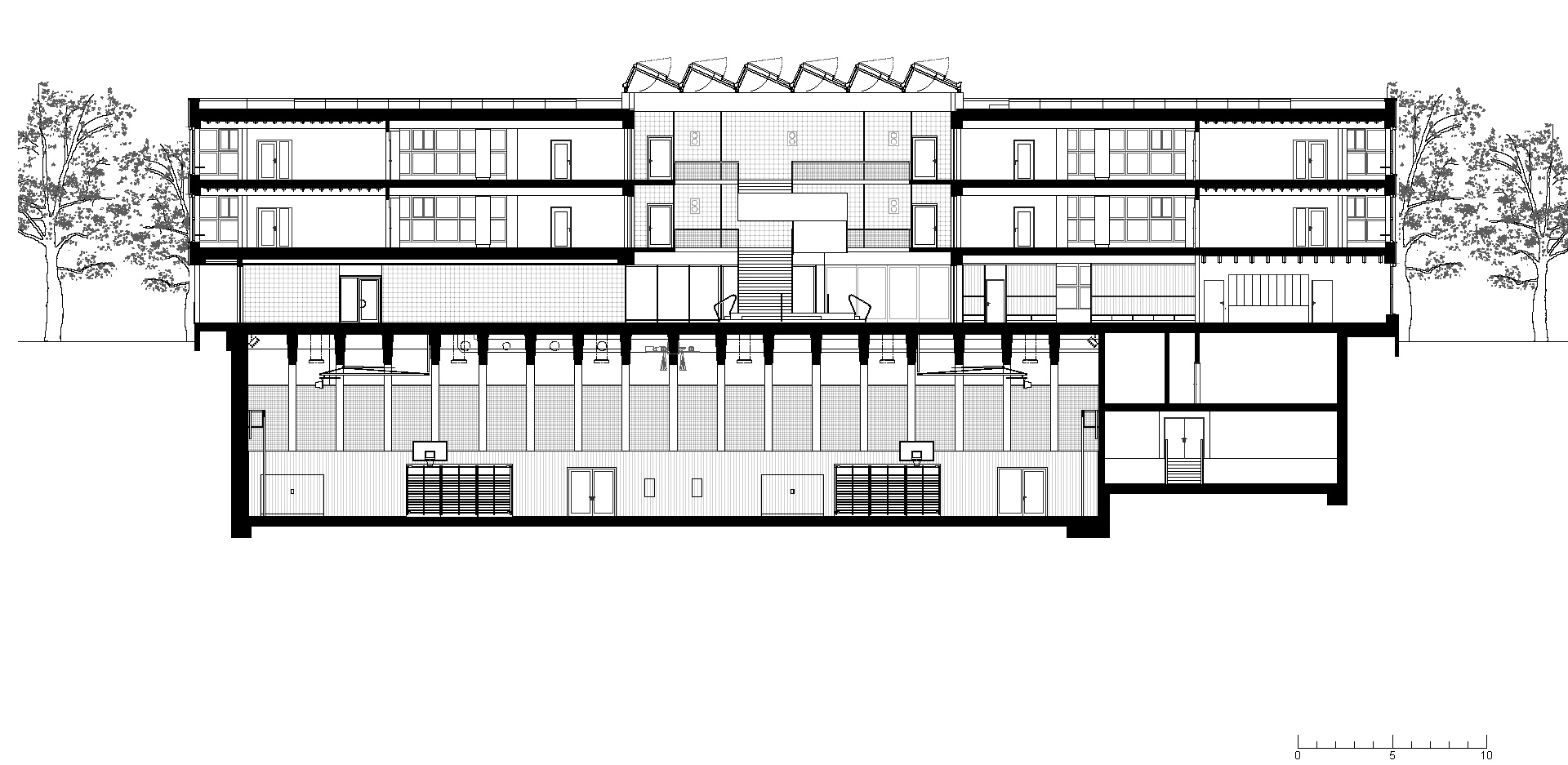
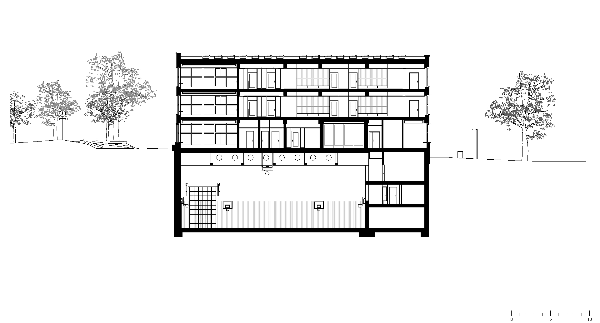
Drei Geschosse hoch zum Park geöffnet
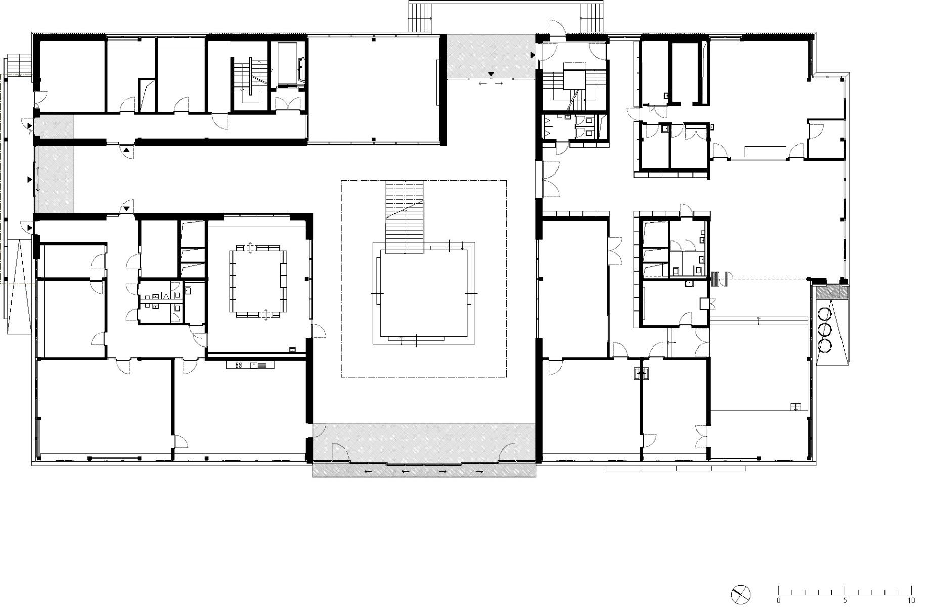
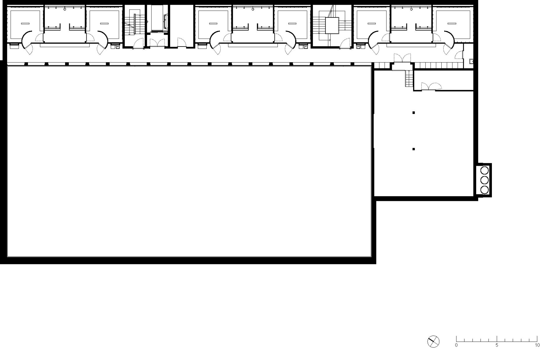
An der Wehntalerstraße im Norden bildet der dreigeschossige Neubau einen geschlossenen Rücken aus. Nur eine bescheidene Treppenanlage und ein zurückgesetzter Eingang führen von hier ins Haus. Ganz anders die Ansicht aus Süden: Hier lässt sich das dreigeschossige Atrium in voller Höhe durch manuell zu bedienende Schiebetore zum angrenzenden Quartierspark öffnen. Nur im Winter werden die Tore geschlossen. Auch das Dach, eine Gewächshauskonstruktion, ist öffenbar, ein darin integrierter Sonnenschutz spendet bei Bedarf Schatten. Die Architekten verzichteten darauf, Nutzungen für den überdachten Pausenbereich festzulegen. Die Schüler sollten sich das Atrium selbst aneignen.


Ein einfaches Sheddach schützt das Atrium vor Regen. © Daisuke Hirabayashi


Die Schulfassaden sind mit unbehandeltem Aluminiumblech verkleidet. © Daisuke Hirabayashi
Kosteneffizienz war Pflicht
Das Atrium war ursprünglich im Raumprogramm der Schule gar nicht vorgesehen. Außerdem sollte die Schule den ambitionierten Energiestandard Minergie-P-Eco einhalten. Der große Pausenraum liegt daher außerhalb des Dämmperimeters der Schule und bleibt unbeheizt. Die Kosten für die aufwändige Gebäudehülle mussten an anderer Stelle eingespart werden. Die Architekten wählten daher eine einfache Konstruktion, in der die Trennung von Struktur, Haustechnik und Ausbau deutlich ablesbar ist. Der Skelettbau erhielt unverkleidete Sichtbetonstützen und -decken, Trennwände aus Kalksandstein und eine Fassade aus unbehandeltem, nicht eloxiertem Aluminium. Die Einbauten in den Garderoben sind aus pastellfarbigem Holz hergestellt, in den Klassenzimmern verbreitet ein Parkettbelag eine wohnliche Atmosphäre.


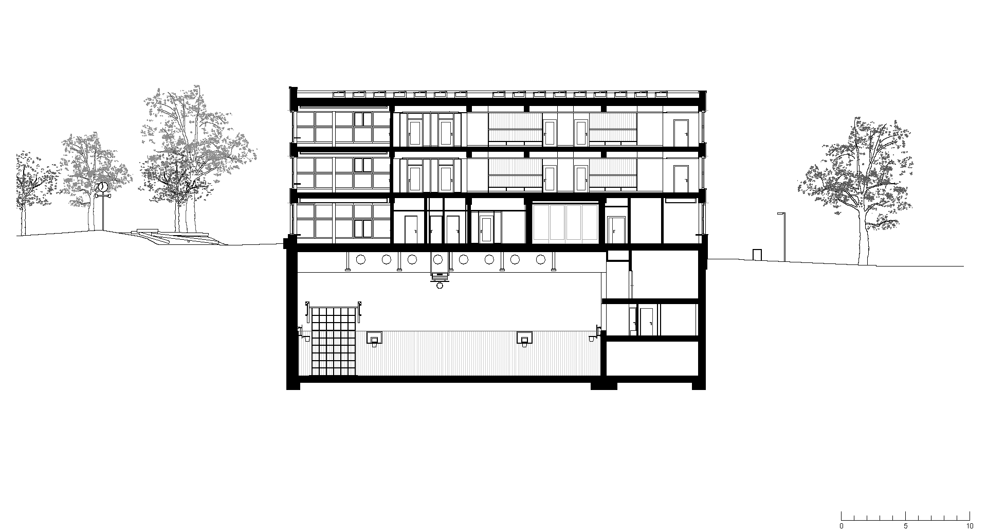
Die Sporthalle liegt drei Ebenen unter der Erde. Dennoch erhält sie über einen zweigeschossigen Raum auf der Nordseite Tageslicht. © Daisuke Hirabayashi
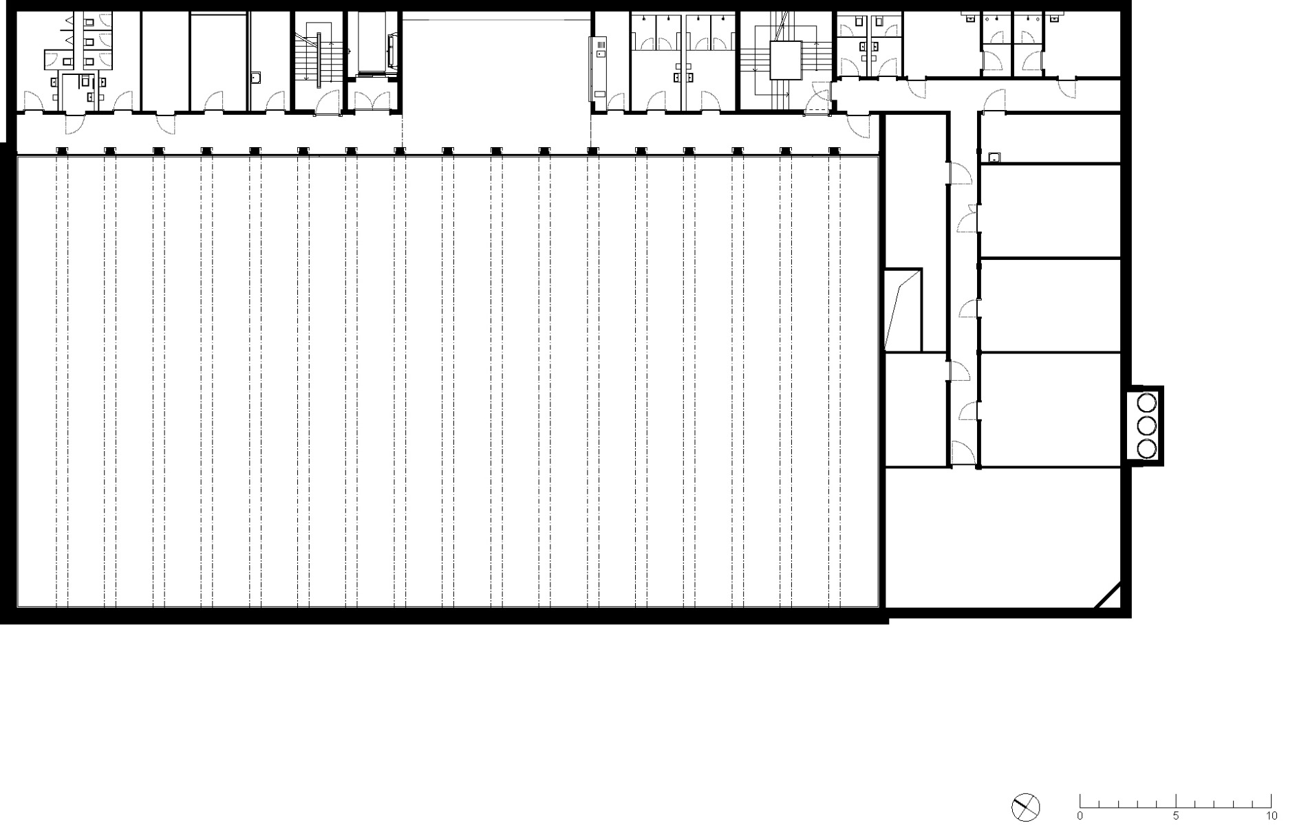
Sporthalle im Untergrund
Insgesamt sechzehn Klassenzimmer, in Vierergruppen zu Clustern zusammengefasst, verteilen sich auf die beiden Obergeschosse. Dazwischen liegen auf der Straßenseite im Norden die gut gedämmten Musikräume. Im Erdgeschoss ist ein Cluster für die Tagesbetreuung mit Veranstaltungsraum und Mensa entstanden. Darunter erstreckt sich das Schulhaus drei Geschosse weit in den Untergrund. Hier ist die Sporthalle untergebracht, die über einen zweigeschossigen Raum von Norden natürliches Licht erhält. Nach Schulschluss steht sie auch Sportvereinen zur Verfügung. Die begrenzte Tragfähigkeit der Turnhalle bedeutete, dass die Obergeschosse möglichst gewichtssparend konstruiert sein mussten. Die Tragstruktur der Schule besteht daher überwiegend aus vorfabrizierten Recyclingbeton-Elementen und Holorib-Verbunddecken.
Architektur: Weyell Zipse Architekten
Bauherr: Immobilien Stadt Zürich
Standort: Wehntalerstrasse 109, Zürich (CH)
Tragwerksplanung: Lüchinger + Meyer Bauingenieure
Landschaftsarchitektur: Atelier Loidl Landschaftsarchitekten
HL-Planung: Waldhauser + Hermann
Sanitärplanung: BLM Haustechnik
Elektroplanung: IBG Engineering
Bauphysik: Mühlebach Partner
Baumanagement: HSSP
Fassadenplanung: PPEngineering


























