// Check if the article Layout ?>
Soaring to new heights: Folk museum in Norway
Photo: Erik Hattrem
Almost ecclesiastical in look, the museum makes a strong statement in both urban and visual terms. Yet despite the building's immense dimensions, its zig-zap façade and sharply angled roofline counteract any impression of massivity, an effect further underscored by small, irregularly arranged windows that refer to neighbouring housing. At the same time the facade is completely clad in pine, thus alluding to local building traditions while providing a hint of the idea of sustainability.
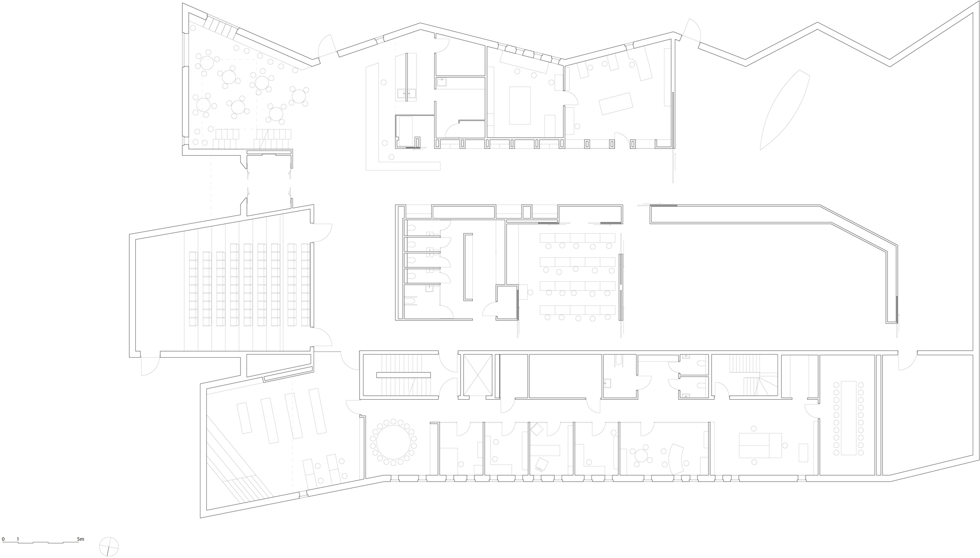
The building's "low-tech concept" can mainly be seen in the plan geometry. While the roof and external wall have an angular design, the interior articulation is simple and rectilinear in alignment to facilitate interior orientation for visitors and ensure flexible use of the exhibition spaces. The museum's most important rooms – the exhibition halls, an auditorium, a library and a café – are all placed on the ground floor, while the administration wing, deliberately set apart from the public areas, extends up to the first floor. Workshops and an archive are located on the basement level.
Pine is the predominant building material not only on the façade but also indoors. Many small windows provide the interior with sufficient daylight, filtering it, as it were, into a number of the exhibition areas. In contrast the main exhibition rooms are black boxes – windowless chambers – that enable the curators to illuminate the exhibits as required. Large sliding doors divide off the various exhibition areas, enabling flexible use of space. Visitors will be able to attend concerts, workshops and lectures at Romsdal Folk Museum and engross themselves in Norwegian history and culture. Not only the wide variety of exhibits but also use of regional timber technology in the large building express the country's cultural traditions, thus signifying the aim for a more sustainable future for Norway while reflecting the traditions and typical characteristic of the Møre og Romsdal region.













