// Check if the article Layout ?>
Space for Knowledge: Secondary School and Technical College by Lederer Ragnarsdóttir Oei
Foto: Zooey Braun
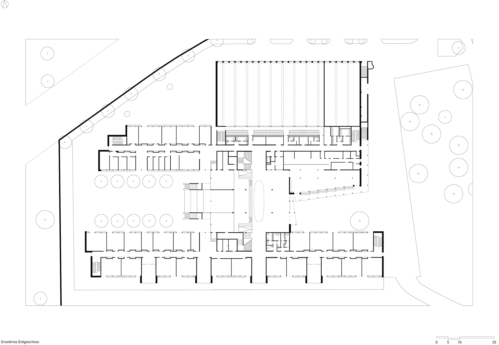
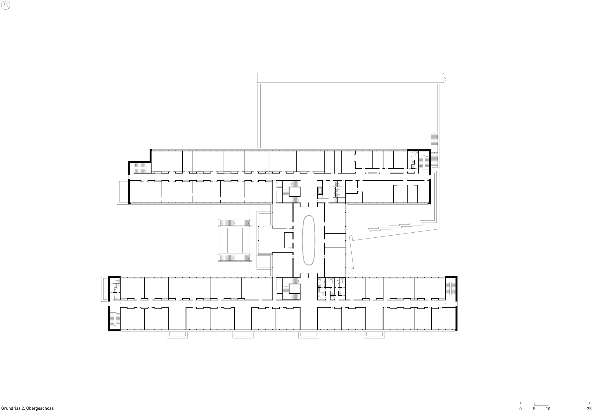
Begrenzt durch eine Straße im Norden und einer lichter werdenden Wohnbebauung in östlicher Richtung, integriert sich der H-förmige Bau in die Stadtstruktur. Wie ein kleines Dorf organisieren die Architekten den Schulkomplex: Die beiden längliche Haupttrakte, die parallel zur Straße positioniert sind, werden über einen vertikalen Mittelteil verbunden. Sie spannen zwei Plätze auf, die, unterschiedlich bespielt, das Innenraumkonzept ergänzen und abrunden. Am nordöstlichen Eck befindet sich eine große Sporthalle, die außerdem als akustische Pufferzone zur Straße hin fungiert. Die Erschließung erfolgt über den hofartigen Außenbereich an der Ostseite. Während man die Schule zentral über den Verbindungteil betritt, öffnen sich die seitlich begrenzenden Volumina partiell und machen den Platz zum kommunikativen Treffpunkt. Die zweite Freifläche ist wesentlich privater und nur für schulische Nutzung wie Pausen oder Veranstaltungen vorgesehen.
Lederer Ragnarsdóttir Oei Architekten realisieren die Real- und Fachoberschule als Ziegelbau. Das Material verleiht dem Bau ein zeitloses Äußeres. Unterbrochen werden die einheitlichen Fassaden des Dreigeschossers von umlaufenden, weiß gerahmten Fensterbändern. Im Bereich der Sporthalle gibt es runde Öffnungen, die Assoziationen an die Bullaugen eines Schiffs hervorrufen. Den oberen Abschluss bilden Flachdächer, die zum Teil extensiv begrünt, zum Teil als Terrassenflächen genutzt werden.
Im Eingangsbereich mit Foyer dreht sich mit den Haupttreppen alles um die Distribution der Nutzer. Ein ovales Atrium bringt hier Licht bis ganz nach unten. Des Weiteren beherbergt der Trakt einen Musiksaal und Mehrzweckräume. Quer dazu ist im nördlichen Gebäudeteil neben der Sporthalle der schulartübergreifende Fachunterricht untergebracht. Den Abschluss bildet der südliche Riegel mit den Klassenzimmern. Diese gliedern sich in Realschule im Erd- und ersten Obergeschoss und die Fachoberschule im zweiten Stock. In den unteren Bereichen können die Räume nach draußen hin erweitert werden. Die Gänge säumen gemütliche Nischen, die zum gemeinsamen Austausch einladen.
Die Wände und Decken in den Innenräumen bestehen aus einem Mix aus Sichtbeton und verputzten oder gefärbten Oberflächen. Dazu kommen Naturstein- im Foyer und Linoleumböden in den übrigen Bereichen. Vereinzelte Holzelemente wie Türen, Einbauten oder Handläufe setzen Akzente und vervollkommnen die Materialpalette.


















