// Check if the article Layout ?>
Spatial Collage: Postsecondary Institution in Amsterdam by HOH architecten
Photo: Jordi Huisman
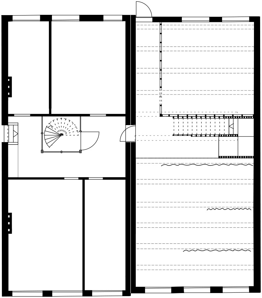
The two structures, which stand in the centre of Amsterdam, were built as identical twins in 1642 but separated shortly thereafter. Various owners and interventions left clear traces; in fact, one of the façades was once replaced in its entirety. Both buildings have belonged to the university since the middle of the last century. The IAS wanted open-space offices that would enable communication in a flexible working environment. However, this stood in direct opposition to the wishes expressed by the administration, whose representatives preferred standard spaces with a view to future rental possibilities. Moreover, a few surprises surrounding the historical building meant that some of the original ideas and plans came to nothing. For instance, wooden beams beset with mildew and dry rot forced a six-month halt to construction.
HOH architected responded to this curious assemblage of circumstances with a distinctive solution that connects both buildings, emphasizes the existing qualities and consolidates the two structures into a spatial collage: “We decided to make the most of the buildings’ rich history and reinforce each space in its identity by means of colour, distinguishing characteristics or materiality” explains studio founder Carsten Hilgendorf. Striking names such as Green Room, Oak Room and Dark Room accentuate the particular character of each level.
HOH architected responded to this curious assemblage of circumstances with a distinctive solution that connects both buildings, emphasizes the existing qualities and consolidates the two structures into a spatial collage: “We decided to make the most of the buildings’ rich history and reinforce each space in its identity by means of colour, distinguishing characteristics or materiality” explains studio founder Carsten Hilgendorf. Striking names such as Green Room, Oak Room and Dark Room accentuate the particular character of each level.






















