18.06.2017

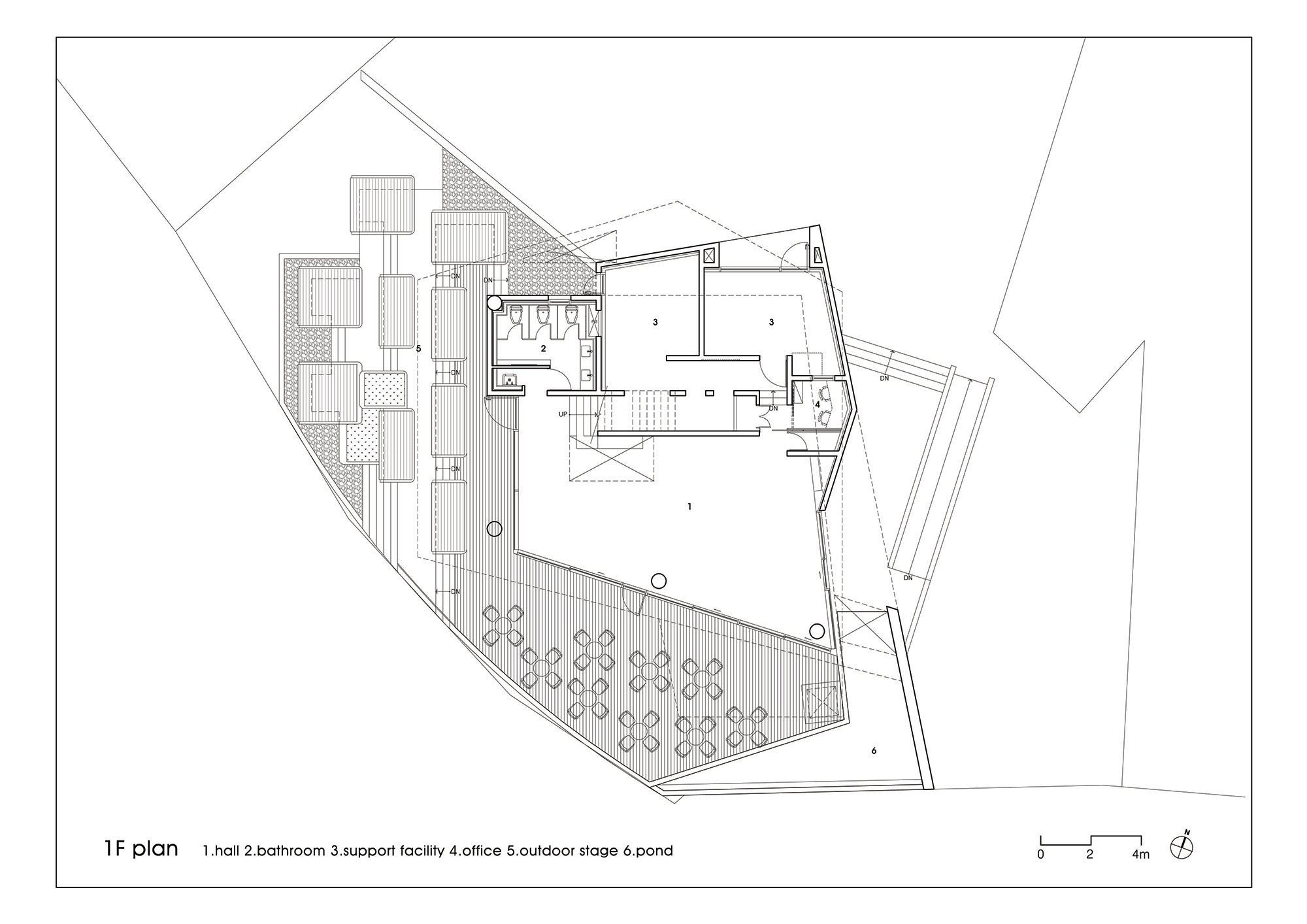
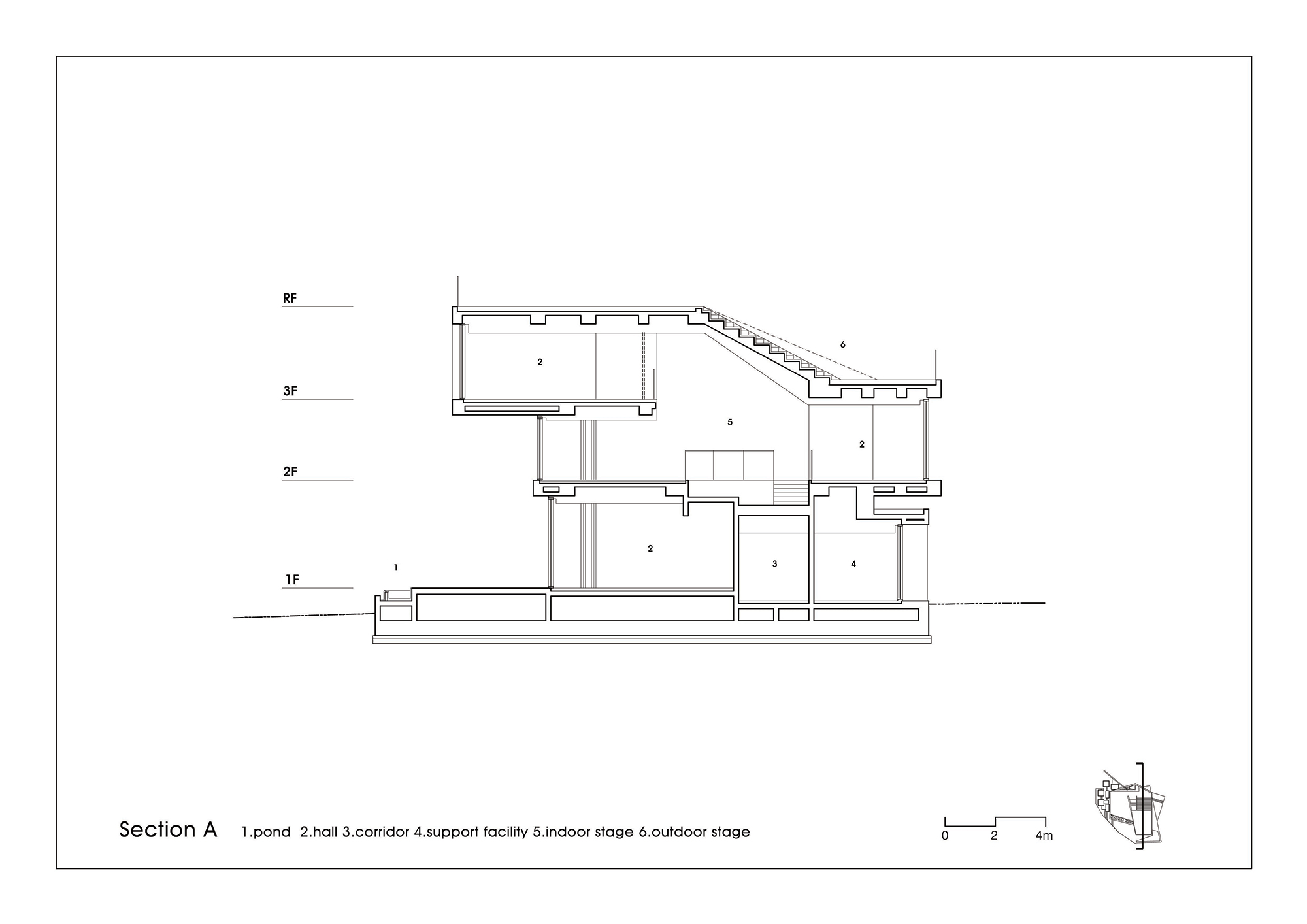
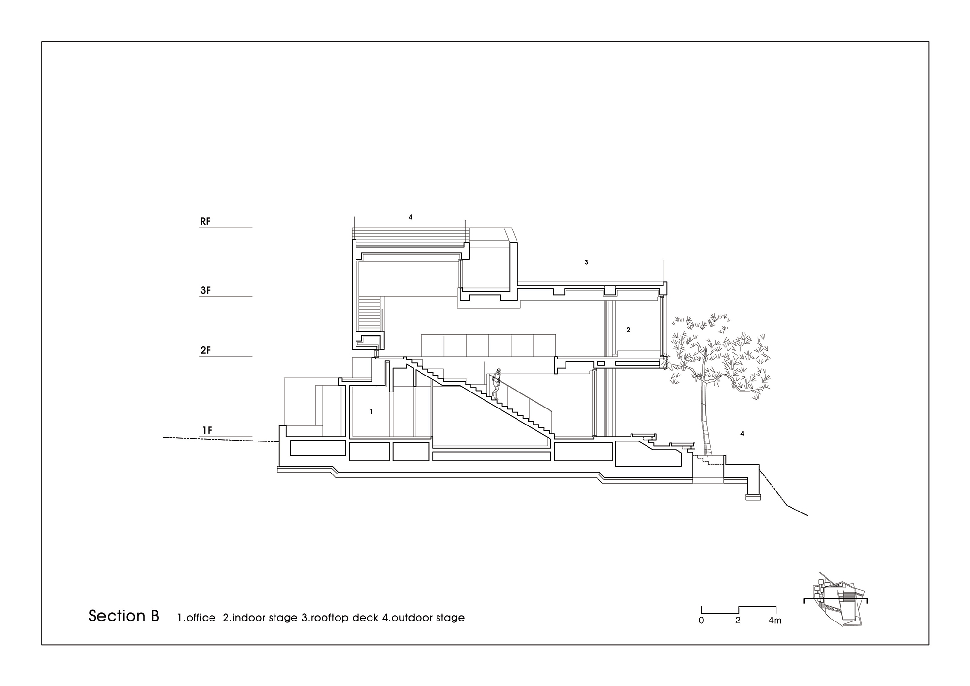
Stacked Staging: Café Waveon on the Korean Coast

Photo: Kim Jaeyoon

https://detail-cdn.s3.eu-central-1.amazonaws.com/media/catalog/product/W/a/Waveon-Heesoo-Kwak-IDMM-14_1.jpg?width=437&height=582&store=de_en&image-type=image https://detail-cdn.s3.eu-central-1.amazonaws.com/media/catalog/product/W/a/Waveon-Heesoo-Kwak-IDMM-Teaser-1500_1.jpg?width=437&height=582&store=de_en&image-type=image https://detail-cdn.s3.eu-central-1.amazonaws.com/media/catalog/product/W/a/Waveon-Heesoo-Kwak-IDMM-13_1.jpg?width=437&height=582&store=de_en&image-type=image https://detail-cdn.s3.eu-central-1.amazonaws.com/media/catalog/product/W/a/Waveon-Heesoo-Kwak-IDMM-21_1.jpg?width=437&height=582&store=de_en&image-type=image https://detail-cdn.s3.eu-central-1.amazonaws.com/media/catalog/product/W/a/Waveon-Heesoo-Kwak-IDMM-23_1.jpg?width=437&height=582&store=de_en&image-type=image https://detail-cdn.s3.eu-central-1.amazonaws.com/media/catalog/product/W/a/Waveon-Heesoo-Kwak-IDMM-17_1.jpg?width=437&height=582&store=de_en&image-type=image https://detail-cdn.s3.eu-central-1.amazonaws.com/media/catalog/product/W/a/Waveon-Heesoo-Kwak-IDMM-19_1.jpg?width=437&height=582&store=de_en&image-type=image https://detail-cdn.s3.eu-central-1.amazonaws.com/media/catalog/product/W/a/Waveon-Heesoo-Kwak-IDMM-06_1.jpg?width=437&height=582&store=de_en&image-type=image https://detail-cdn.s3.eu-central-1.amazonaws.com/media/catalog/product/W/a/Waveon-Heesoo-Kwak-IDMM-07_1.jpg?width=437&height=582&store=de_en&image-type=image https://detail-cdn.s3.eu-central-1.amazonaws.com/media/catalog/product/W/a/Waveon-Heesoo-Kwak-IDMM-04_1.jpg?width=437&height=582&store=de_en&image-type=image https://detail-cdn.s3.eu-central-1.amazonaws.com/media/catalog/product/W/a/Waveon-Heesoo-Kwak-IDMM-05_1.jpg?width=437&height=582&store=de_en&image-type=image https://detail-cdn.s3.eu-central-1.amazonaws.com/media/catalog/product/W/a/Waveon-Heesoo-Kwak-IDMM-03_1.jpg?width=437&height=582&store=de_en&image-type=image https://detail-cdn.s3.eu-central-1.amazonaws.com/media/catalog/product/W/a/Waveon-Heesoo-Kwak-IDMM-02_1.jpg?width=437&height=582&store=de_en&image-type=image https://detail-cdn.s3.eu-central-1.amazonaws.com/media/catalog/product/W/a/Waveon-Heesoo-Kwak-IDMM-01_1.jpg?width=437&height=582&store=de_en&image-type=image https://detail-cdn.s3.eu-central-1.amazonaws.com/media/catalog/product/W/a/Waveon-Heesoo-Kwak-IDMM-15_1.jpg?width=437&height=582&store=de_en&image-type=image https://detail-cdn.s3.eu-central-1.amazonaws.com/media/catalog/product/W/a/Waveon-Heesoo-Kwak-IDMM-08_1.jpg?width=437&height=582&store=de_en&image-type=image https://detail-cdn.s3.eu-central-1.amazonaws.com/media/catalog/product/W/a/Waveon-Heesoo-Kwak-IDMM-16_1.jpg?width=437&height=582&store=de_en&image-type=image https://detail-cdn.s3.eu-central-1.amazonaws.com/media/catalog/product/W/a/Waveon-Heesoo-Kwak-IDMM-09_1.jpg?width=437&height=582&store=de_en&image-type=image https://detail-cdn.s3.eu-central-1.amazonaws.com/media/catalog/product/W/a/Waveon-Heesoo-Kwak-IDMM-18_1.jpg?width=437&height=582&store=de_en&image-type=image https://detail-cdn.s3.eu-central-1.amazonaws.com/media/catalog/product/W/a/Waveon-Heesoo-Kwak-IDMM-10_1.jpg?width=437&height=582&store=de_en&image-type=image https://detail-cdn.s3.eu-central-1.amazonaws.com/media/catalog/product/W/a/Waveon-Heesoo-Kwak-IDMM-20_1.jpg?width=437&height=582&store=de_en&image-type=image https://detail-cdn.s3.eu-central-1.amazonaws.com/media/catalog/product/W/a/Waveon-Heesoo-Kwak-IDMM-11_1.jpg?width=437&height=582&store=de_en&image-type=image https://detail-cdn.s3.eu-central-1.amazonaws.com/media/catalog/product/W/a/Waveon-Heesoo-Kwak-IDMM-22_1.jpg?width=437&height=582&store=de_en&image-type=image https://detail-cdn.s3.eu-central-1.amazonaws.com/media/catalog/product/W/a/Waveon-Heesoo-Kwak-IDMM-12_1.jpg?width=437&height=582&store=de_en&image-type=image https://detail-cdn.s3.eu-central-1.amazonaws.com/media/catalog/product/W/a/Waveon-Heesoo-Kwak-IDMM-Teaser-735_1.jpg?width=437&height=582&store=de_en&image-type=image https://detail-cdn.s3.eu-central-1.amazonaws.com/media/catalog/product/6/1/615_500_254_1.jpg?width=437&height=582&store=de_en&image-type=image
Copyright © 2024 DETAIL. All rights reserved.