// Check if the article Layout ?>
Staggered rear facade: Whitney Museum extension by Renzo Piano
At a prominent place between High Line Park and the Hudson River, Renzo Piano has created the generously-dimensioned Whitney Museum in Manhattan. His structure is crowned by a series of staggered terraces that serve not only as sunny places for passing time but also as open-air extensions to the indoor gallery space.
Architect: Renzo Piano Building Workshop, New York, in co-operation with Cooper Robertson, New York
Location: 99 Gansevoort Street, New York, NY 10014, USA
Architect: Renzo Piano Building Workshop, New York, in co-operation with Cooper Robertson, New York
Location: 99 Gansevoort Street, New York, NY 10014, USA
The Whitney Museum has been founded in 1931 in Greenwich Village, moved to 54th street in 1954, to Madison Avenue in 1966, and now found its new home in the Meatpacking District. In more recent times its art collections have seen a substantial growth in size, creating the need for an extension. The large new building that has now been created offers enough space for over 19,000 pieces of modern and contemporary American art.
Designed by Renzo Piano, the new museum building is asymmetric in form and is completely clad in vertical grey steel panels. Projections and returns articulate the elevation overlooking the Hudson River, while the rear of the building is characterised by a series of staggered terraces used as outdoor exhibition areas where sculptures are put on show.
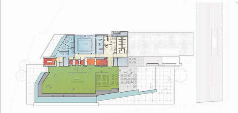
The entrance area on the south side is located below a dramatic cantilevered canopy and leads into a lobby that serves not only as a buffer zone between the bustling street and the museum but also as a freely accessible exhibition space. The galleries are spread out between the fifth and eight storeys on an area of 4,650 square metres, whereby a large column-free gallery is used to accommodate large three-dimensional works of art. The room programme also includes offices, reading rooms and a café along with a multi-use theatre space for various types of performances.
The extension building by Renzo Piano fits in between the Hudson River und High Line Park like a piece in a jigsaw puzzle. The impressions that visitors gain of this part of the museum need not be restricted to its interior but can also extend to the outside, as the staggered terraces at the rear of the building provide nearly every floor with an outdoor gallery, thus forming attractive open areas that also encourage visitors to stop a while and pass the time in the fresh air. Projecting exterior stairs present differing views of the surroundings and engage the extension building with its urban setting.
Project data
Client: Whitney Museum of American Art
Team: M.Carroll und E.Trezzani mit K.Schorn, T.Stewart, S.Ishida, A.Garritano, F.Giacobello, I.Guzman, G.Melinotov, L. Priano, L.Stuart and C. Chabaud, J.Jones, G.Fanara, M.Fleming, D.Piano, J.Pejkovic; M.Ottonello (CAD) F.Cappellini, F.Terranova, I.Corsaro (Modelle)
Structure: Robert Silman Associates
Fire protection: Jaros, Baum & Bolles (MEP, fire prevention);
Lighting: Arup
Engineering (Façade): Heintges & Associates
Civil engineering: Phillip Habib & Associates
Theatre equipment: Theatre Projects
Acoustics: Cerami & Associates
Landscape architecture: Piet Oudolf with Mathews Nielson
Construction management: Turner Construction
Client: Whitney Museum of American Art
Team: M.Carroll und E.Trezzani mit K.Schorn, T.Stewart, S.Ishida, A.Garritano, F.Giacobello, I.Guzman, G.Melinotov, L. Priano, L.Stuart and C. Chabaud, J.Jones, G.Fanara, M.Fleming, D.Piano, J.Pejkovic; M.Ottonello (CAD) F.Cappellini, F.Terranova, I.Corsaro (Modelle)
Structure: Robert Silman Associates
Fire protection: Jaros, Baum & Bolles (MEP, fire prevention);
Lighting: Arup
Engineering (Façade): Heintges & Associates
Civil engineering: Phillip Habib & Associates
Theatre equipment: Theatre Projects
Acoustics: Cerami & Associates
Landscape architecture: Piet Oudolf with Mathews Nielson
Construction management: Turner Construction











