// Check if the article Layout ?>
Stairplay: House in Japan
Photo: Koichi Torimura
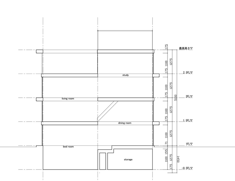
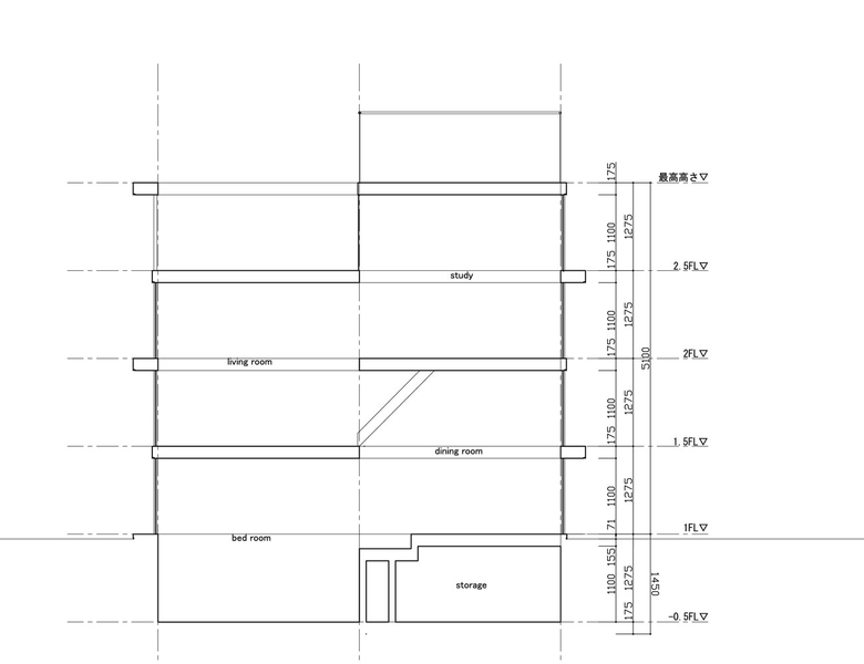
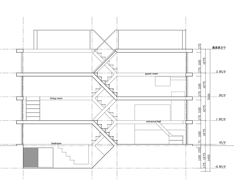
»House-S« is located in a densely built-up residential area of the city of Saitama, which lies north of Tokyo. The multistorey house consists of a complex series of levels which, consisting of a split-level system, generates unusual, diversified living spaces. All non-transparent components of the house are painted white so that they appear to be of one material throughout the structure. Because of their unified materiality and execution, the open spaces can be freely arranged by function. There is no predetermined use for these spaces; only the kitchen and bathroom have been furnished. The façade consists of large window panes arranged horizontally. An elaborate steel frame construction supports the storeys, which seem to float in the air. The graphic concept of the floor plan and its transparency is taken up in the façade. Ever-changing perspectives, interrupted only by a few vertical or diagonal wall elements, produce fascinating relationships between interior and exterior space.








