Startup-Atmosphäre in alter Nylonfabrik: Umbau in den Niederlanden
Foto: Matthijs van Roon
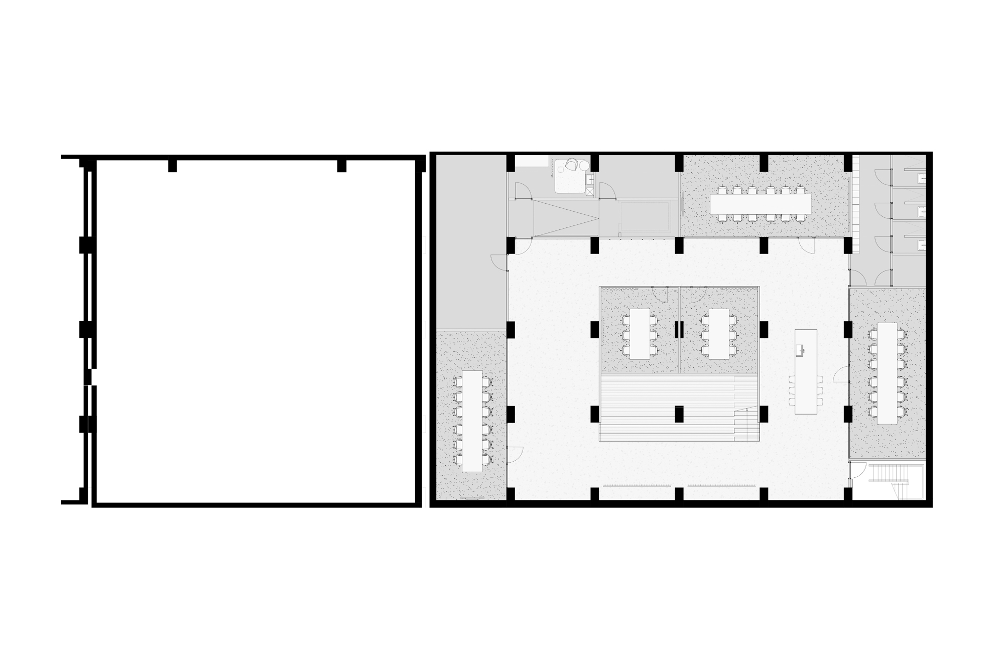
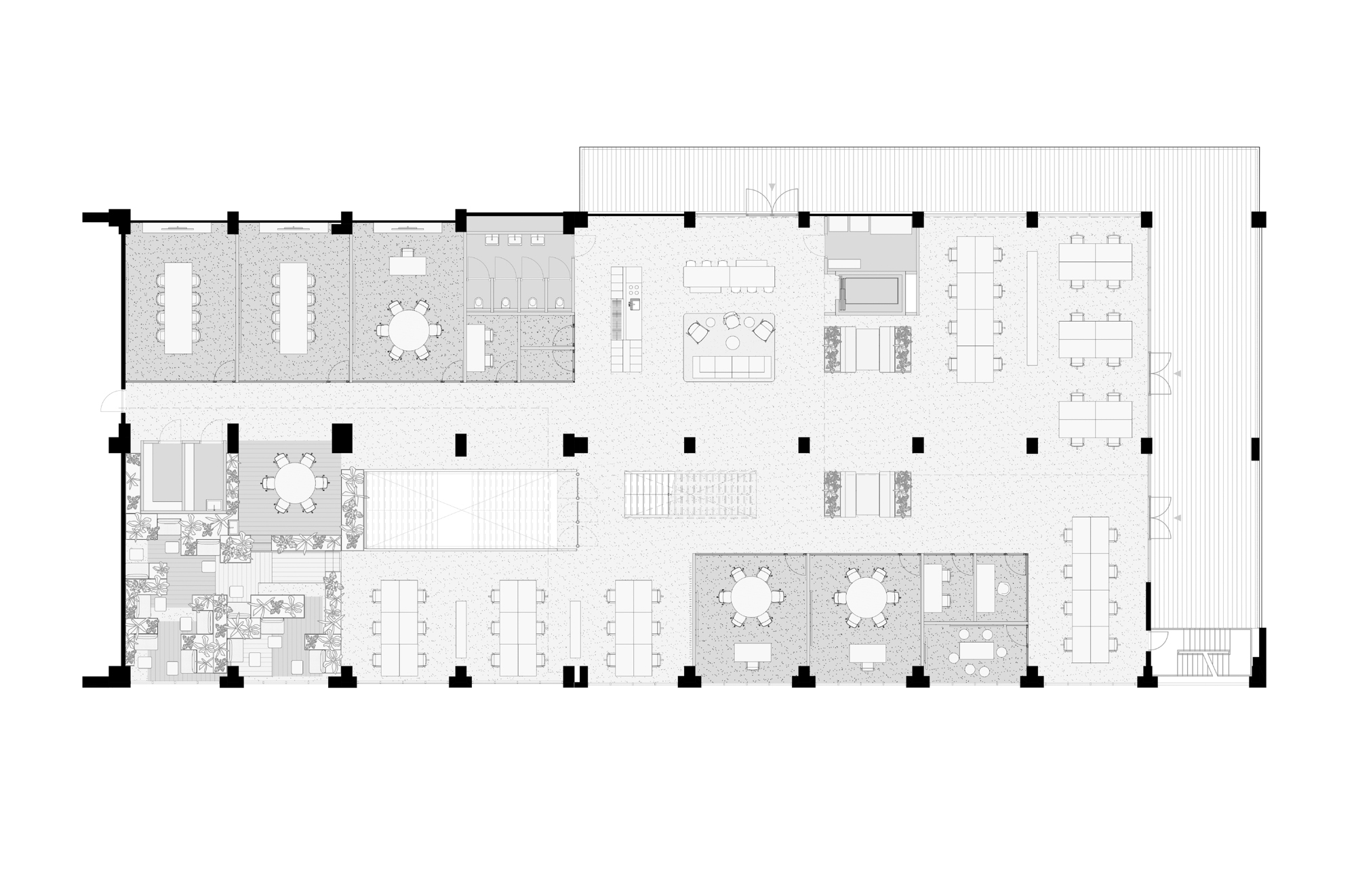
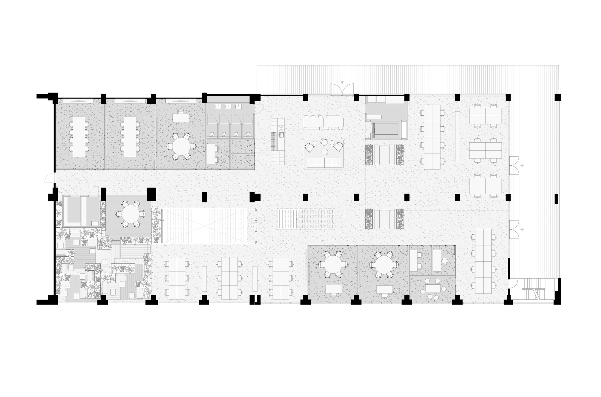
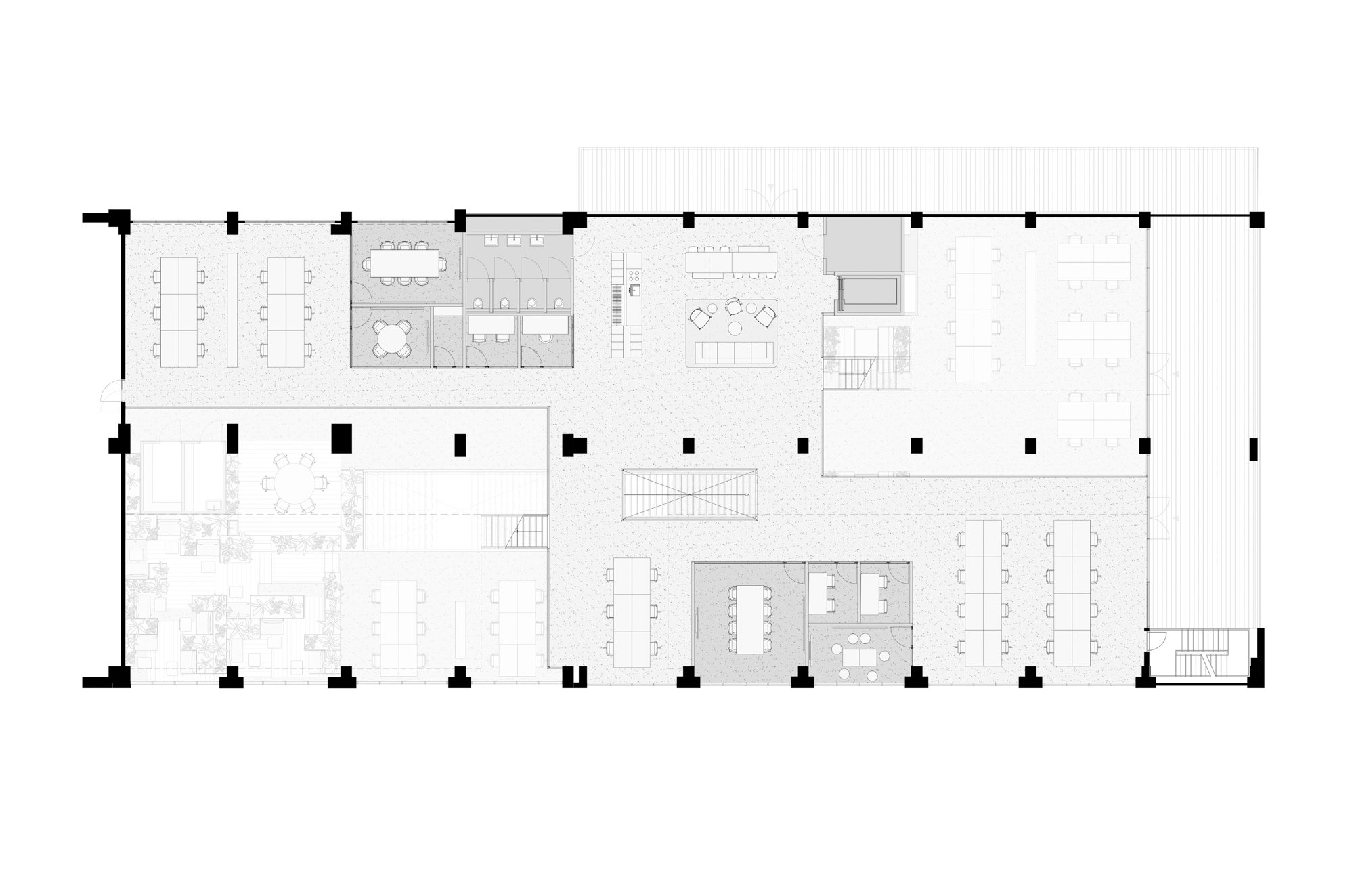
Wie wir in Zukunft arbeiten, beschäftigt zurzeit nicht nur Architekten. Trotz des Einbruchs der Nachfrage nach Büroflächen in letzter Zeit laufen noch zahlreiche Projekte, bei denen brachliegende Industrieflächen zu Büros umgewandelt werden. Auch in der ehemaligen Nylonfabrik in Arnhem wichen die riesigen industriellen Dampfkessel aus dem Gebäude. Sie standen auf einem schweren, aufgeständerten Boden, der heute die Gestalt des Unter- und des Erdgeschosses prägt. Darüber überspannen Betonrippen eine großzügige, lichtdurchflutete Halle.
Neben dem Haupteingang sehen HofmannDujardin eine lange Bar vor – als Empfang und Treffpunkt zugleich. Mehrere Besprechungsräume und ein Restaurant finden hier Platz. Über eine weite, offene Treppe wird Tageslicht auch ins Untergeschoss mit weiteren Besprechungsräumen geleitet. Außerdem kann die Treppe als Tribüne für Präsentationen und Veranstaltungen genutzt werden. Eine Holztreppe führt vom Empfang aus in den oberen Gebäudeteil: die Halle mit neu eingezogenen Plattformen.
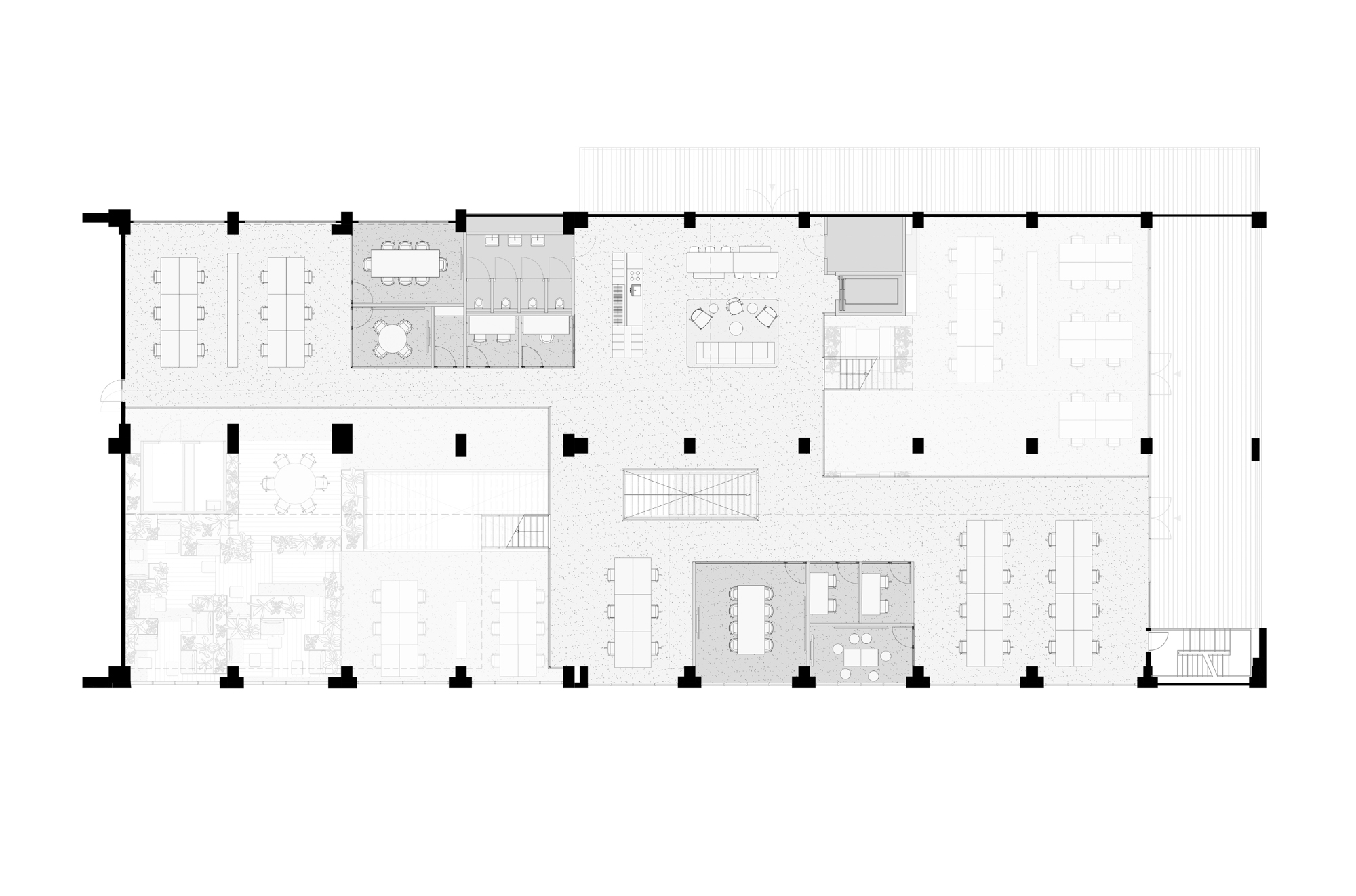
Die neuen Geschosse sind so leicht wie möglich gestaltet. Offene Gitterträger, auf denen die Bodenplatten aufliegen, hängen zwischen den Betonsäulen. Damit sind die Maßnahmen nicht nur minimalinvasiv, sondern auch rückbaubar, sollte eine zukünftige Belegung andere Erfordernisse mit sich bringen. Das Wegenetz zwischen den neuen Plattformen wirkt sehr durchlässig und leicht, wodurch die Luftigkeit der Halle spürbar bleibt.
Von innen nach außen werden die Bereiche zunehmend privater. Nahe der zentralen Erschließung siedeln sich Lounges und Teeküchen an, während die Arbeitsplätze eher am Ende der Plattformen untergebracht sind. So kann trotz der großen Offenheit noch fokussiert gearbeitet werden. Im ersten Obergeschoss bildet ein üppiges Arrangement aus Zimmerpflanzen den sogenannten „Konzentrations-Dschungel“. Der Ausgangspunkt der entkernten Produktionshalle war zwar denkbar eintönig, doch die Architekten von HofmanDujardin nutzten die freie Fläche, um eine große Vielfalt an Arbeitsbereichen zu entwerfen.
Weitere Informationen:
Gesamtfläche: 3300m²
Installationsberatung: Huisman & van Muijen, JBTECH
Bauunternehmer: Karbouw
Einbaumöbel: Dokter interieurbouw





















