01.10.2017

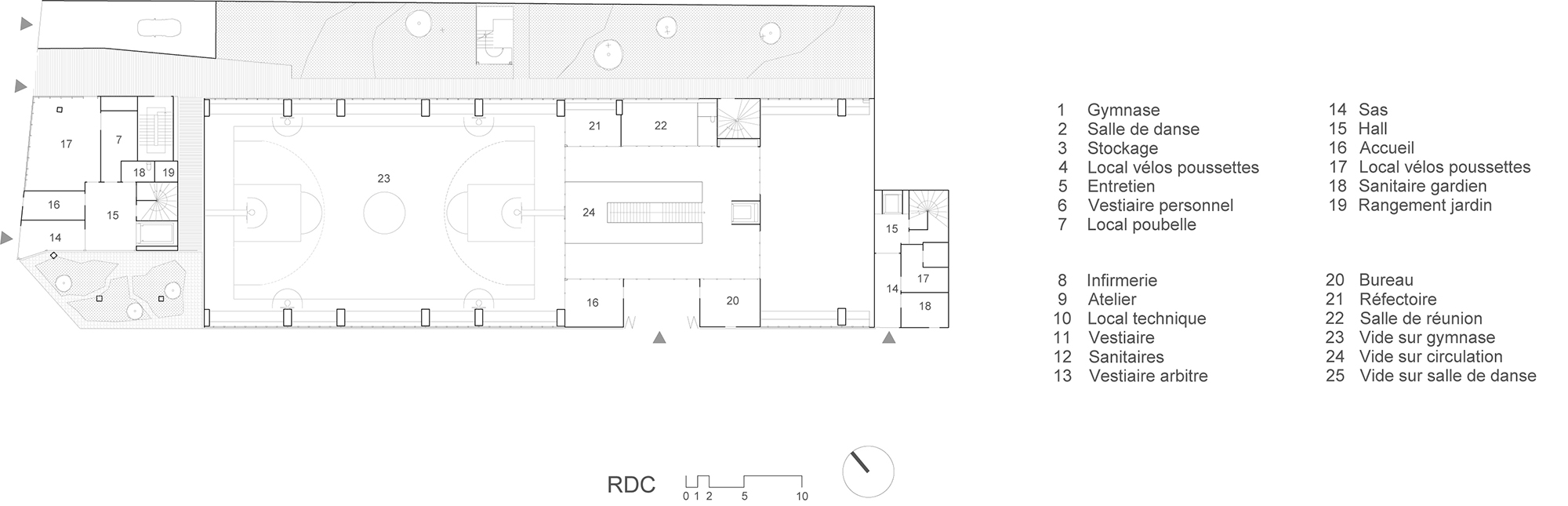
Subsidized Housing Reinterpreted: LESS in Paris

Photo: Luc Boegly

https://detail-cdn.s3.eu-central-1.amazonaws.com/media/catalog/product/L/E/LESS-AAVP-Architecture-11_1.jpg?width=437&height=582&store=de_en&image-type=image https://detail-cdn.s3.eu-central-1.amazonaws.com/media/catalog/product/L/E/LESS-AAVP-Architecture-12_1.jpg?width=437&height=582&store=de_en&image-type=image https://detail-cdn.s3.eu-central-1.amazonaws.com/media/catalog/product/L/E/LESS-AAVP-Architecture-22_1.jpg?width=437&height=582&store=de_en&image-type=image https://detail-cdn.s3.eu-central-1.amazonaws.com/media/catalog/product/L/E/LESS-AAVP-Architecture-Teaser-1500-04_1.jpg?width=437&height=582&store=de_en&image-type=image https://detail-cdn.s3.eu-central-1.amazonaws.com/media/catalog/product/L/E/LESS-AAVP-Architecture-18_1.jpg?width=437&height=582&store=de_en&image-type=image https://detail-cdn.s3.eu-central-1.amazonaws.com/media/catalog/product/L/E/LESS-AAVP-Architecture-20_1.jpg?width=437&height=582&store=de_en&image-type=image https://detail-cdn.s3.eu-central-1.amazonaws.com/media/catalog/product/L/E/LESS-AAVP-Architecture-05_1.jpg?width=437&height=582&store=de_en&image-type=image https://detail-cdn.s3.eu-central-1.amazonaws.com/media/catalog/product/L/E/LESS-AAVP-Architecture-15_1.jpg?width=437&height=582&store=de_en&image-type=image https://detail-cdn.s3.eu-central-1.amazonaws.com/media/catalog/product/L/E/LESS-AAVP-Architecture-03_1.jpg?width=437&height=582&store=de_en&image-type=image https://detail-cdn.s3.eu-central-1.amazonaws.com/media/catalog/product/L/E/LESS-AAVP-Architecture-04_1.jpg?width=437&height=582&store=de_en&image-type=image https://detail-cdn.s3.eu-central-1.amazonaws.com/media/catalog/product/L/E/LESS-AAVP-Architecture-02_1.jpg?width=437&height=582&store=de_en&image-type=image https://detail-cdn.s3.eu-central-1.amazonaws.com/media/catalog/product/L/E/LESS-AAVP-Architecture-01_1.jpg?width=437&height=582&store=de_en&image-type=image https://detail-cdn.s3.eu-central-1.amazonaws.com/media/catalog/product/L/E/LESS-AAVP-Architecture-Teaser-735-04_1.jpg?width=437&height=582&store=de_en&image-type=image https://detail-cdn.s3.eu-central-1.amazonaws.com/media/catalog/product/L/E/LESS-AAVP-Architecture-13_1.jpg?width=437&height=582&store=de_en&image-type=image https://detail-cdn.s3.eu-central-1.amazonaws.com/media/catalog/product/L/E/LESS-AAVP-Architecture-06_1.jpg?width=437&height=582&store=de_en&image-type=image https://detail-cdn.s3.eu-central-1.amazonaws.com/media/catalog/product/L/E/LESS-AAVP-Architecture-14_1.jpg?width=437&height=582&store=de_en&image-type=image https://detail-cdn.s3.eu-central-1.amazonaws.com/media/catalog/product/L/E/LESS-AAVP-Architecture-07_1.jpg?width=437&height=582&store=de_en&image-type=image https://detail-cdn.s3.eu-central-1.amazonaws.com/media/catalog/product/L/E/LESS-AAVP-Architecture-16_1.jpg?width=437&height=582&store=de_en&image-type=image https://detail-cdn.s3.eu-central-1.amazonaws.com/media/catalog/product/L/E/LESS-AAVP-Architecture-08_1.jpg?width=437&height=582&store=de_en&image-type=image https://detail-cdn.s3.eu-central-1.amazonaws.com/media/catalog/product/L/E/LESS-AAVP-Architecture-19_1.jpg?width=437&height=582&store=de_en&image-type=image https://detail-cdn.s3.eu-central-1.amazonaws.com/media/catalog/product/L/E/LESS-AAVP-Architecture-09_1.jpg?width=437&height=582&store=de_en&image-type=image https://detail-cdn.s3.eu-central-1.amazonaws.com/media/catalog/product/L/E/LESS-AAVP-Architecture-21_1.jpg?width=437&height=582&store=de_en&image-type=image https://detail-cdn.s3.eu-central-1.amazonaws.com/media/catalog/product/L/E/LESS-AAVP-Architecture-10_1.jpg?width=437&height=582&store=de_en&image-type=image https://detail-cdn.s3.eu-central-1.amazonaws.com/media/catalog/product/8/7/872_500_318.jpg?width=437&height=582&store=de_en&image-type=image https://detail-cdn.s3.eu-central-1.amazonaws.com/media/catalog/product/8/7/871_500_244_01.jpg?width=437&height=582&store=de_en&image-type=image
Copyright © 2024 DETAIL. All rights reserved.