// Check if the article Layout ?>
Suburban serenity: Apartment building, Luxembourg by Metaform Architecture.
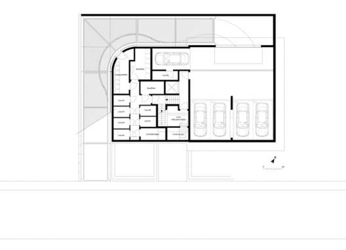
In a Luxembourg suburb, this small apartment building designed by Metaform Architecture, contains seven residential units. It achieves a significant increase in the density of the built fabric, whilst at the same time fitting quietly in to the suburban context in terms of scale and massing. This has been achieved by individualizing each apartment as much as possible thus breaking down what might otherwise appear as an out of context monolith.
The exterior of the building is clad in light coloured fibre cement panels giving a homogeneous look to the building whilst the articulation of individual volumes avoids the tedious repetition that elements, such as glazing and balconies, can sometimes bring where the apartments are identical. The apartments have been designed from the inside out with particular attention given to framing views from individual windows.
The building provides a contemporary and convincing argument for the increase of density in the suburbs.













