Swimming in art: Goldsmiths Centre for Contemporary Art in London
Foto: Assemble
The Laurie Grove Baths were erected in the Jacobinic style in south London in the late 19th century. The architect Thomas Dinwiddy gave the bathhouse an elaborate streetside facade and positioned the technical equipment for its swimming pool halls in the rear part of the ensemble. Considered an important building of general interest, Laurie Grove Baths has since been listed as a historic monument.
The bathhouse filled various purposes until the nineties. Over the course of the 20th century, what began as a public wash house with swimming pools and baths for the working class evolved into a location for jazz music and rock 'n' roll.
Following its sale to Goldsmiths College, a constituent college of the University of London, the front parts of the building were converted into studios for art students. The less splendid and more industrial technical service and storage rooms to the rear remained untouched until 2014, when a competition for their alteration was won by Assemble. The sensitive approach taken by the London architectural collective to the existing resources and its careful staging of the building's particular features convinced the jury.
A new element is now immediately visible from the street: gallery rooms added onto the bathhouse and clad in turquoise fibre cement sheets plates in complementary contrast to the red brickwork of the historic facade.
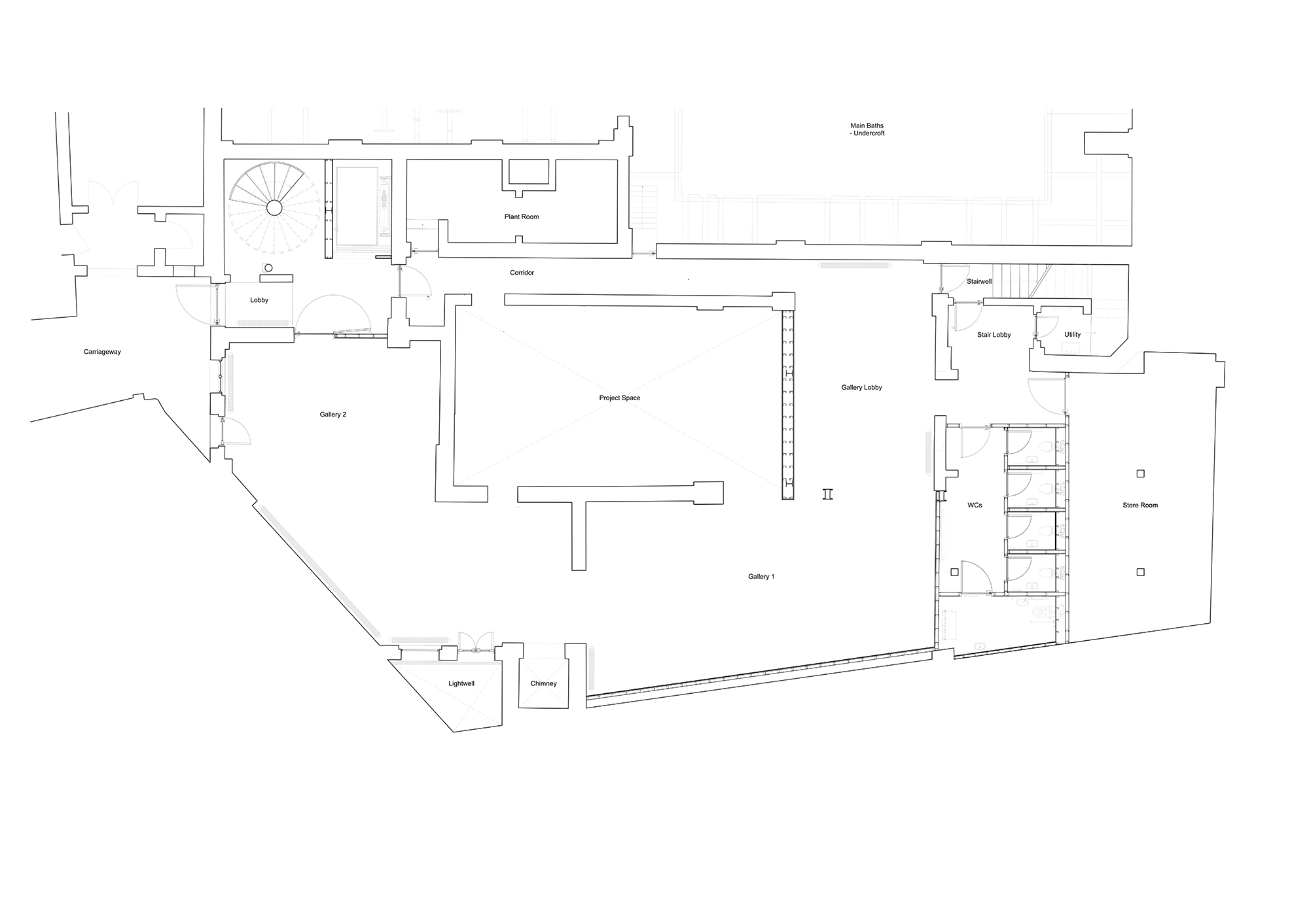
Inside the rear part of the old building, walls in exposed brickwork and whitewashed surfaces determine the industrial character of the gallery area. The former water tanks made of cast-iron panels can now be entered, and provide space for installations and performances. Wall panelling painted a deep indigo hue and stair railings in a petrol tone provide touches of colour. The paint and many of the elements hand-crafted out of concrete and ceramic come from Assemble Builders, Assemble's construction firm.
Seven new gallery rooms, an event space, offices and a café are now accommodated on 1,000 square metres altogether.











