Tailored to Fit: Textilakademie NRW by sop architekten and formTL
Foto: Thomas Mayer
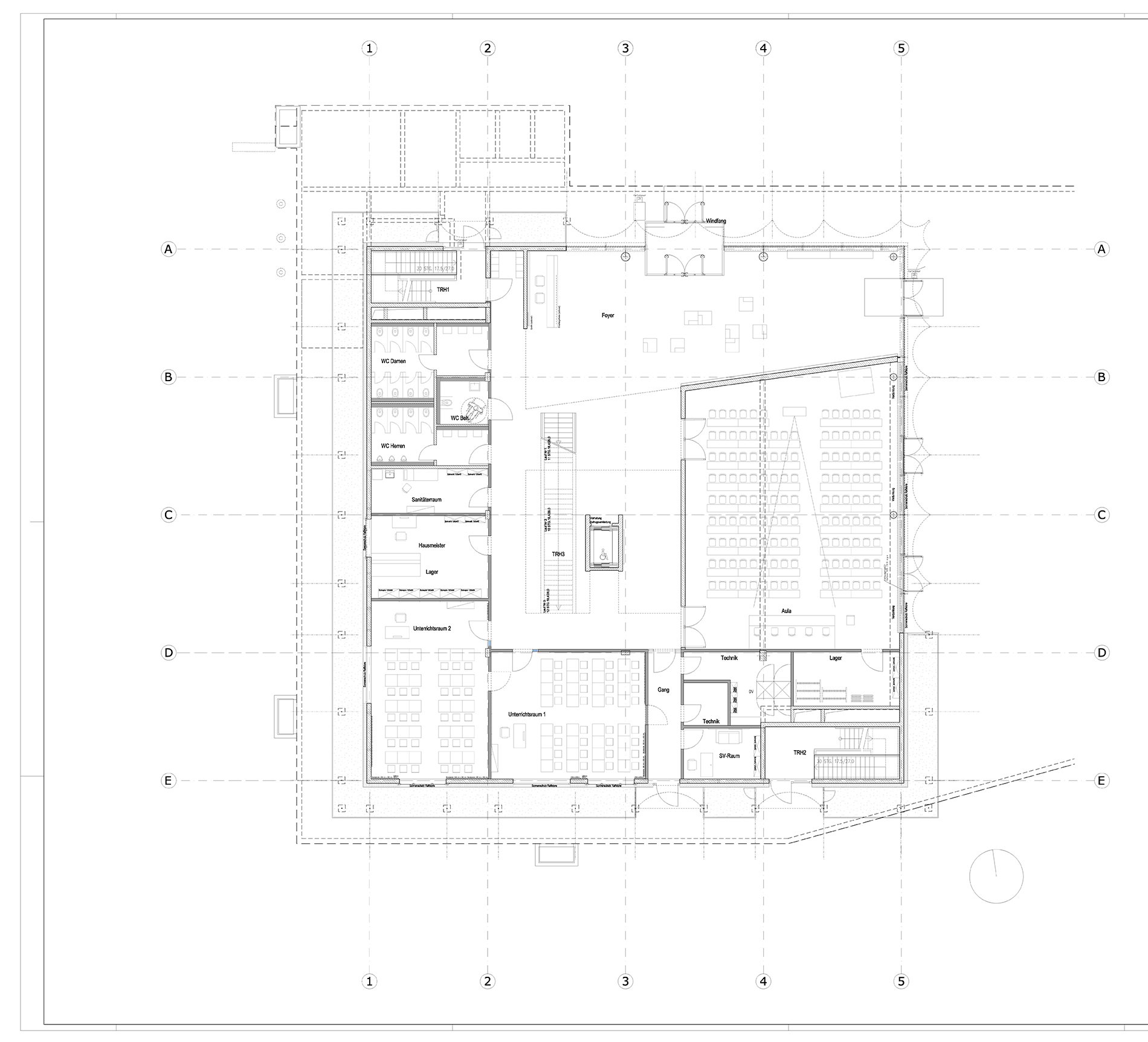
sop architekten designed the cubature as a simple, three-storey concrete cube that fits seamlessly into the southern end of the campus of the Hochschule Niederrhein University of Applied Sciences in Mönchengladbach. formTL have veiled the structure in a textile façade that clearly conveys the content taught at this centre of education. The suspended membrane-and-rope construction surrounds the cube like a light, silver-grey curtain. A sub-construction of steel cables forms a supporting structure for the façade. Steel arches give the fabric its undulating form while transferring the loads.
Floor-to-ceiling glazing marks the entrance, which is not covered by the membrane. Irregularly distributed windows of various sizes perforate the massive edifice, enabling views to the outdoors and, when darkness falls, transforming the Textilakademie and the semi-transparent fabric façade into a source of diffuse light.
The interior spaces, which can be flexibly divided, are arranged around a bright central atrium. sop architekten designed not only the envelope for this building, but the interior fittings as well. The mobile creates a contrast to the stark geometry of the concrete cube and gives the structure a certain playful lightness.





















